-
项目定位:蟹黄面,不仅是一道风味,更是江南饮食文化的精粹。当它坐落于万国建筑博览群之畔的外滩,其室内设计便承担了超越商业空间本身的使命。我们的设计理念,根植于 “在地性的深度转译” 与 “克制的文化表达” 。
-
空间意境:我们不追求浮夸的仿古或直白的符号堆砌,而是旨在打造一个 “盒子里的建筑” —— 一个在室内空间中,通过抽象、凝练的设计语言,重构上海风骨与江南意蕴的场所。在这里,顾客品尝的不仅是一碗匠心浇头,更是身处一个能感知浦江潮涌、石库门烟火与当代都市优雅的复合体验空间。最终,我们希望这方空间能成为一盏“好用、耐看、充满善意且诚实”的灯,温和地照亮上海独特的饮食与人文风景。蟹珍香外滩店的设计,最终是 “破茧重生” 理念的实践。它从浩繁的上海意象与餐饮需求中抽丝剥茧,专注于用现代设计语言做好一件事:创造一种沉浸式的、与品牌灵魂及在地文化深度共鸣的用餐体验。
-
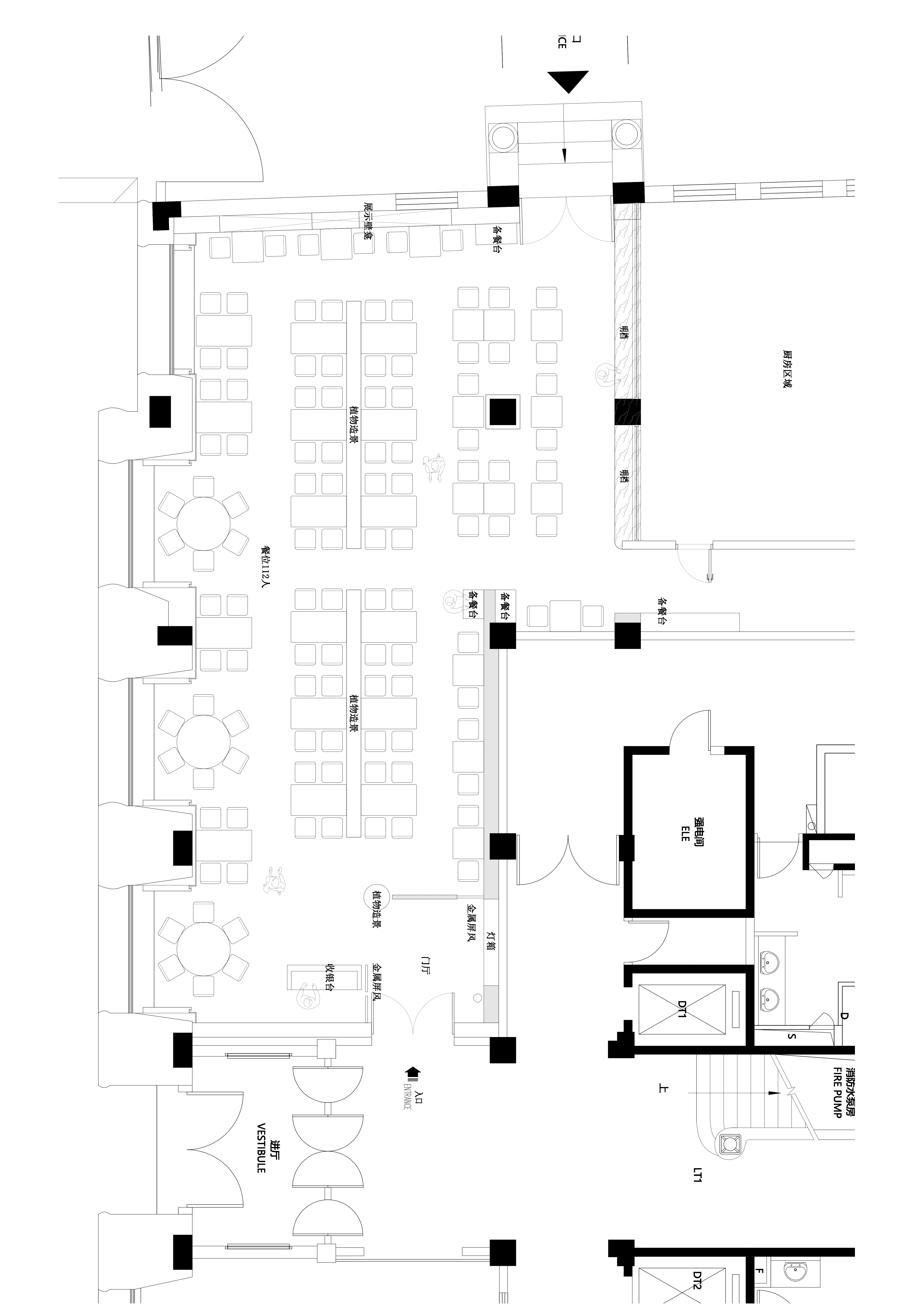
空间布局:大部分为敞开区域及时是多人桌亦安排在罗斯福大楼的大窗户前面,让顾客在用餐的同时也能欣赏到上海外滩的风景,也最大化里面室内面积,符合该餐厅的目标定位与商业逻辑。
-
设计选材:碳金板与金属雕花的碰撞,艺术涂料与仿古镜的结合,即符合低碳装修的原则,也没有使用过于昂贵的材料,在创造室内氛围的同时,也能让造价低于业主的投资预算。
-
用户体验:在年租金500W的地段,做到了客流如潮,作品于2025.10月完工,预计在明年五月份可全完覆盖人工及租金,七月份即可完全覆盖所有前期投入。
0
0

认证 · 让您身份增值
220