雾屿黑白
150
作品说明
- 项目类型:住宅公寓
- 项目地点:宜宾市
- 建筑面积:150㎡
- 项目造价:40万元
- 主案设计师: 卢静宜
- 参与设计师:叶飞、林敏、卢静宜
- 竣工时间:2026.06
- 设计机构:和筑设计
-
项目定位:本案以法式奶油风为设计脉络,以黑白为主色调,将法式的浪漫柔婉与奶油的温润慵懒揉进空间肌理。用柔缓的线条弱化黑白的棱角,以细腻的材质肌理铺就温柔质感,于极简的色彩中勾勒法式的浪漫情怀,让空间盛满松弛的诗意,还原法式生活的优雅与治愈。
-
空间意境:1.冷暖对冲的柔化创新:突破纯黑白风的冷硬刻板与传统法式的繁复冗余,以 “奶油质感” 为媒介,将黑白的极简高级与法式的柔婉浪漫深度融合。
2.法式元素的极简重构:摒弃法式经典的复杂雕花、多层褶皱,将核心元素 “轻量化”。
3.光影叙事的创新应用:利用黑白配色对光影的敏感度,结合奶油质感的半通透材质(如纱帘、磨砂玻璃隔断),让自然光在空间中形成 “柔化光影带”—— 比如客厅弧形吊顶折射的漫射光、卧室纱帘过滤后的斑驳光影,既强化了黑白的层次对比,又通过光影的柔和度烘托法式慵懒氛围,让空间从 “视觉美观” 升级为 “情绪治愈”。 -
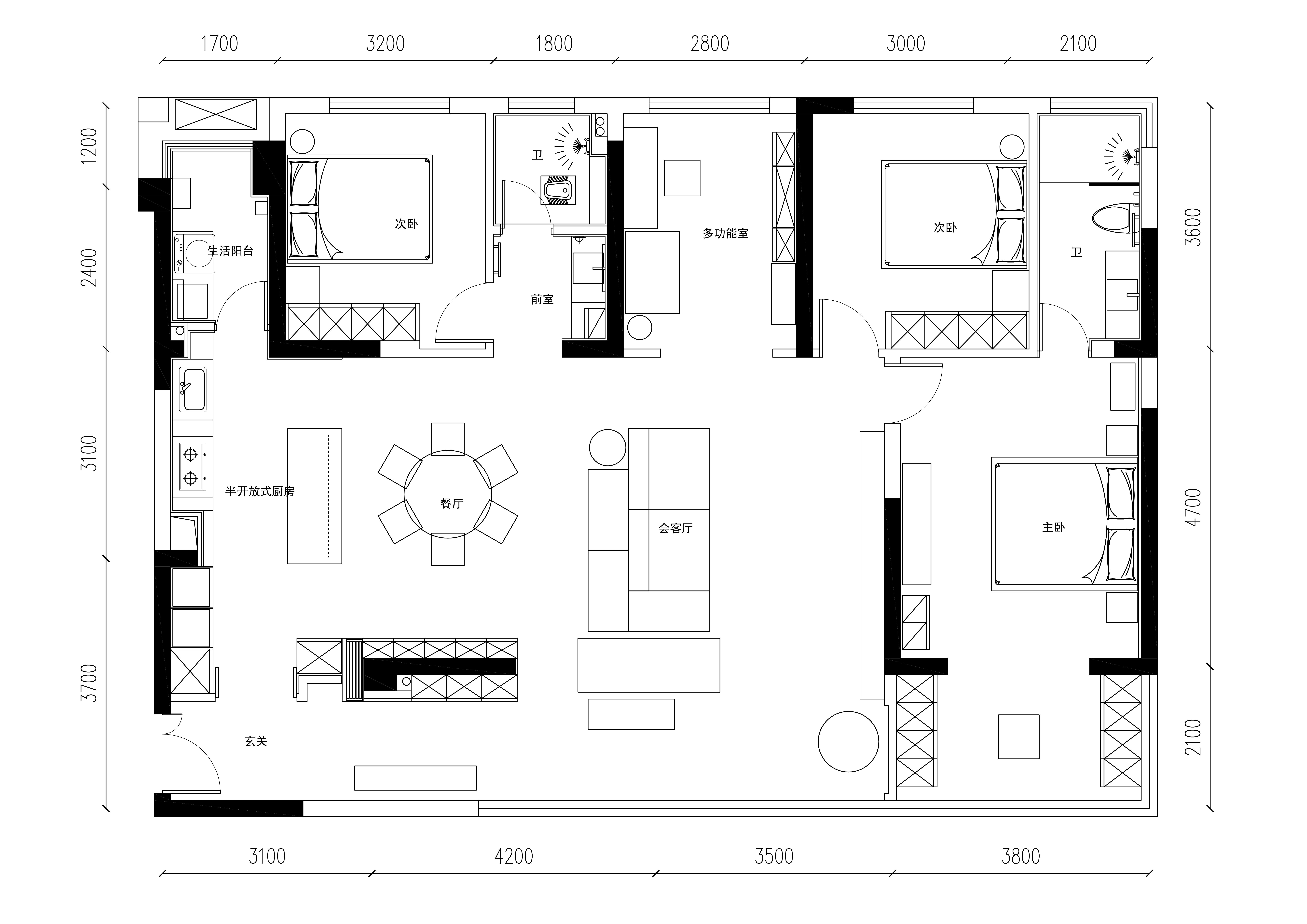
空间布局:1.“弧形动线 + 无界分区” 设计:打破传统客餐厨的硬隔断(如墙体、吧台),采用 “地面材质分区 + 弧形过渡” 实现功能划分 。
2.“弹性功能区” 布局:针对现代居住的多元需求,打造可变形的功能空间。
3.“采光最大化” 布局逻辑:优化开窗比例;公共区域(客餐)居中布局,保证每个功能区都能获得均匀采光,避免黑白配色因采光不足而显得压抑。 -
设计选材:1.低碳选材:环保优先,减少碳排放:
墙面材质:选用 E0 级环保乳胶漆(可回收树脂基底),替代传统墙布(胶水含甲醛,难降解),且乳胶漆可直接翻新,减少后期重装的材料浪费;局部点缀的石膏线采用 “再生石膏 + 植物纤维” 复合材质,比纯石膏减少 30% 的能耗。
软装材质:沙发、窗帘选用可回收亚麻布、棉麻混纺面料(天然纤维,可降解),避免化纤材质的环境污染;地毯采用 “再生涤纶 + 天然乳胶” 基底,甲醛释放量低于国标 5 倍。
2.经济性设计:高性价比,降低全周期成本:
模块化选材:家具选用模块化设计(如组合式沙发、可拆卸收纳柜),可根据居住需求增减模块,避免因户型变化或需求升级导致的家具更换;灯具选用 LED 节能款(寿命长、能耗低),比传统灯具节省 70% 电费。
本地采购:主材(乳胶漆、地板、瓷砖)均选用本地知名品牌,减少运输费用和时间成本,同时售后响应更快,降低后期维修成本。 -
用户体验:这个设计的创新点很精准 —— 用奶油质感平衡黑白的冷硬,用法式简化元素提升格调,没有陷入传统法式的繁复和纯黑白的刻板。布局上的无界分区和弹性空间很贴合现代居住需求,选材兼顾低碳和经济性,既好看又实用,是真正落地性强的设计。
0
0

认证 · 让您身份增值