永不落幕的飞人梦
208
作品说明
- 项目类型:住宅公寓
- 项目地点:桂林市
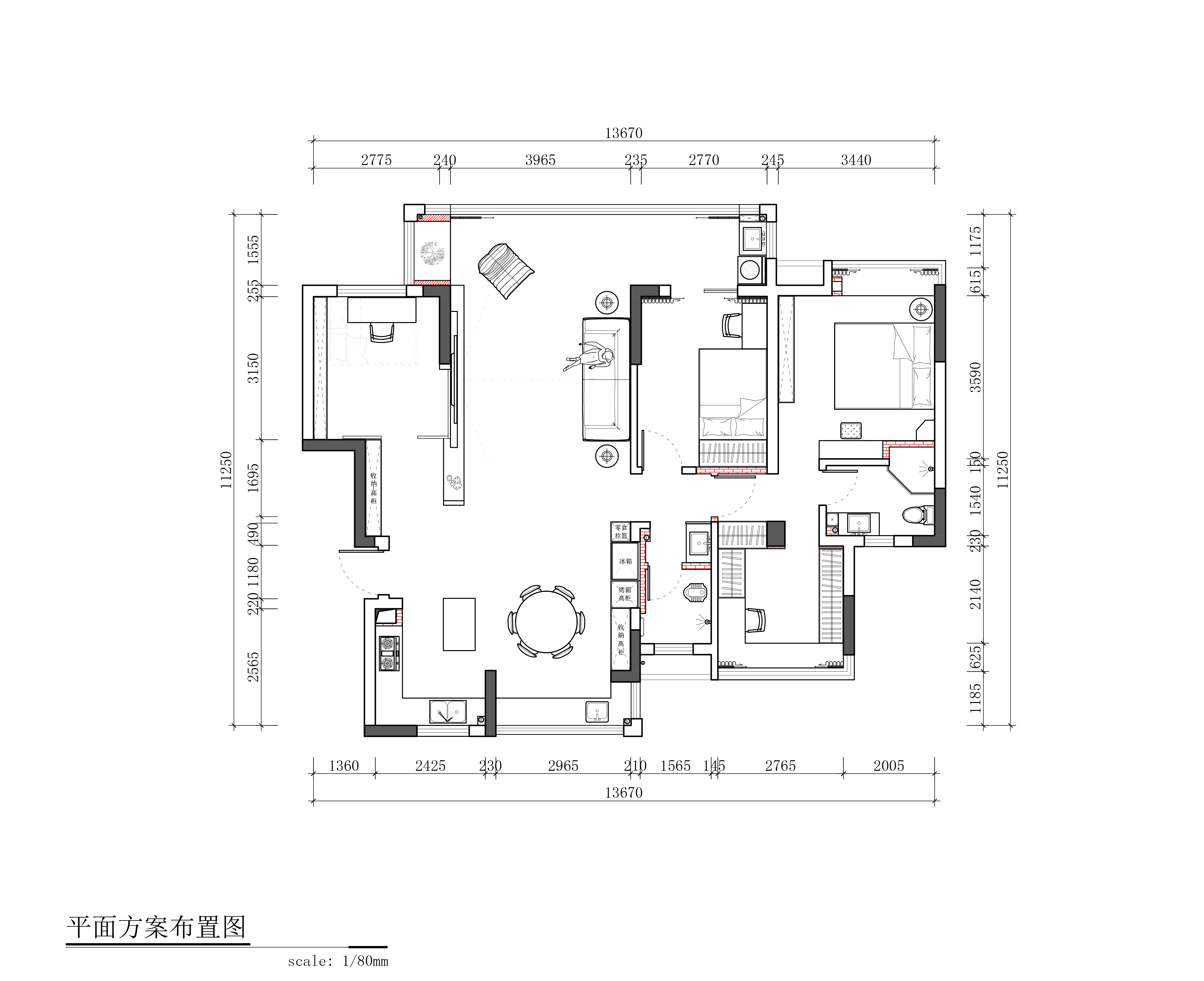
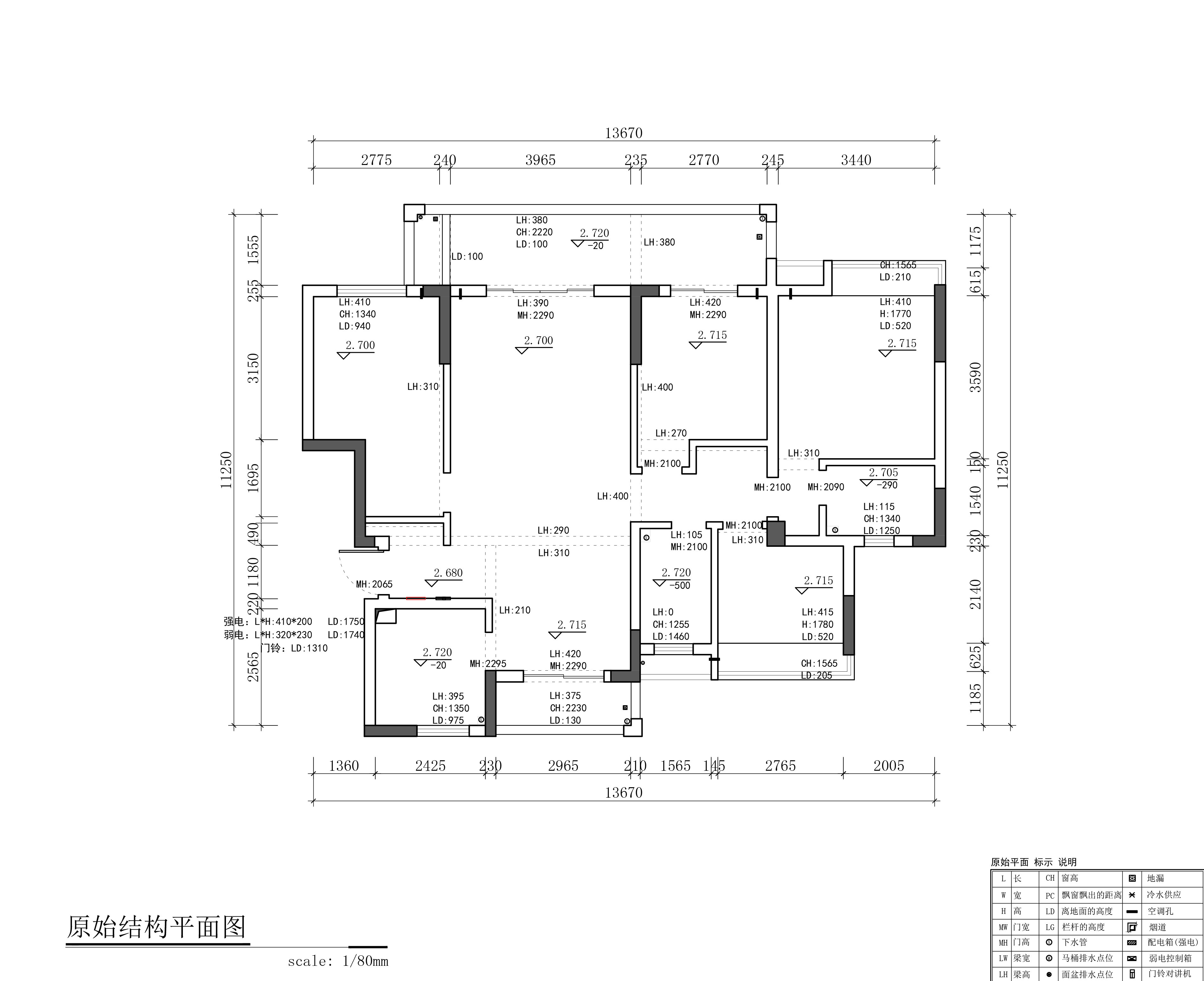
- 建筑面积:133㎡
- 项目造价:40万元
- 主案设计师: 高俊毅
- 竣工时间:2025
-
项目定位:对于许多人而言,AJ 不只是一双鞋,更是青春里篮球撞击地板的脆响、乔丹跃起时的惊鸿,是关于 “飞人” 的热血梦。当空间的边界被大胆打破,当潮流的符号与居家场景深度交融,一场关于居住美学的革命正悄然上演。这套住宅的改造,就是一次对 “家” 的全新定义,将空间的通透感与 AJ 的经典红黑潮流基因,编织成了生活的诗意与激情。
-
空间意境:原始户型中,厨房、生活阳台与入户卧室像是一道道无形的枷锁,限制了空间的延展性与视觉的通透性。设计师以极具魄力的手法,拆除了这些物理屏障。当厨房与生活阳台的边界消失,当入户卧室的墙体被通透的玻璃取代,客餐厅区域瞬间完成了从 “分割式小空间” 到 “开放式大格局” 的蜕变。
-
空间布局:阳光可以毫无阻碍地在客餐厅内流淌,窗外那片开阔的景致也顺势涌入,成为室内最天然的装饰画。原本各自独立的空间,此刻如同被赋予了生命,相互呼应、彼此交融,空间的优点被几何倍数地放大,家不再是一个个封闭的盒子,而是一个能自由呼吸的有机整体。
-
设计选材:电视墙右侧的空调外机位,本是一个容易被忽略甚至嫌弃的 “鸡肋” 空间。但在设计师的巧思下,它却成为了连接室内外景致的纽带。在确保空调外机正常安放的前提下,设计师对其上方进行了掏空处理。于是,远处的山景与右侧窗外的风光,通过这个精心打造的 “窗口”,完成了一次美妙的对话与衔接。原本可能割裂视觉的空调外机位,摇身一变,成为了框景的艺术装置,让居者在室内静坐时,也能感受到自然景致的绵延与灵动。
-
用户体验:谈及配色,这套住宅的灵感之源指向了耐克 AJ 的经典红黑系列。业主作为一名资深的球鞋收藏爱好者,对红与黑的潮流魅力有着深刻的理解与热爱。空间中,黑色的沉稳与红色的热烈形成了强烈的视觉碰撞,既保留了家居空间应有的质感与静谧,又注入了 AJ 所代表的那种充满活力与个性的潮流气息。每一处红与黑的搭配,都像是在为生活谱写一段潮流的乐章,让家不仅是休憩的港湾,更是彰显个人品味与热爱的潮流秀场。
0
0

认证 · 让您身份增值