梦游米兰之夜
111
作品说明
- 项目类型:住宅公寓
- 项目地点:桂林市
- 建筑面积:150㎡
- 项目造价:50万元
- 主案设计师: 高俊毅
- 竣工时间:2025
-
项目定位:当城市的霓虹在窗外渐次模糊,室内的暗调却开始苏醒,像一本摊开的书,每一处设计都是跃动的文字,讲述着关于空间、光影与生活的故事。而那些曾被视为 “难题” 的梁,恰是这本叙事诗里,最具戏剧张力的章节。
-
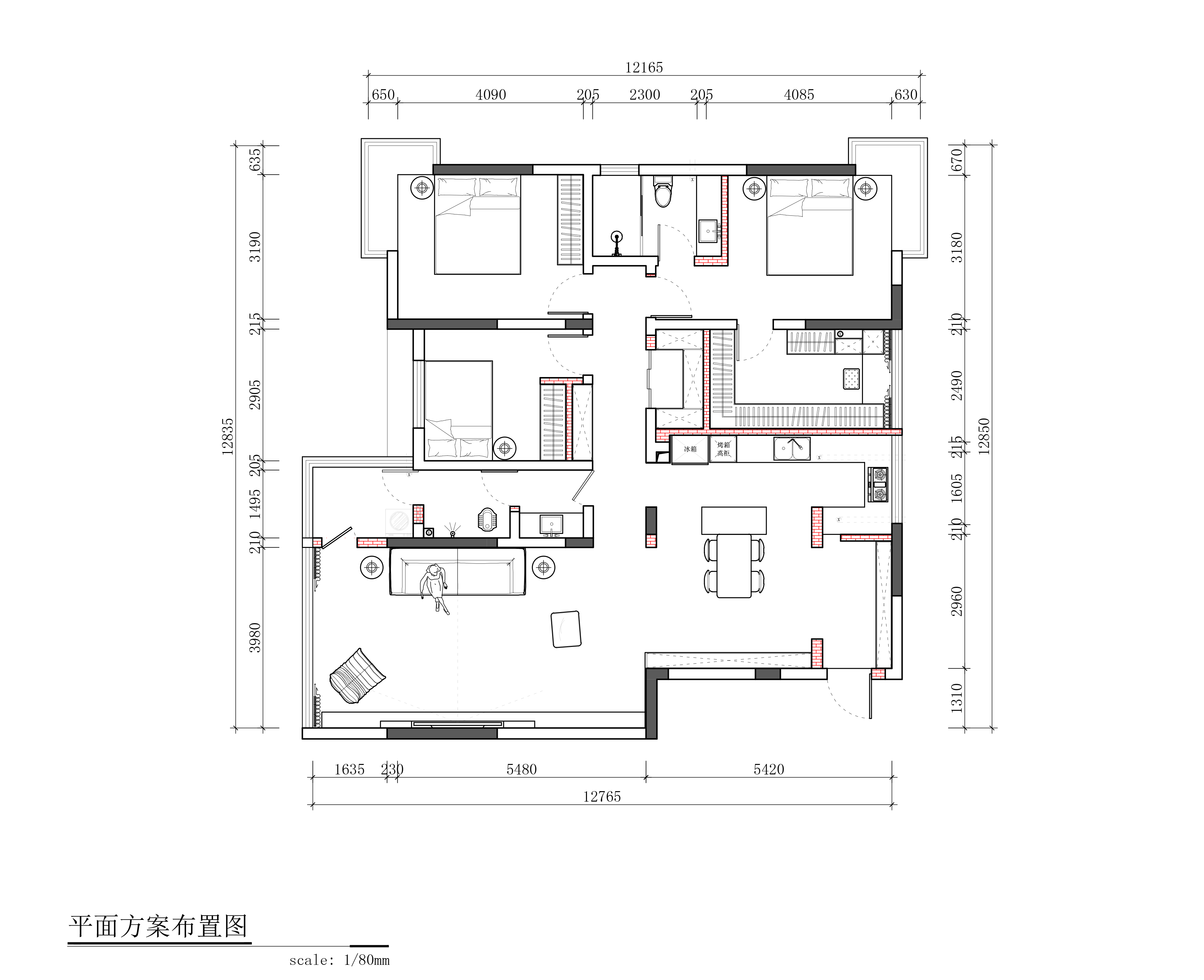
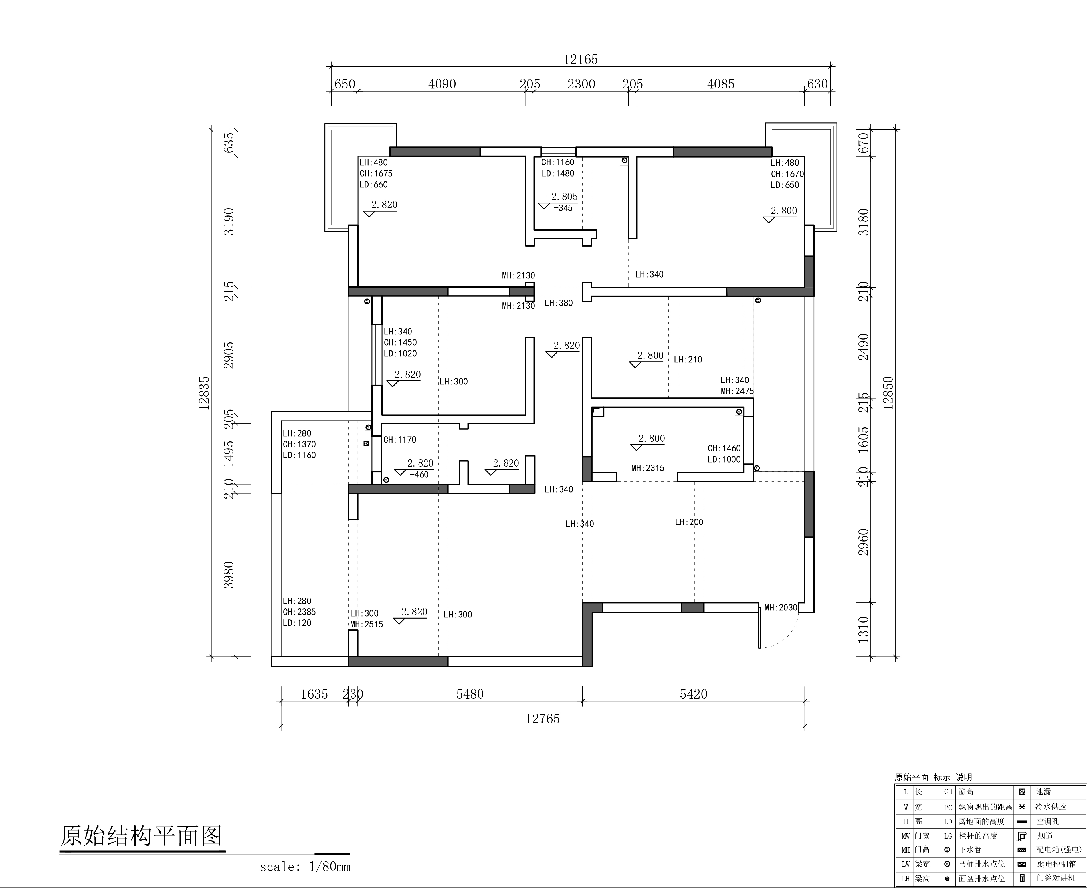
空间意境:空间里的三根梁,曾是横亘在眼前的 “课题”—— 客厅沙发上方、餐厅中央、餐厨交界,它们似要以坚硬的线条,切割生活的流畅感。但设计的妙处,正在于让 “限制” 成为 “灵感的药引”。
-
空间布局:餐厅中央的梁,我们选择让它以 “裸” 的姿态存在。褪去多余修饰,混凝土的粗粝纹理在灯光下愈发清晰,像从米兰老巷深处 “拓” 来的时光印记。它不再是空间的 “打扰者”,反倒成了餐厅的 “精神内核”—— 就像米兰小酒馆里,那些带着岁月痕迹的梁柱,承载着无数关于美食与欢笑的记忆,烟火气与艺术感在此刻,达成了最动人的和解。
-
设计选材:餐厅与厨房之间的大梁,被深灰色赋予了新的生命,化作一道类似大拱门的造型。深灰如夜幕,“拱门” 似通往米兰厨房的神秘通道,既巧妙遮掩了梁的存在,又为餐厨空间划分出朦胧的边界。穿梭其中,仿佛下一秒就能端出一盘米兰风味的意面,香气在 “拱门” 下弥漫,生活的诗意与美味在此间流转。
-
用户体验:客厅那根穿堂而过的梁,被我们纳入电视墙的整体造型中。弧形的温婉包裹住梁的硬朗,恰似米兰建筑里,古典穹顶与现代钢架的对话,自然又充满韵律。当光线漫过弧形墙面,落在梁与墙的衔接处,明暗交织间,仿佛能看见米兰美术馆里,雕塑与空间的共生之美。梁不再是 “结构符号”,而成了客厅艺术叙事里,柔与刚协奏的 “主语”。
0
0

认证 · 让您身份增值