酥山赴方所店
201
作品说明
- 项目类型:餐饮
- 项目地点:西安市
- 建筑面积:300㎡
- 项目造价:150万元
- 参与设计师:郭忠正
- 竣工时间:2025.09
- 设计机构:MOS木石设计
票数 : 0
-
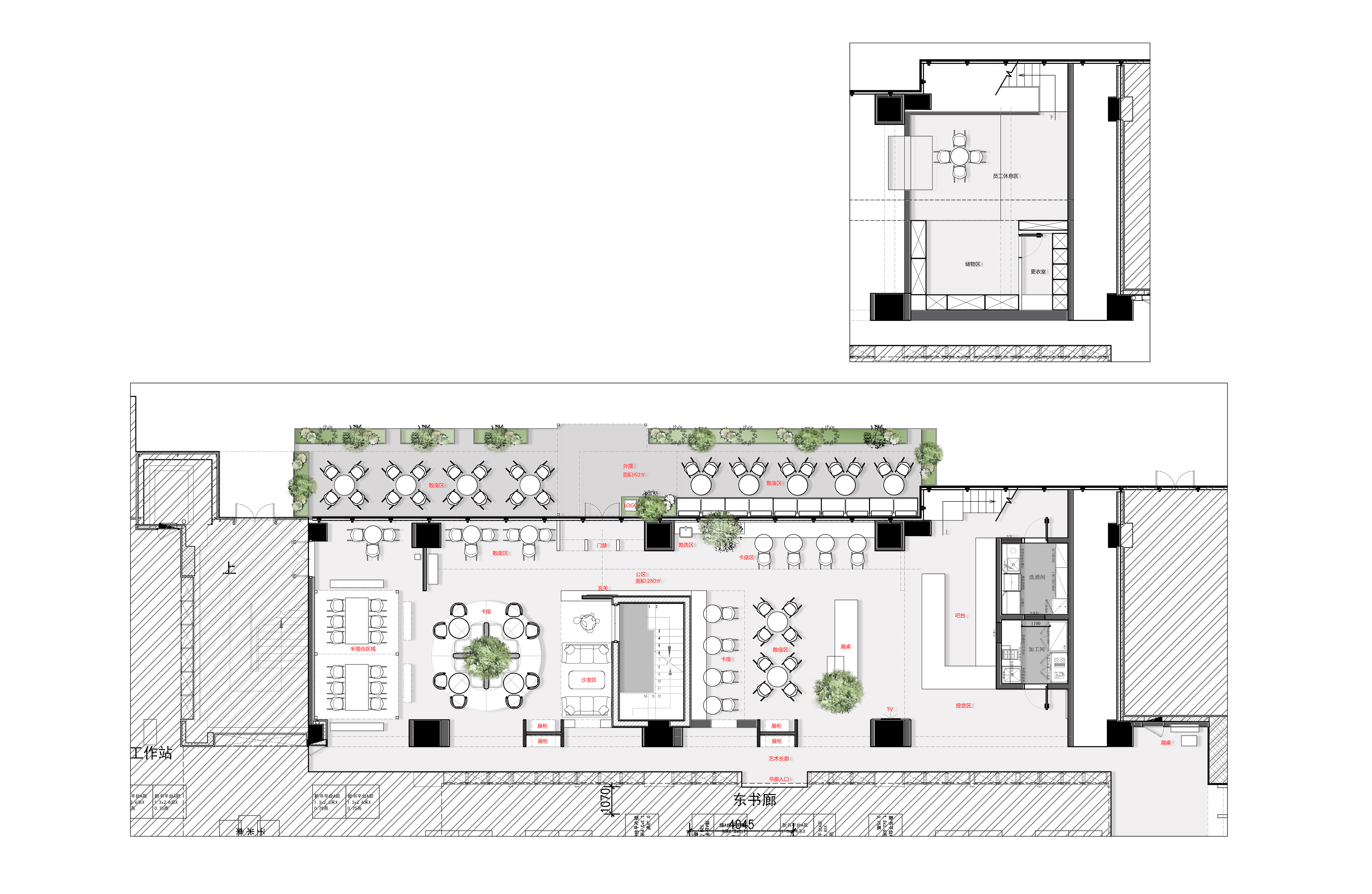
项目定位:以“东方生活美学”为核心理念,将酥山赴定位为融合中式意蕴的现代甜品体验空间。设计上摒弃繁复装饰,提取传统建筑中的框架线条与自然材质,营造宁静雅致的氛围。空间布局充分考虑现代社交与独处需求,设置开放吧台与静谧卡座,确保舒适与便捷。品牌文化深度融入细节——从甜品造型到器物选用,皆传递含蓄和谐的东方哲学,旨在让顾客在品尝糕点之余,沉浸于一种从容、精致的生活态度。
-
空间意境:整体以简练线条勾勒结构骨架,大面留白营造呼吸感与想象意境。精选原木、粗陶、藤编等自然材质,强调触觉温度。通过精心控制的天光与内置灯光,塑造随时间流动的光影韵律,激活空间生命力。巧妙融入传统建筑构件,实现新旧对话。最终以和谐的色调、幽微的香气与背景乐,营造五感沉浸的场域,于静谧中自信传递现代东方的美学深度。
-
空间布局:空间布局上创新性地将中式园林的“移步易景”哲学融入现代商业空间。通过灵活的动线设计,引导顾客在行进中连续体验“造、借、透、框”四重景致。以绿植与艺术装置主动“造景”;巧妙“借景”窗外街巷生机;利用镂空隔断与玻璃实现视线“透景”;最终以月洞门、窗格等元素“框景”,定格诗意画面。整个空间成为流动的立体画卷,模糊了室内外界限,在有限面积内营造出无限延伸、静谧和谐的自然意境。
-
设计选材:使用速生竹材、再生陶土砖及矿区废料再造石材,大幅降低隐含碳。同时,创新性地将传统夯土墙以现代模块化预制方式呈现,既保留了自然质感,又提升了施工效率与经济性,实现了环境友好与成本可控的平衡。
-
用户体验:用户评价普遍聚焦于其独特的“宁静治愈力”——许多顾客表示,踏入空间便自然感到放松与抽离,消费者特别赞赏其将传统文化以不沉重、不刻意的方式自然呈现。
0
0

认证 · 让您身份增值