-
项目定位:当生活回归情感东方美学和现代简约之美,究竟会创造出怎样的生活意趣?本案位于柴桑春天·翡翠岛,业主对传统东方文化情有独钟,内心希望空间能展现出传统文化所蕴含的古典韵味以及深厚底蕴。然设计师基于对业主的充分了解,在此基础上加入现代设计语汇,在传承经典的同时。为空间注入新的活力,让其更贴合当代生活需求,展现出现代东方的审美意趣。
-
空间意境:寻一方静雅之所,觅一处诗意栖居。踏入此厅,恰似穿越时空界限,让传统与现代在空间浪漫相拥。“石韫玉而山辉”,大理石铺就大气基底,金属线条嵌入深沉木作,刚柔并济。圆润壁饰中的红枝,似自然遗落的灵感。棕红沙发宛如一位翩翩君子,静候归人。中式山水墨画前,古韵柜几自成一景,于光影流转中,串联起古今,让每一次的驻足,都成为与东方雅韵的深情对望.门廊之处,圆形镜饰恰似朗月悬空,红枝横斜逸出,如墨韵天成,于素墙之上晕染出东方情致,每一处细节,皆流淌着中式美学的温婉与细腻。在这里,时间仿佛都慢了下来,让居者在忙碌之余能够停下脚步,感受生活的诗意和岁月的隽永。设计师深入洞察居者的生活习性,精心打造中餐厅和西餐厅,满足多元用餐需求。踏入此间,中式古韵扑面而来。水墨墙绘似在诉说千年故事,于光影中勾勒诗意与悠然。红木圈椅搭配大理石圆桌,沉稳大气,尽显东方质感。红瓶橘果,以自然之态添灵动生机。窗外绿意摇曳,室内雅韵弥漫,于此处,静候佳肴与亲友,共品人间至味。
-
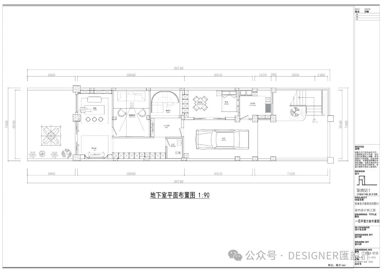
空间布局:鉴于居者对于电梯的摒弃需求,设计师从居者上下楼的舒适体验出发,果断拆除原先狭窄逼仄且陡峭难行的电梯,大胆且巧思将空间中的采光井区域幻化为气势恢宏的超大楼梯,使其贯穿每一层空间,将家的各个区域紧密相连。得益于采光井的独特设计,即使在白天也能明亮如昼,每一次拾级或信步而下,都是一场惬意之旅。阳台大面积的玻璃似一幅巨幕,将城市的璀璨以及自然的葱茏纳入其中。设计师巧妙将洗衣晾晒区域嵌入这片空间,于自然光线中,让衣物也能沾染阳光的温度与清风的温柔。走进衣帽间,深木色柜体尽显沉稳大气,暖光灯带如繁星点缀,营造出温馨且富有格调的氛围。椭圆梳妆镜前,座椅静候,映照出每一个精致瞬间。
-
设计选材:通过合理的搭配和设计,注重简约、大气、自然、舒适,采用中式木质元素打造出既具有现代感又不失传统韵味的家居空间。
-
用户体验:业主非常满意,是其想要的中式美学的效果。
0
0

认证 · 让您身份增值
74