湖南·长沙雅致酒店(旗舰店)
197
作品说明
- 项目类型:酒店
- 项目地点:长沙市
- 建筑面积:13000㎡
- 项目造价:6000万元
- 参与设计师:林永锋、林藝青、鄧子傑、鐘克仁、黄建瑜、陳子挺、林建民、陈恩泽
- 竣工时间:2025.05.01
- 设计机构:广东极度空间酒店设计有限公司
-
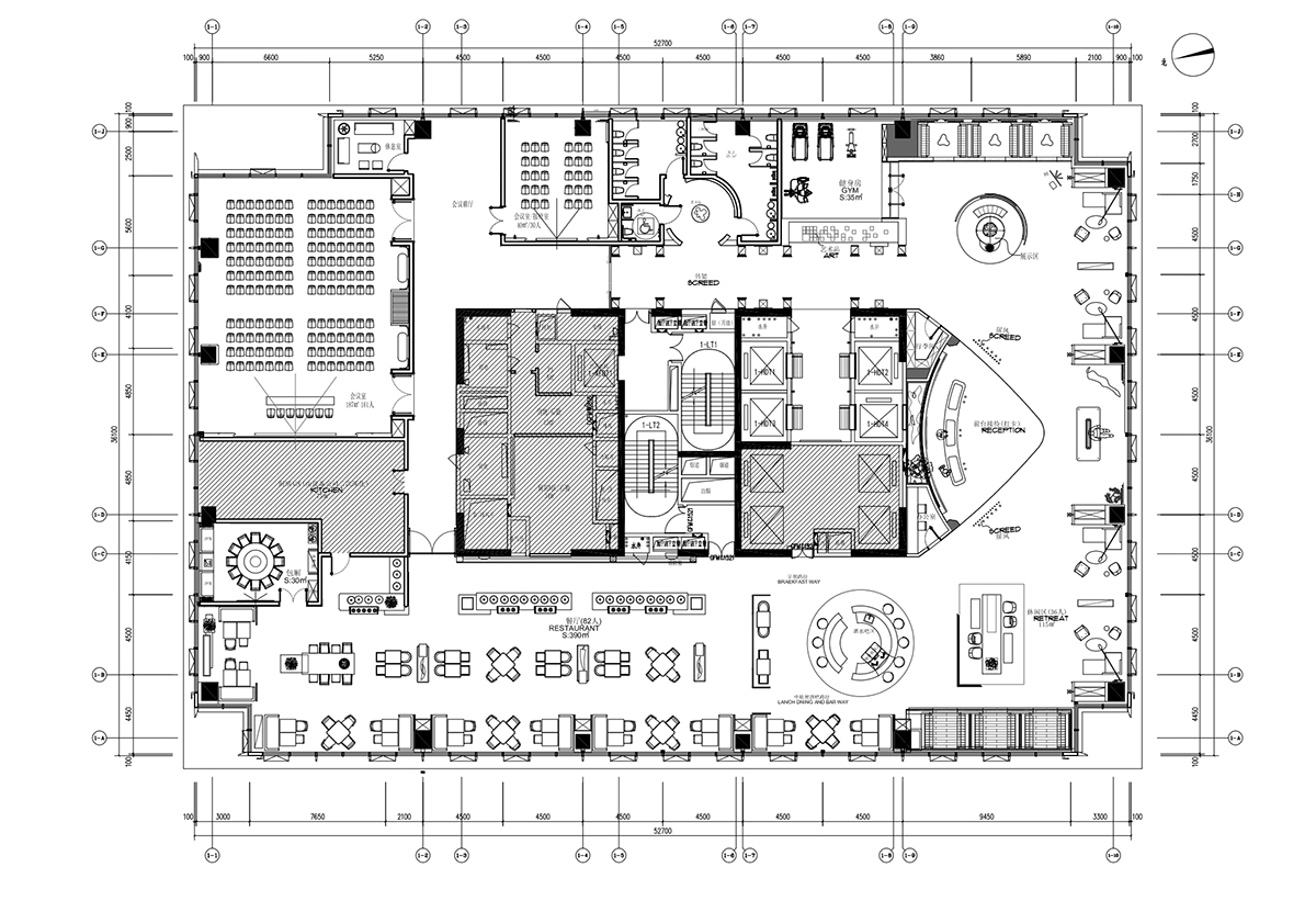
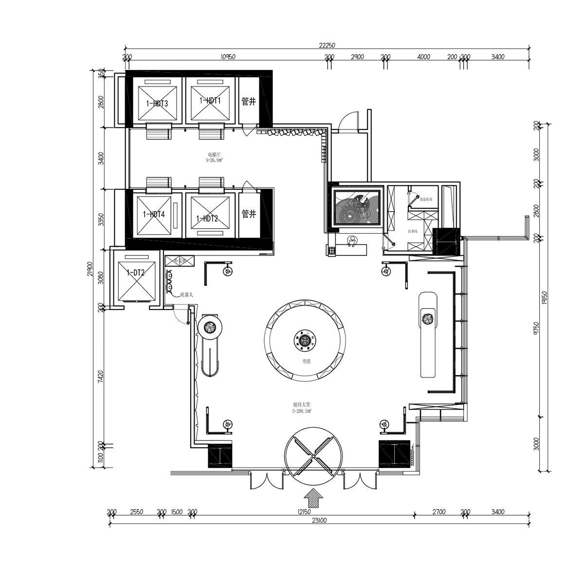
项目定位:长沙雅致酒店的设计深植于岳麓书院文化基因,将传统文化和现代设计语言巧妙结合,定位为一个文化沉浸式的高端酒店项目。它通过将塔的历史形态与书院藏书阁的高耸意象融合,展示湖湘文化的历史底蕴,为宾客提供一个既现代又充满文化内涵的居住体验。该项目的独特定位是将湖湘文化从传统典籍带入当代体验,让宾客在现代舒适的空间中,感受到历史文化的温度与智慧。
-
空间意境:在空间风格上,长沙雅致酒店的创新之处在于将历史文化符号和现代设计元素结合,打破了传统文化空间的单一性。酒店内的书塔和爱晚亭艺术装置,通过现代材质与空间语言重新表达传统文化,让文化元素更加抽象和具象化。设计不仅保留了文化的深度,还与现代空间的舒适感、流动性进行了融合,创造出一个既具有文化深度又符合现代功能需求的环境。
-
空间布局:空间布局创新体现在通过精致的艺术装置和文化元素的合理布置,将历史与现代无缝连接。比如,酒店的迎宾大堂、走廊、会议室等公共空间,不仅注重美学和舒适度的营造,还通过细致的文化表达,使得空间每一处都能传达湖湘文化的独特气息。书架、艺术装置、灯光设计等元素的布局都精准契合酒店的文化主题,同时确保宾客流线的顺畅和功能性的最大化。
-
设计选材:在选材上,长沙雅致酒店的创新之处在于环保和可持续性,材料的使用既符合现代审美,又有利于减少资源浪费。酒店选择了耐久的材料,如金属、玻璃和高性能灯具,确保了空间的持久性和美观性。同时,选材注重低碳与经济性,避免了过度装饰和不必要的资源消耗。通过对文化元素的提炼与现代设计的结合,创造了一个能长期承载文化价值的空间。
-
用户体验:投入使用后,长沙雅致酒店广受好评,宾客尤其赞赏其文化氛围的营造和空间设计的舒适性。酒店通过巧妙的灯光、艺术装置和细节设计,为每个到访的宾客提供了一个沉浸式的文化体验,游客不仅能感受到现代空间的舒适,还能在空间流转间触摸到湖湘文化的脉络与温度。用户反映,这种文化与现代舒适的结合,使得酒店成为一个理想的精神栖居地,为他们的旅行体验增添了更多深度与美好。
0
0

认证 · 让您身份增值