上层意墅工厂展厅
79
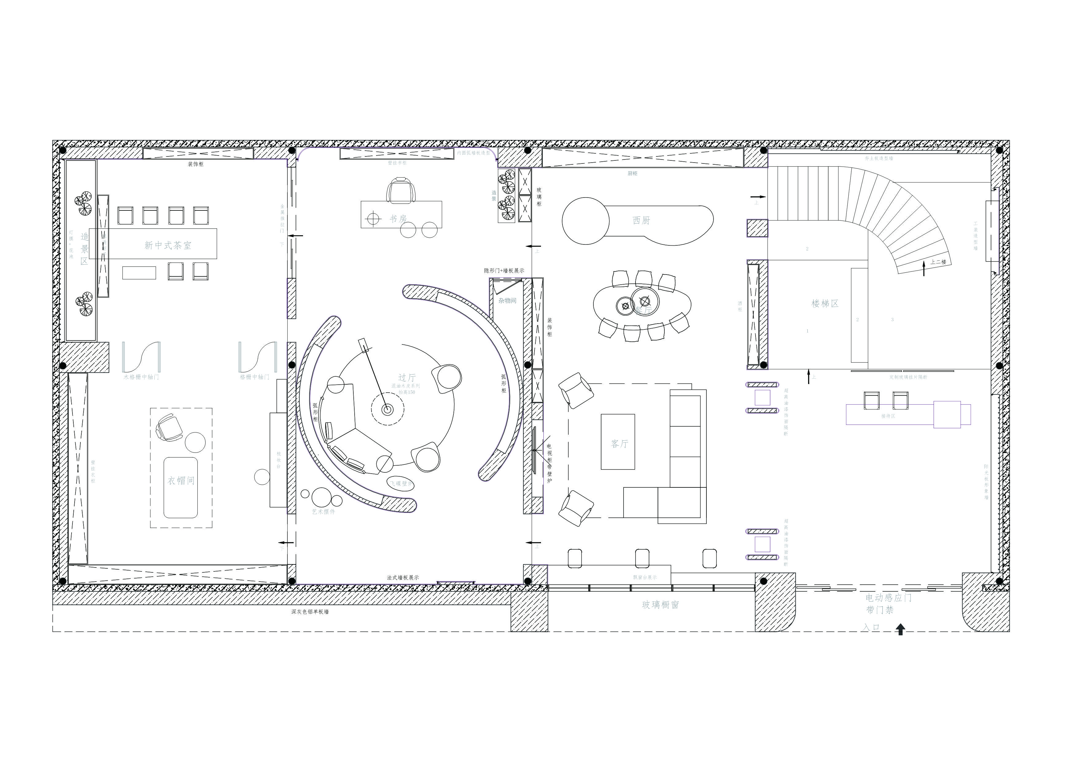
作品说明
- 项目类型:展示
- 项目地点:彭州市
- 建筑面积:370㎡
- 项目造价:160万元
- 参与设计师:张夏
- 竣工时间:2024年6月27日
- 设计机构:成都早晨空间建筑设计有限公司
-
项目定位:上层意墅旗舰馆的设计灵感源于顾客的日常生活动线。
-
空间意境:将客餐厅、卧室、厨房等生活场景无缝衔接。
-
空间布局:通过精心的空间布局和细致的功能分区,让参观者仿佛置身于一个精致而舒适的居家环境中,真正体验到家的温暖与便利。
-
设计选材:运用木材的质感与肌理融入,还原自然的色调,让建筑与生态自然连接利用几何线条营造秩序感与简约高级感呈现具有全球国际化视野的展厅空间。
-
用户体验:体验感+观赏性让客户对展厅一致性好评。
0
0

认证 · 让您身份增值