北京前门文华东方酒店
228 - 项目类型:商业照明
- 项目地点:北京市
- 建筑面积:11500㎡
- 项目造价:650万元
- 主案设计师: 朱海燕
- 参与设计师:朱海燕
- 竣工时间:2024年9月
- 设计机构:关永权灯光设计(北京)有限公司
-
照明设计说明:“京”神所在
•北京前门文华东方酒店位于北京中轴线区有着600年历史的前门草厂胡同院落之中,与首都的文化历史一脉相承,仅设42座庭院式客房,非同凡响且独树一帜。作为北京唯一一片南北走向的胡同群,也是北京保存最好的老胡同片区之一。酒店公共空间和院落式客房巧妙地隐于这处传统的院落之中。
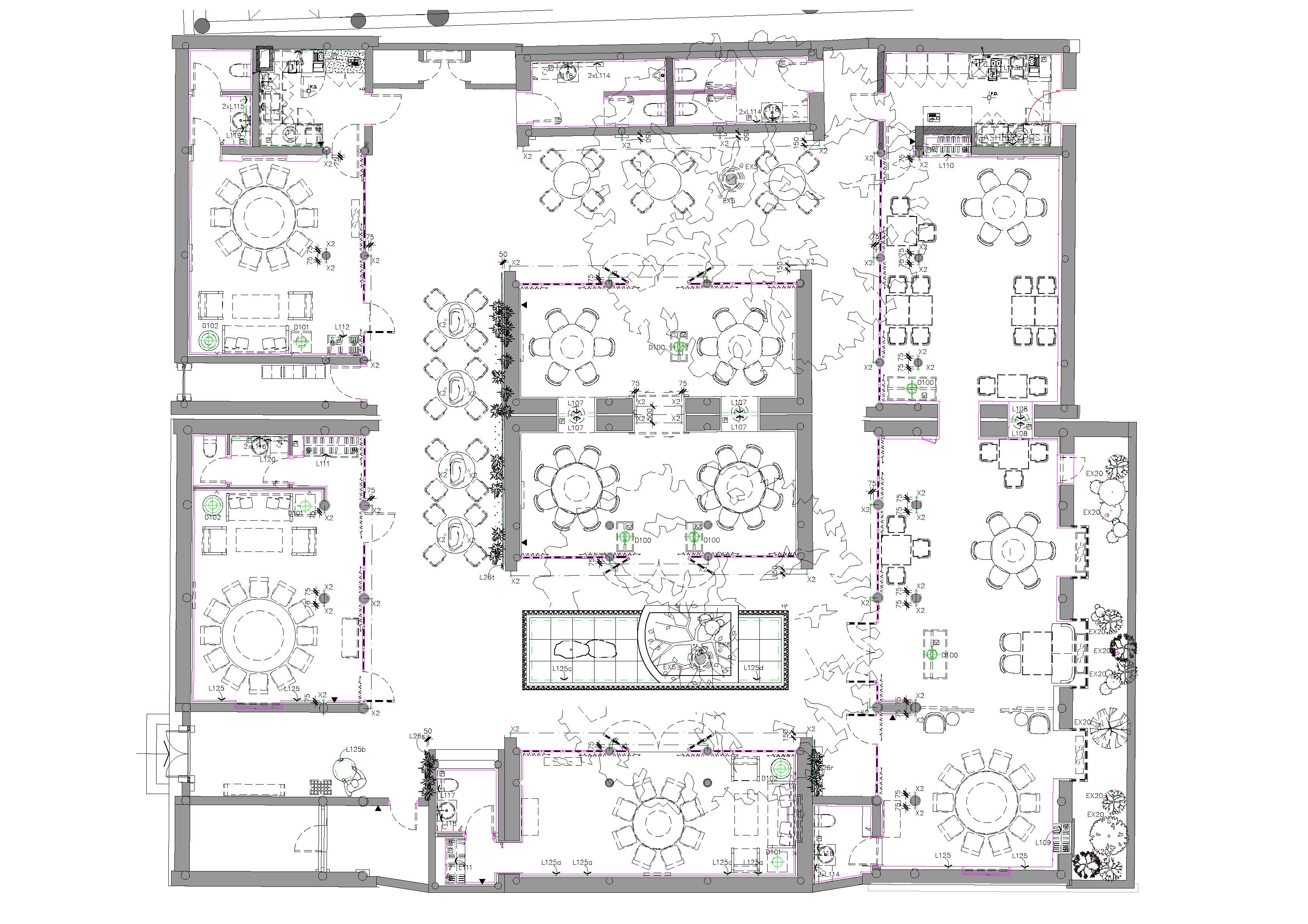
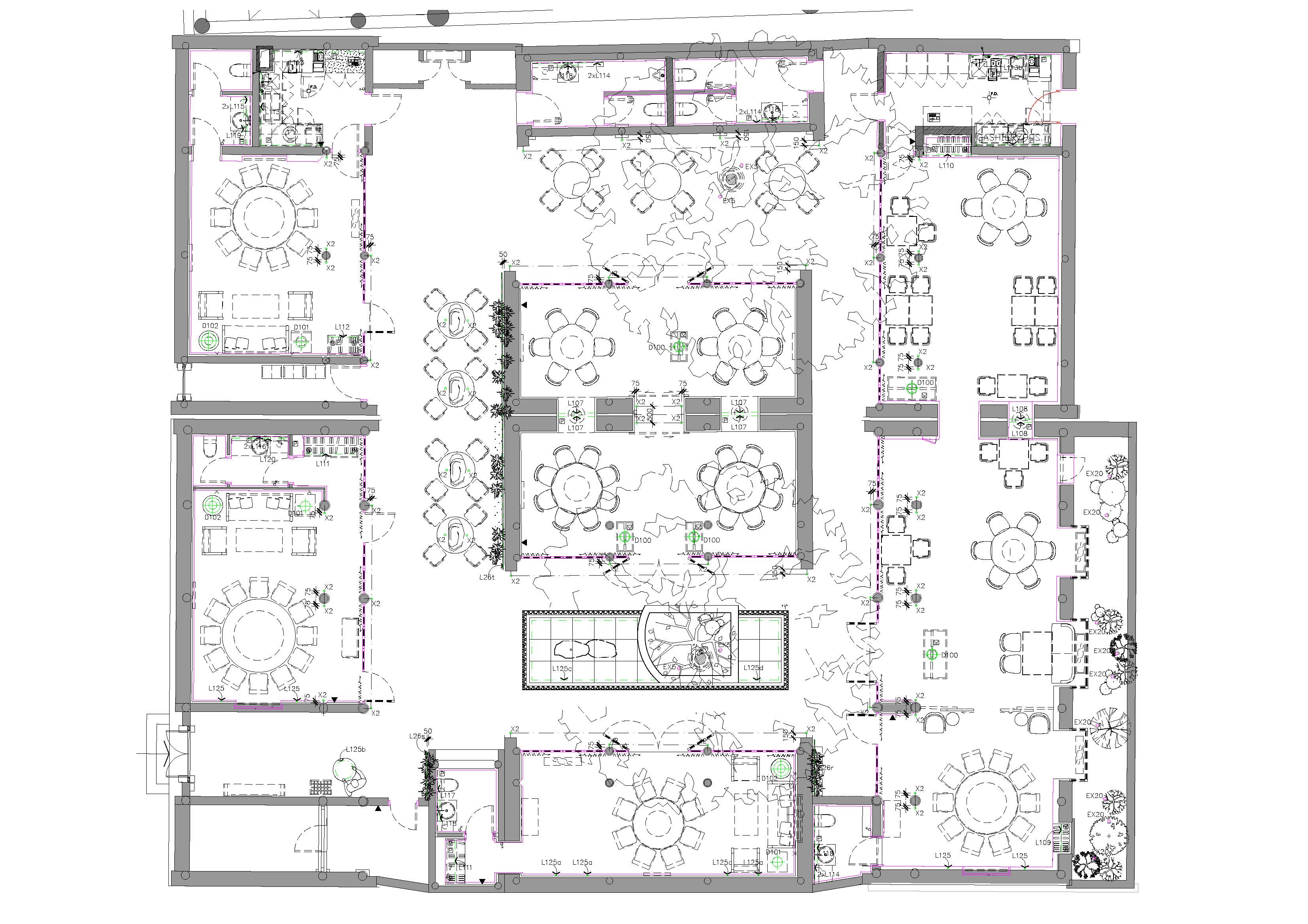
VICINI 意大利餐厅 • 别具格调与活力的意式餐厅VICINI设有露天用餐空间,可以享受意餐的同时感受京城胡同屋顶的奇妙景色。餐厅天花保留原有结构框架,暗藏灯带衬托出结构层次,中式窗格设计元素借鉴于天花吊顶,背光照明方式呈现装饰造型轮廓。桌面补充重点照明,高显值呈现菜品色泽,夜晚灯光模式相对降暗,呈现更加柔和光效的意餐氛围。
Yan Garden by Chef Fei 檐庭 • 由米其林星级主厨在宁静的传统四合院中,呈现优雅的粤式及潮州精致料理,由三个独立的大包间和部分散台组成的独立院落的中餐厅,木梁结构的屋顶同样被暗藏灯带勾勒出结构层次,明装窄角度射灯对桌面重点照明,散台区窗外小投光灯补充室外墙体照明,让客人在室内就餐的同时也感受室外古墙院落的庭院感。
TIAO 十条 • 十条坐落于北京传统胡同之中,是一间独具特色的现代鸡尾酒吧,富有想象力的鸡尾酒、人物和故事,呈现地道的北京风情。十条酒吧的美,是只有在夜幕降临后才显现的,聚焦餐台的灯光让人在酒吧里更加关注酒水的呈现,背景灯光很好的呈现了酒水的展示效果,同时也让窗外老胡同的街景更加迷幻。在摩登都市的怀抱中,在别具特色的十条拥抱夜晚的无限可能。
TIAO 十条 • 十条坐落于北京传统胡同之中,是一间独具特色的现代鸡尾酒吧,富有想象力的鸡尾酒、人物和故事,呈现地道的北京风情。十条酒吧的美,是只有在夜幕降临后才显现的,聚焦餐台的灯光让人在酒吧里更加关注酒水的呈现,背景灯光很好的呈现了酒水的展示效果,同时也让窗外老胡同的街景更加迷幻。在摩登都市的怀抱中,在别具特色的十条拥抱夜晚的无限可能。
TIAO 十条 • 十条坐落于北京传统胡同之中,是一间独具特色的现代鸡尾酒吧,富有想象力的鸡尾酒、人物和故事,呈现地道的北京风情。十条酒吧的美,是只有在夜幕降临后才显现的,聚焦餐台的灯光让人在酒吧里更加关注酒水的呈现,背景灯光很好的呈现了酒水的展示效果,同时也让窗外老胡同的街景更加迷幻。在摩登都市的怀抱中,在别具特色的十条拥抱夜晚的无限可能。
TIAO 十条 • 十条坐落于北京传统胡同之中,是一间独具特色的现代鸡尾酒吧,富有想象力的鸡尾酒、人物和故事,呈现地道的北京风情。十条酒吧的美,是只有在夜幕降临后才显现的,聚焦餐台的灯光让人在酒吧里更加关注酒水的呈现,背景灯光很好的呈现了酒水的展示效果,同时也让窗外老胡同的街景更加迷幻。在摩登都市的怀抱中,在别具特色的十条拥抱夜晚的无限可能。
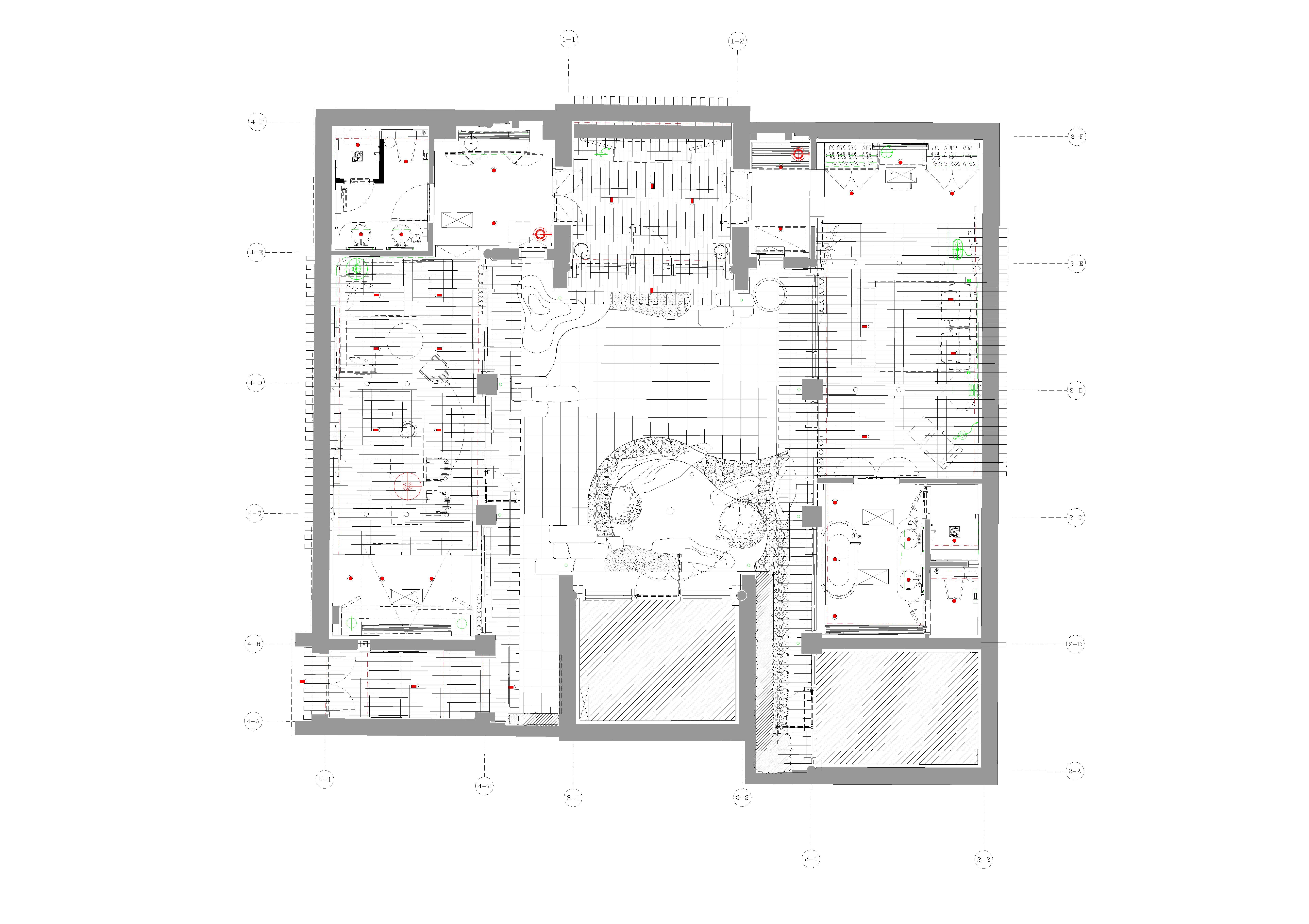
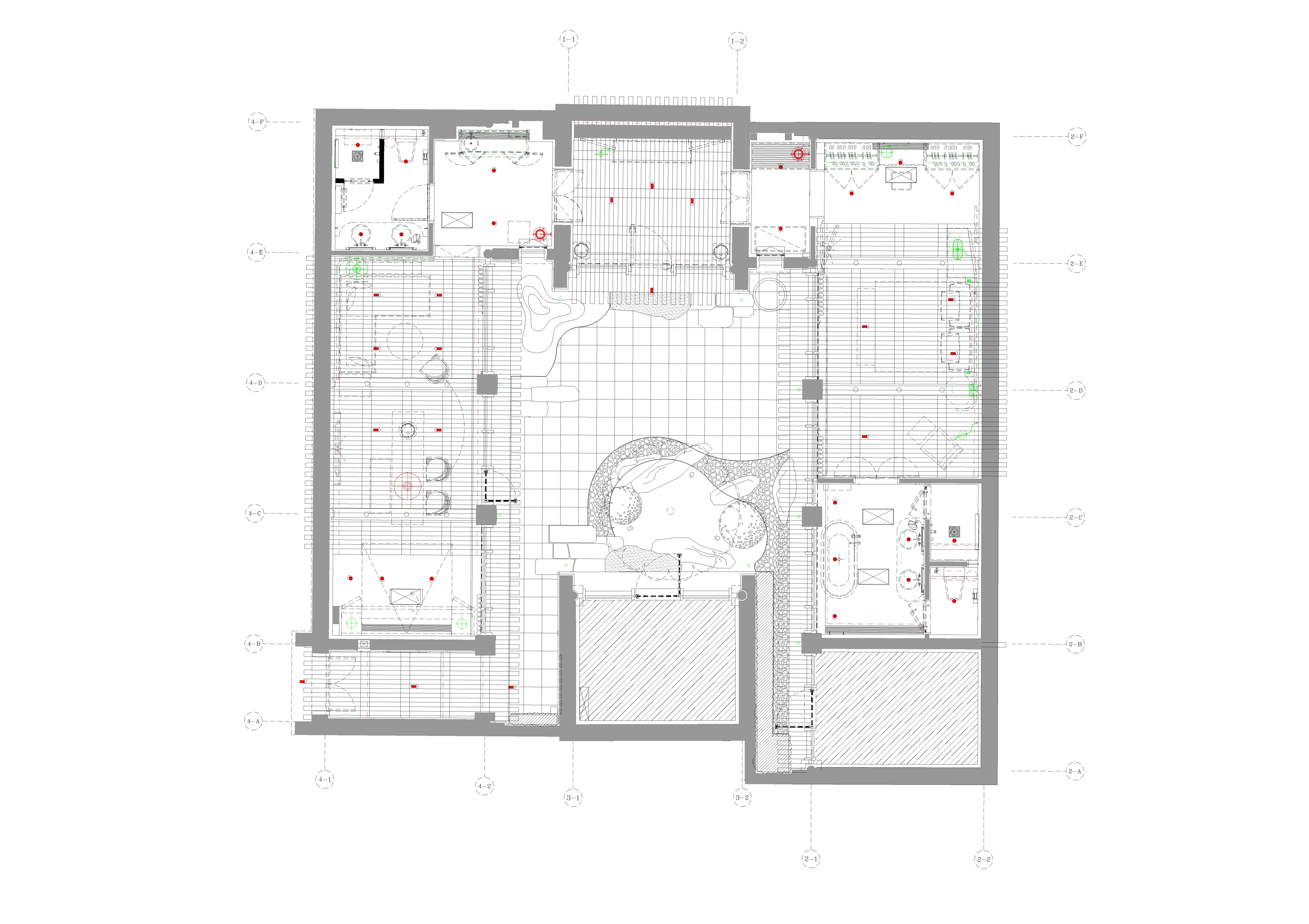
客房 • 42座精美庭院客房采用原木框架的建筑风格,布局各异,空间宽敞,与当地胡同民居相邻。每个院落均自成一体,散落于草厂三条至十条这八条胡同中。自带庭院的客房每户都各具特色,每个院落都有各自不同的庭院景观,夜晚庭院灯光开启,室内灯光也设置了不同亮度的三个场景,供客人不同功能使用,营造不同层次灯光氛围,让客人在落地窗的院子里独享属于自己的一片宁静天空。
客房 • 42座精美庭院客房采用原木框架的建筑风格,布局各异,空间宽敞,与当地胡同民居相邻。每个院落均自成一体,散落于草厂三条至十条这八条胡同中。自带庭院的客房每户都各具特色,每个院落都有各自不同的庭院景观,夜晚庭院灯光开启,室内灯光也设置了不同亮度的三个场景,供客人不同功能使用,营造不同层次灯光氛围,让客人在落地窗的院子里独享属于自己的一片宁静天空。
0
0

认证 · 让您身份增值