江西阁皂山文旅项目
315
作品说明
- 项目类型:商业
- 项目地点:樟树市
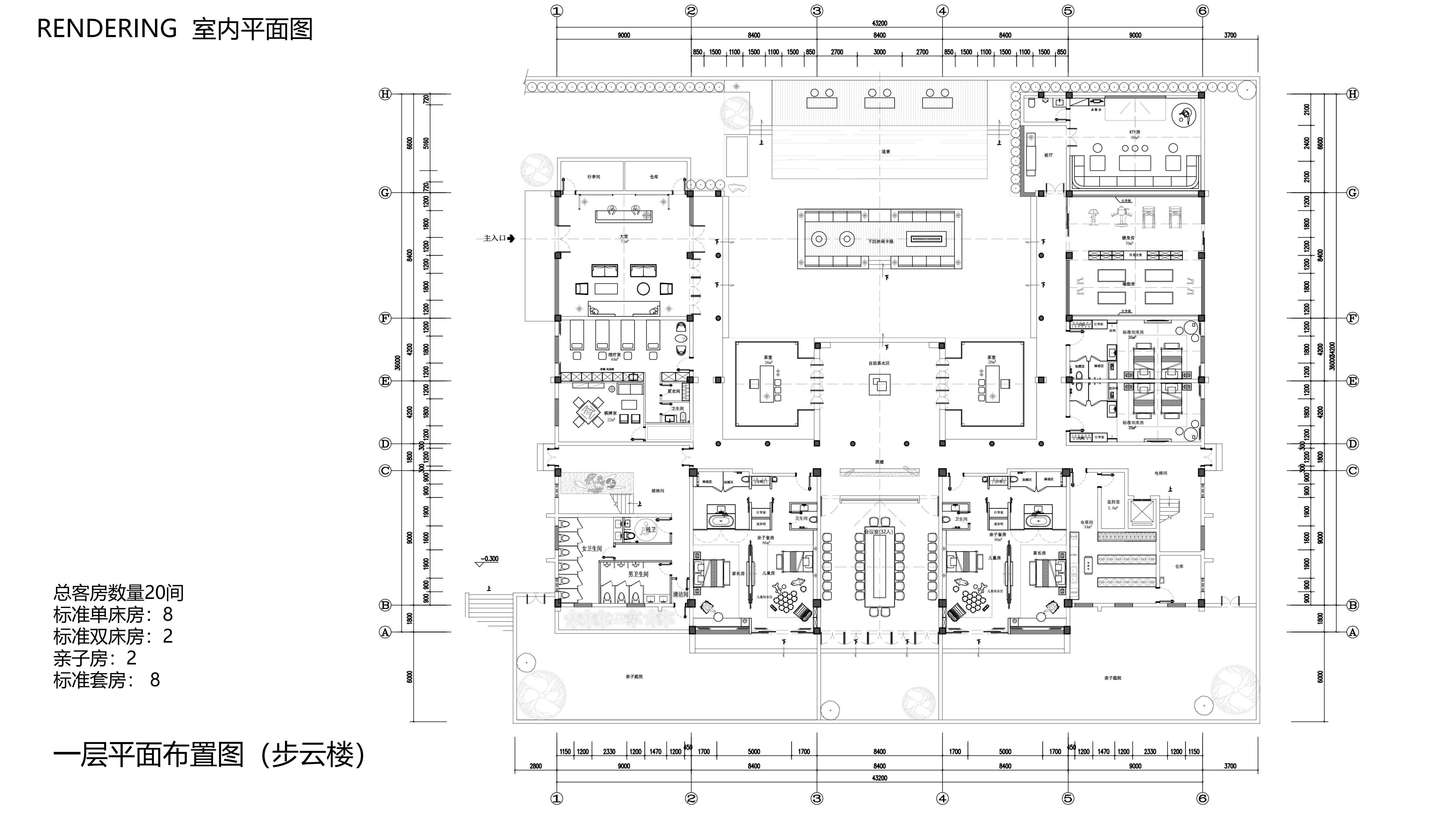
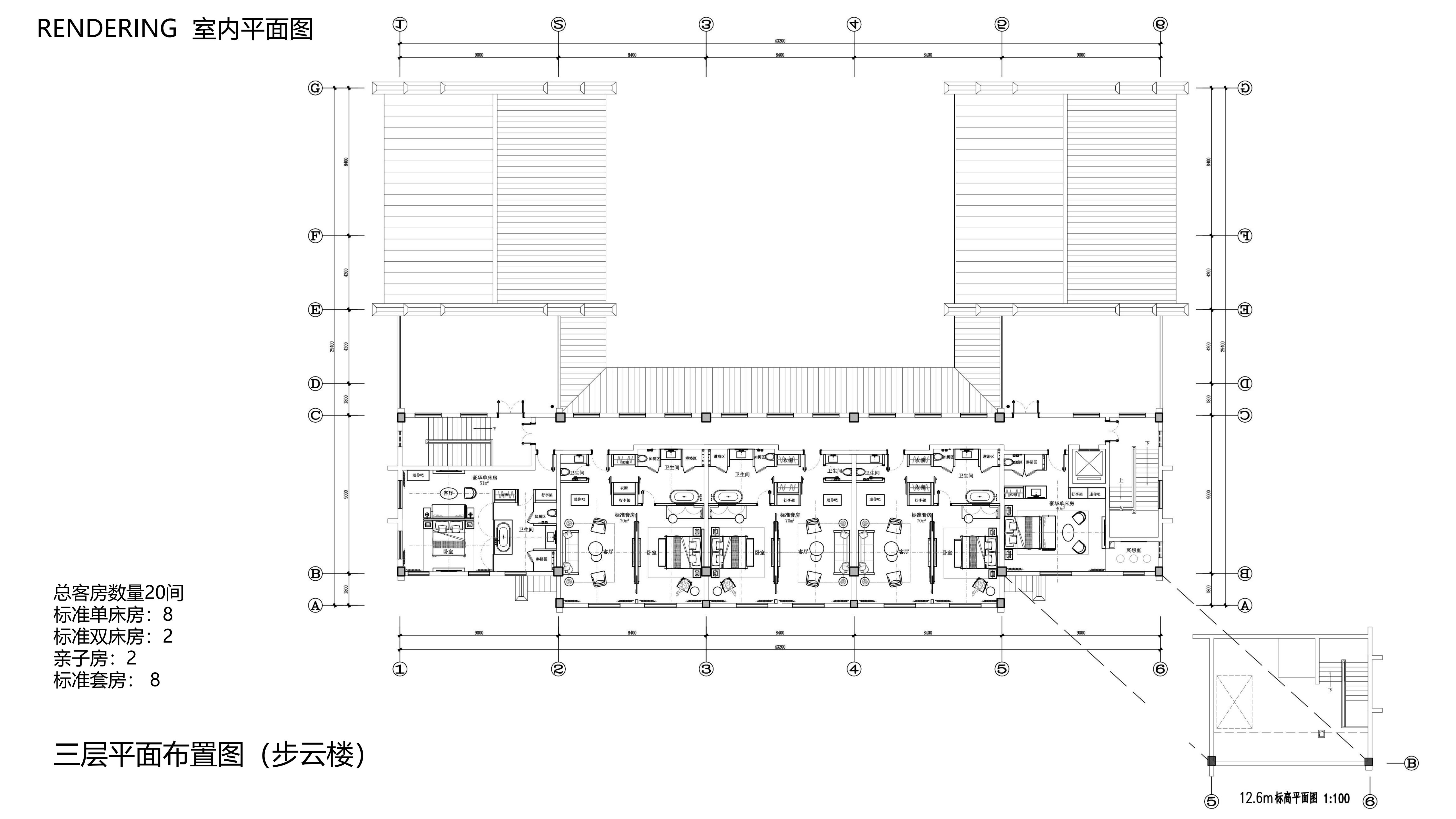
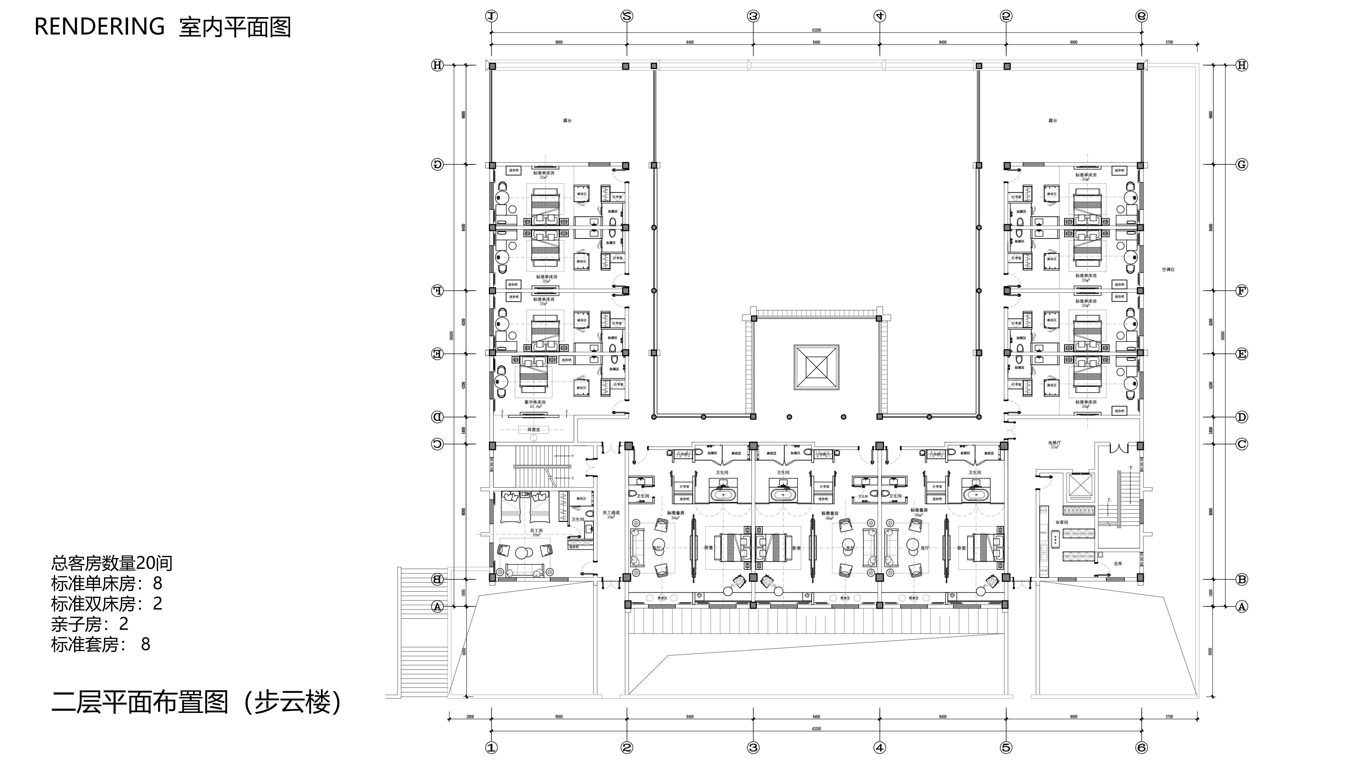
- 建筑面积:15000㎡
- 项目造价:2300万元
- 主案设计师: 刘巍
- 参与设计师:刘巍
- 竣工时间:2025年10月
- 设计机构:黑龙江汇美艺术设计有限公司
-
项目定位:聚焦江西阁皂山 “道教灵宝派祖庭 + 天然药山” 双 IP,定位为 “道养生活美学沉浸式文旅空间”,以 “轻道文化 + 自然疗愈” 为核心,区别于传统宗教景区,主打都市人群短途康养 + 文化体验的微度假场景,融合道医康养、药食同源、山林雅集等体验,打造江西本土 “轻道文化生活方式” 目的地。
-
空间意境:打破传统道教建筑的严肃厚重感,以 “林隐道境” 为风格内核:还原阁皂山古观 “隐于林” 的意境;室内以 “药草色系(青黛、苍术黄、茯苓白)” 为主色调,搭配枯山水小品、悬垂式药草装置,实现 “人在景中、景随境动” 的自然道韵氛围。
-
空间布局:采用 “三圈递进式” 布局:核心圈为 “灵宝阁轻体验区”(浓缩道文化展示 + 非遗手作),中间圈是 “药山疗愈带”(串联道医问诊室、药草茶寮、山林冥想台),外围圈为 “林涧雅集区”(散点式布置露营茶席、药膳野餐点);各区域以 “林间步道 + 空中连廊” 衔接,既保留山林原生肌理,又实现 “游 - 养 - 闲” 动线的无缝切换。
-
设计选材:优先选用阁皂山本土材料:搭配 “藤编 + 再生棉麻” 制品,同时复用老观拆除的旧石构件做景观小品,既降低异地选材的运输成本,又强化项目的在地文化辨识度。
-
用户体验:投入后可实现 “文化感知 + 身心疗愈” 双重体验:用户可通过 “道医体质检测 + 定制药草茶方” 获得个性化康养建议,参与 “山林采药 + 药膳 DIY” 感受药山文化;预期用户评价集中为 “既有道教文化的氛围感,又没有距离感”“待一天能放松下来,还能带走药草伴手礼”,同时短途微度假的属性可提升周末复游率,成为周边城市人群的 “固定康养打卡点”。
0
0

认证 · 让您身份增值