樂悟LOOWO
146
作品说明
- 项目类型:零售
- 项目地点:南京市
- 建筑面积:450㎡
- 项目造价:140万元
- 主案设计师: 王晨月
- 参与设计师:刘鹏,王晨月,庞琳,金元宝
- 竣工时间:2025.6
- 设计机构:拓新设计
-
项目定位:本案位于南京市秦淮区的秦淮河畔,店铺整体设计以“克制品质、新旧交融”为核心调性,围绕1-3层空间构建兼具功能性与文化感的服装零售场景,既满足商品陈列与顾客体验需求,又通过材质、灯光与细节设计传递品牌温度。
-
空间意境:硬装采用比较简约的材质,结合体块造型,打造简约干净的室内空间,结合美陈,古董家具等,打造丰富混搭的购物空间
-
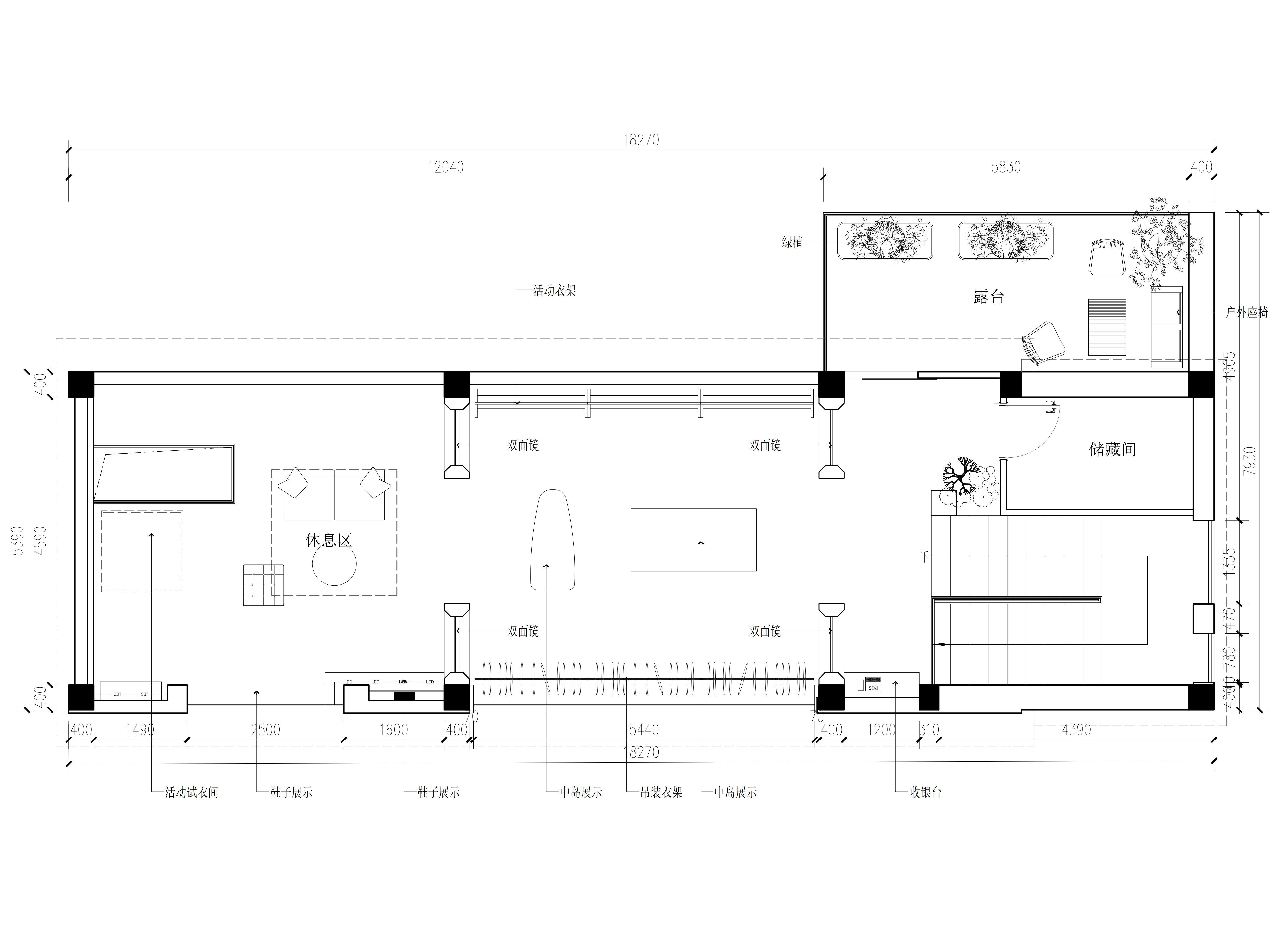
空间布局:1F作为整个空间对外展示的核心区域,以“开放式体验”为核心理念进行精心设计。该楼层主要布局了服务接待台、产品展示台、多个造型独特的岛台以及试衣间等功能区域,通过流畅的动线设计和精心营造的光影效果,打造出极具沉浸感的购物氛围。在材质运用上,地面选用天然莱姆石砖铺装,其独特的纹理和质感为空间奠定了自然质朴的基调;墙面则采用灰色仿混凝土艺术漆与不锈钢材质相结合的处理方式,配合精心设计的灯光系统,营造出富有层次感的光影效果。这种材质与灯光的完美搭配,既突出了服装产品的陈列效果,又强化了整个空间的精致度和品质感。
2F被定位为“休闲与深度体验区”,在延续首层莱姆石砖局部地台设计语言的基础上,地面采用了更为简约纯粹的纯色铺装材质,通过不同材质的对比运用,创造出丰富的视觉层次。该区域精心规划了舒适的休闲等候区、精选的成品古董家具展示区以及多组可灵活调整的活动衣架展示区,这些元素的有机结合,巧妙地柔化了空间的边界感,营造出轻松惬意的购物环境。
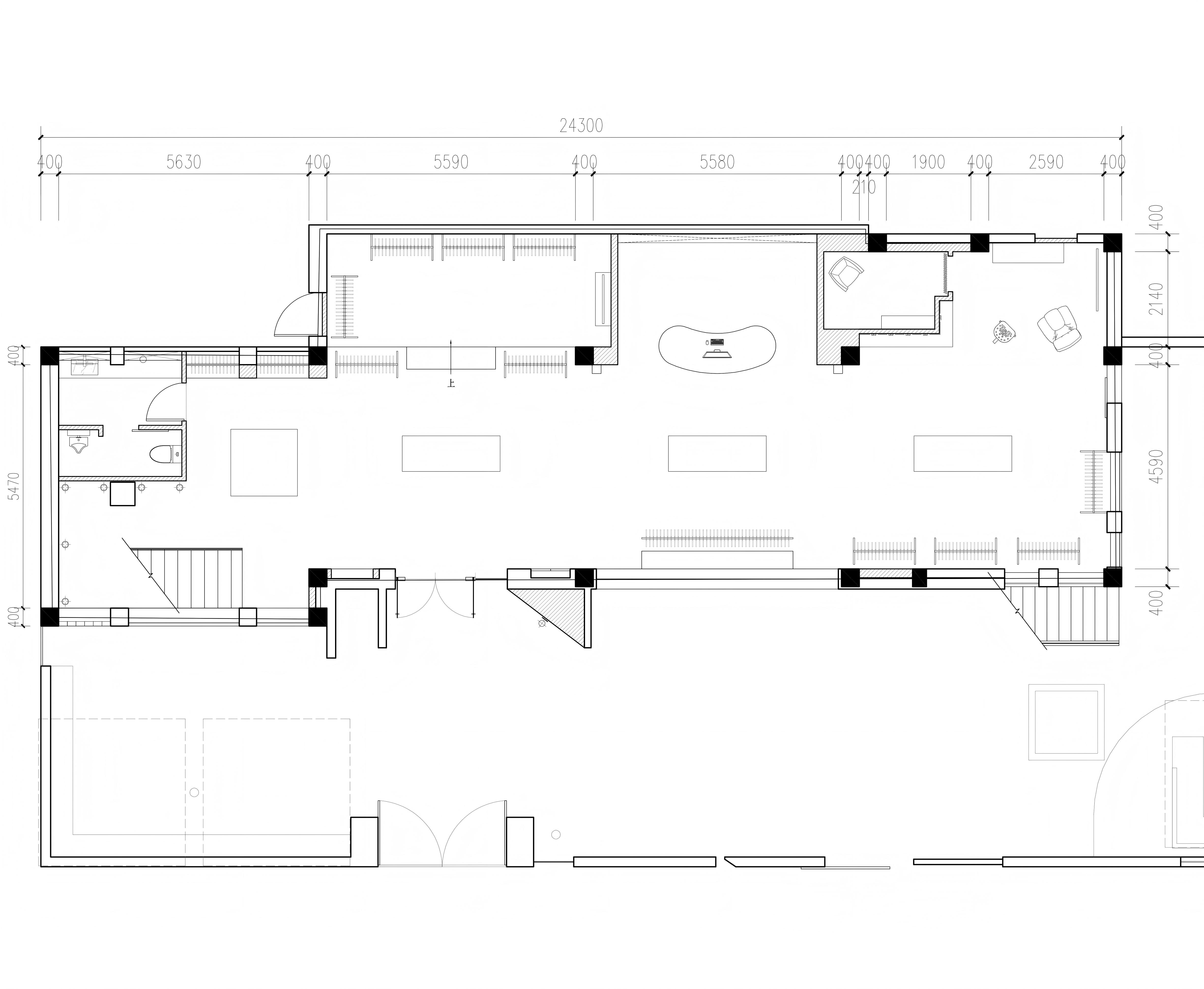
3F则聚焦于“多功能艺术灵活性”的设计理念,针对不同类型的产品特点,设置了多样化的陈列展示方案,充分满足各类商品的展示需求。 -
设计选材:在整个空间的设计中,运用了拿破仑黑石材、不锈钢等现代感十足的材质,与精心挑选的成品古董家具、带有历史印记的艺术陈列品形成鲜明对比,创造出独特的“新旧对话”效果。这种设计手法不仅确保了空间的功能实用性,更强化了整体环境的品质感和艺术性。同时,结合定制的艺术装饰品点缀其间,最终实现了“功能性与文化性共生”的设计目标,打造出一个独具特色的服装零售空间。
-
用户体验:“好逛又好拍”“太漂亮了,随便拍都能出片”“环境很安静,旁边还有咖啡甜品,太适合和姐妹一起打卡逛街了”
0
0

认证 · 让您身份增值