中堂海陆汇(国展店)
170
作品说明
- 项目类型:餐饮
- 项目地点:哈尔滨市
- 建筑面积:1643㎡
- 项目造价:1500万元
- 主案设计师: 靳全勇
- 参与设计师:陈鹏,付琨,姚业生,孙秋实,郑策
- 竣工时间:2023
- 设计机构:哈尔滨唯美源装饰设计有限公司
-
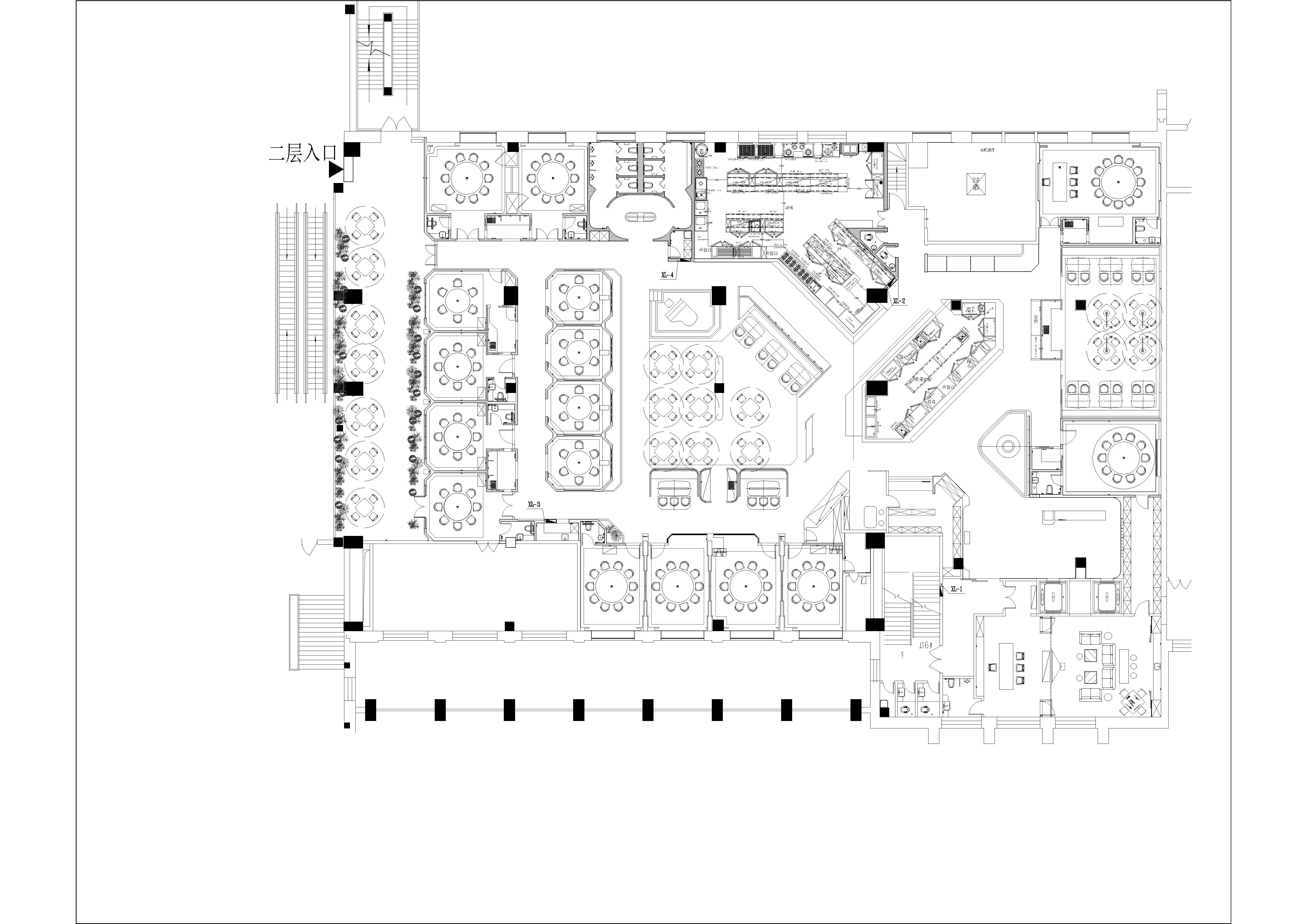
项目定位:中堂海陆汇是哈尔滨本土海鲜自助连锁品牌, 创立于2014年左右, 截至2025年在博物馆商圈与群力商圈运营国展店、群力汇智金邸店等分店, 总营业面积超2000平方米 。品牌采用菜单点餐式自助模式, 主打鲜活海鲜与高端料理。
-
空间意境:中堂海陆汇设有明档厨房、自助甜品区等功能分区,提供各类就餐类型。
-
空间布局:餐厨面积布局合理,人均用餐面积优良。
-
设计选材:可回收金属及玻璃,运用具有防火品质的装饰材料,保障环境安全
-
用户体验:中堂海陆汇是哈尔滨本土海鲜自助连锁品牌,拥有良好的就餐环境,吸引家庭聚会,亲子活动,团建,是网红打卡地。
0
0

认证 · 让您身份增值