-
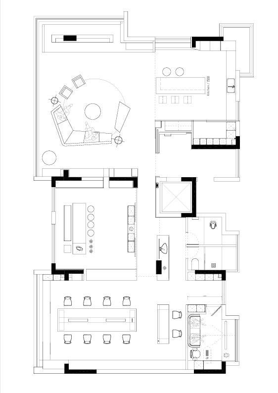
项目定位:原户型结构为240平的大平层,将其改成自己的全案设计工作室。通过各种空间的镇级体验展示让业主真实感受到居家空间的每一处细节施工与人文关怀的情感设计,力求设计空间可以让业主感受到一种情绪上的放松愉悦
与精神上的享受,同时改善自己的工作环境,更加静谈且沉得下心创造出更好的作品。 -
空间意境:以现代极简为主,但因为是全案设计工作室,所以更加突出整体的设计感。
-
空间布局:原户型为240平的大平层,保留客类厅、厨房一体化的设计,原有的4个卧室将其全部打通,打造一个开放式的办公区,选样区和洽谈区,270唐的阳台打造为既是阳台也是室内的场景,并在其中加入五恒系统。
-
设计选材:采用自然、质朴的材料:原木材料、洞石、水磨石的岩板等在空间中碰撞,可持续且易清理。
-
用户体验:作为自己公司的办公室,自己参与设计,工作室的每个小伙伴都很满意且开心。
0
0

认证 · 让您身份增值
127