长沙岳麓万豪酒店
60
作品说明
- 项目类型:商业
- 项目地点:长沙市
- 建筑面积:2000㎡
- 项目造价:800万元
- 主案设计师: 菊设空间设计
- 参与设计师:李菊,徐静瑶,高佳慧,张齐
- 竣工时间:2025
- 设计机构:菊设空间设计(上海)有限公司
-
项目定位:项目坐落于长沙岳麓之畔,临西湖文化区而居,拥有得天独厚的景观优势。
-
空间意境:依托建筑本身的通透玻璃结构,四季风物皆可入境:春花明媚,夏木葱茏,秋山静美,冬雪清雅。山水为幕,云光作景,每一次到访,皆似步入一场随时序流转而上演的自然剧场。
-
空间布局:以“四季”为主旋律,将自然意象化为空间的情绪语言,让“春·夏·秋·冬”的节奏贯穿多重场域,令人在游走中,亦如行走在一年四时之中,心随境转,意随景生。
-
设计选材:以“星城”长沙的千年文脉为灵感,我们将地域文化与传统工艺融入软装与艺术品设计之中。主要空间的花艺由关越创作,主题系列陶瓷艺术品由以宁创作。
-
用户体验:运用现代材质与艺术语言(如大理石雕塑、油画刺绣屏风、手作漆画、陶瓷器皿)重新诠释传统技艺,使作品既承载文化厚度,又契合当代审美。
迎宾大堂选以“江天暮雪”为题,化冬日静美为空间神思;
泳池区域地面蓝紫色的马赛克拼贴出丰富的画面。
阳和启蛰,品物皆春。
茶室选用浓重的色调营造沉稳的氛围。
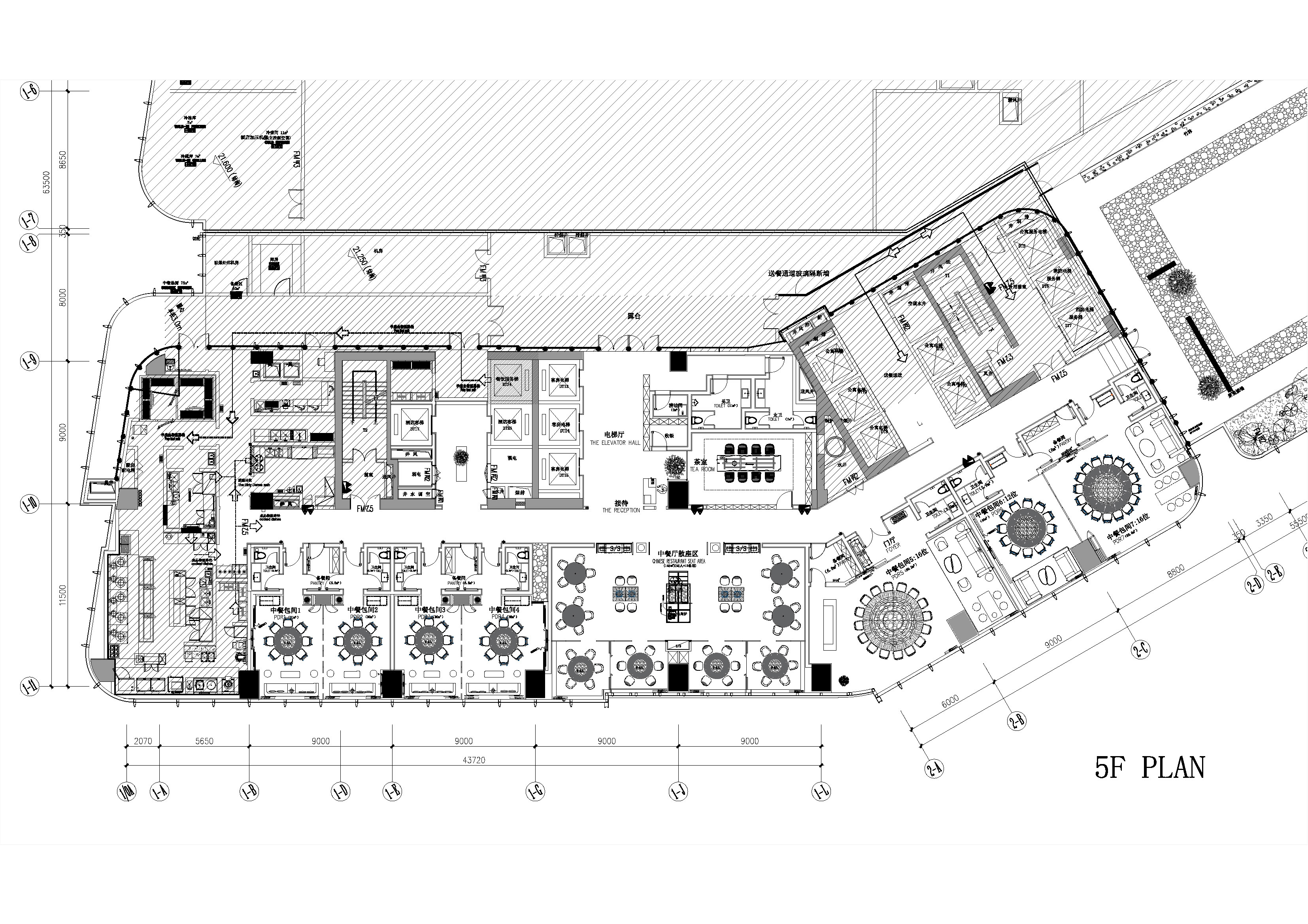
中岛台上花艺由花艺师关越创作。
绿色大理石雕出翠鸟造型,局部手凿出凹凸肌理。
中餐厅散座区域艺术品是以植物自然生长形态为灵感创作,画面渐变。
中餐厅则以“桔洲浮绿,岳麓送青”为主题,描绘出翠鸟低飞、绿意浮动的春光图卷;
风禾尽起,盈车嘉穗。秋是收获的季节,21楼整层色调围绕秋季进行设计,墙面咖金色的艺术气泡砖和地面上印着黄色枫叶的地毯。
大堂吧主要以船吧的形式呈现,来源于“黑石号”的故事,1998年黑石号在印尼被发现,这艘古代沉船仿佛一颗凝固的时代胶囊,以湖南长沙瓷窑瓷器为主的6万多件文物从海底浮出。
空中大堂以“状元及第”为名,寓意丰收、荣耀,也承载一份秋日沉静的从容;
契合长沙窑的元素,艺术品选用了造型别致的陶瓷在黄铜色底座上呈现。“长沙十万户,游女似京都”,“著处繁华矜是日,长沙千人万人出”,自古繁华的城市城,如今依然熙熙攘攘,独特的烟火文化成为城市标志。
34楼行政酒廊内部,这幅长画,画面整体以防火纸来制作出马赛克的状态,作品拥有一种安静的氛围,暗示着潜藏在表面之下的更深层次的意义,黑色的肌理代表书法的痕迹,底部的马赛克如同书生行走的雪地。整体融合金属制品和柔和的色调,创造了一幅充满渴望和冥想的风景。
客房电梯厅,边柜灵感来源于岳麓山和爱晚亭,每一层楼的边柜台面上放置的陶瓷艺术品都是由陶瓷艺术家以宁制作的一系列作品。
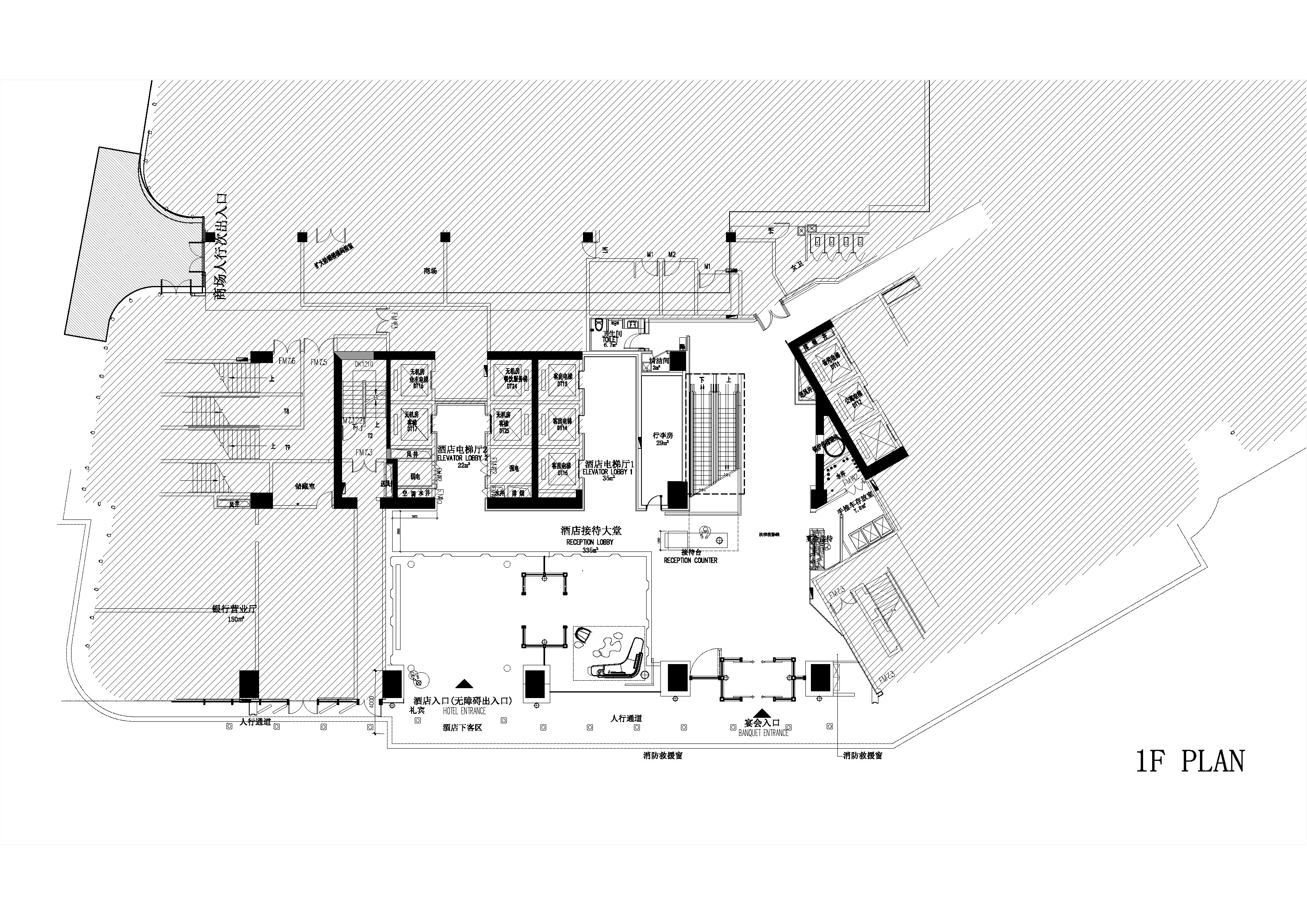
一楼大堂
五楼中餐厅
21楼大堂吧和全日餐厅
0
0

认证 · 让您身份增值