-
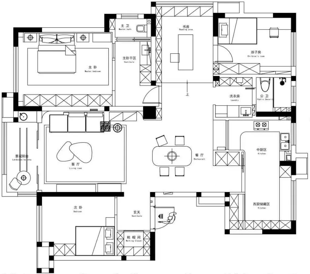
项目定位:本项目的设计定位为中古原木风格,整体以奶白色为主调,搭配温润的木色材质,营造出温暖、自然且富有质感的居住氛围。在布局上,我们尽可能尊重原始户型结构,通过局部优化与功能整合,提升空间使用效率与居住舒适度。
-
空间意境:玄关区域,我们不仅增加了实用的收纳功能,更以圆形灯膜造型作为视觉焦点,赋予入门瞬间以仪式感。厨房区域经调整后,划分为中厨与西厨两部分,既扩展了操作空间,也极大增强了收纳能力;内嵌式冰箱的设计,有效减弱了体量感,保持视觉整洁统一。
-
空间布局:原户型中位于两卧之间的起居空间较为零碎,根据业主需求,我们将其改造为一间兼具接待与休闲功能的榻榻米书房。此处以实木桌椅、整墙书柜及复古吊灯为核心元素,在弱化原有梁体结构的同时,强化了中古风格的静谧与书香氛围,成为整个住宅的风格锚点。
主卧区域我们采取了更为开放的处理方式,减少不必要的隔墙,以增强空间的通透感;床头背板运用硬包处理,结合氛围灯光,进一步提升睡眠区域的品质与舒适度。 -
设计选材:在材质搭配上,我们注重自然肌理的融合与对比——莱姆石地砖与木地板相结合,既划分出不同的功能区域,也增添了空间的层次感。全屋采用无主灯设计,以点状光源与隐藏式灯带营造均匀柔和的光环境,契合整体简约温润的基调。
-
用户体验:整体设计逻辑围绕“功能与美学共生”展开,在不大动格局的前提下,通过材质、灯光、色彩与收纳的细节把控,重塑一个兼具中古情调与现代舒适性的居住空间。
玄关以圆形灯膜造型作为视觉焦点,推开家门,迎接你的是圆月般的暖光,它安静地悬在玄关上方,带你享受这一刻归家的仪式感。收纳空间,将日常琐碎变得井然有序,每一次开合,都是心与家的对话,清爽又轻松。
墙,还站在原地,用木纹的流域与织物的默片,商量着如何让光住下,给予会客场景开阔感,客厅一隅充满柔情。功能性体块是片柔软的岸,容得下身体,也读得懂情绪。点缀光源,犹如一枚不落的果实,在木的枝头甜了一整晚。
美学,是功能开出的花。耐用的木桌摊开手掌,接住绿影与山野的呼吸,创造惬意的就餐情境。她接过他递来的一杯咖啡,吧台成了一座桥,来自厨房的日光流向餐厅,让所有餐具都静默地亮了起来。
书房构建木阶,轻轻托起清雅环境。序列化柜门,间奏着光影乐曲,打破了暗色基调的沉闷。从香炉里冒出的烟,学着云的停驻姿势,跟随主人指尖落下的字句悠然飘去。茶注满时,端一杯到窗边慢品,五感都得到了滋养。
以“待燃的诗”为主题,串联中厨与西厨。取消顶柜,于靠近窗的地方打造壁龛,满足中厨的置物诉求。南瓜与藤篮,在素朴的背景前散发着田园气息。中灶与西台在木质的和弦里交换温度,储藏结构带着一丝书卷气,调和了烟火味。
睡眠区占据主位,预留出较宽的活动路径,明亮的光映出地上的年轮,既让人松缓,又让人感知到了时间的力量。这种力量被带到阅读区,更显书桌尺度、质感、摆置方向的考究。
主卧,采取更为开放的处理方式,减少不必要的隔墙以增强空间的通透感。承袭公区的配色与材质,提取窗框独特的分隔比例,演化出与之呼应的床头背景,令人十分心安。柜体,从高到低展露温暖的光与浪漫的艺术笔触,回应窗外多姿多彩的生命力。
灵动的砖纹组合起来,在睡眠区与洗漱区之间铺展出纵向“湖泊”,呈现自由的光感与通畅的呼吸感。藤编工艺的密度与长条砖形成的肌理展开对比,当水流划过银质水龙头,这方天地便荡漾起愉悦的涟漪。
洗衣房,在光的晕染下令人感到温馨。木质结构展现舒展的图案脉络,将嵌入式设备拥入怀间,达成视觉的整洁。磨砂玻璃门滤出光亮,为空间引入更多层次和光影,使人一边清洁,一边感受自然的美好。
改造分析: 1.在玄关处,沿墙打造收纳结构,满足即时收纳的需求; 2.将小次卧纳入厨房,让中厨与西厨保持独立与贯通; 3.将两卧之间的空间化零为整,设成开放式榻榻米书房,提升家居格调; 4.主卫采用独立干区设计,以开放格局与玻璃隔断实现干湿分离,同步展现通透感。
0
0

认证 · 让您身份增值
162