天昌青山府
104
作品说明
- 项目类型:住宅公寓
- 项目地点:南宁市
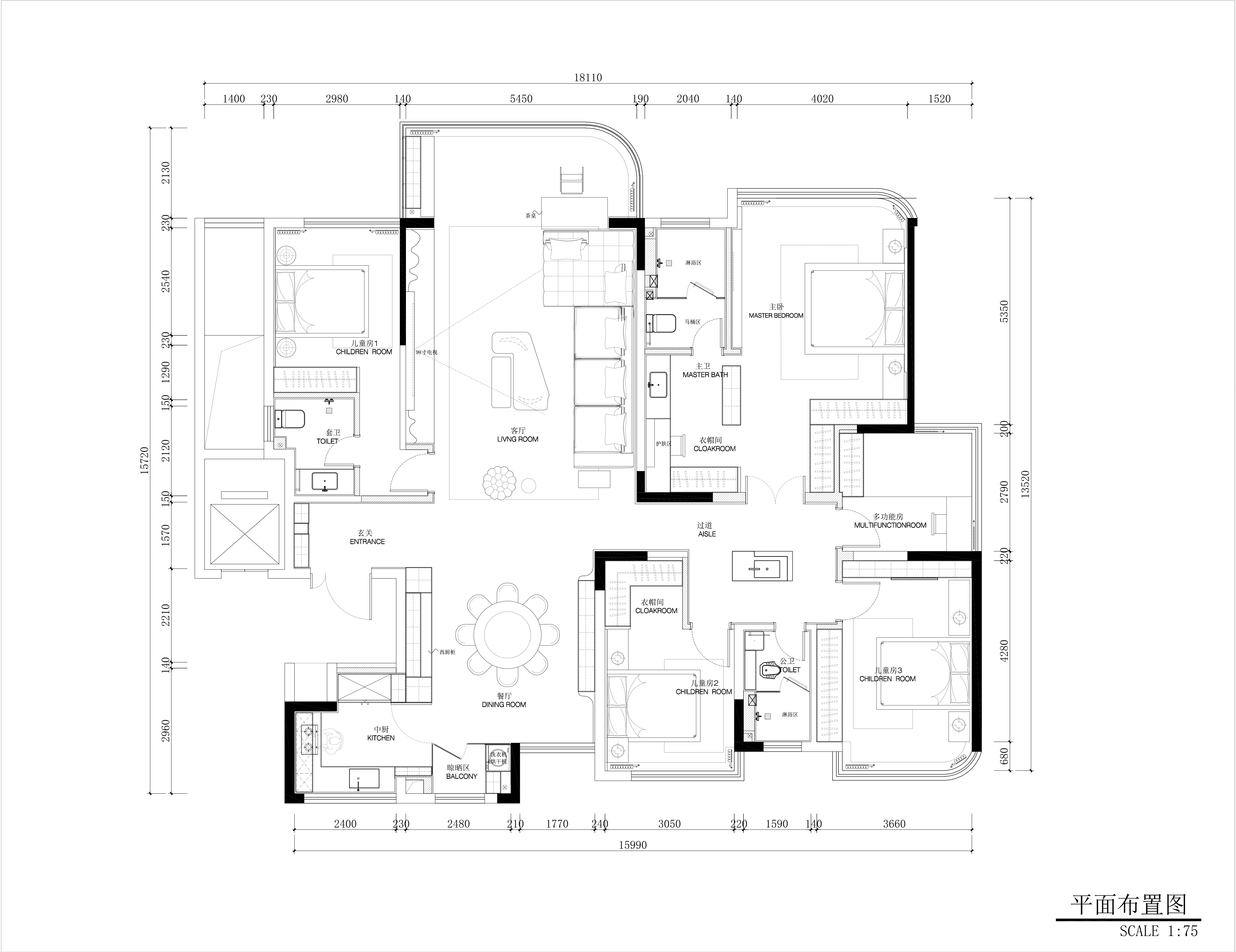
- 建筑面积:220㎡
- 项目造价:180万元
- 主案设计师: 刘磊
- 参与设计师:刘磊、刘桂宏
- 竣工时间:2025年10月
- 设计机构:广西集睿建筑装饰设计工程有限公司
-
项目定位:家是喧嚣中的精神原乡,静静流淌的光,不止是照明的媒介,它让艺术与日常在此交融,于光阴中流转,铭刻出家的温暖。
-
空间意境:卧室与客厅的过渡区域,时光流转,紫山水石材静静流淌,照映出岁月的痕迹。
环绕的风景透过落地窗,把四季酿成了诗,床榻柔软,在这儿一趟,白日的喧嚣便全被过滤掉,闪着灵光的设计,衣帽间与洗手台的精致柔和在一起,每一次水流的轻抚,在灯光下泛着温柔,松弛,自在。光影在空间中自由流转,使主卧充满通透与生机。 -
空间布局:以 “减法设计,加法体验” 为核心,摒弃冗余装饰与复杂造型,聚焦空间本质功能与居住舒适度。通过 “线条简化、色彩克制、材质纯粹” 的设计手法,打造兼具美学质感与实用价值的现代简约空间,让居住者在快节奏生活中获得宁静与松弛感。
-
设计选材:木质的墙面与星光闪闪的石材在自然光的掠影下显得柔和,客厅是自然与家居的诗意契约,米白、浅灰与金属色系和谐交叠,素净的色调通过金属、石材以及布艺等丰富材质勾勒出视觉层次。
大理石纹理肆意生长,柔软沙发似大地的怀抱,开阔落地窗则是自然递来的请柬,屋外绿意为墨,邀人在此共赴一场生活之约。 -
用户体验:石中有光,映射点点星光,目光总是情不自禁落于这片就餐区,璀璨星河如自然馈赠的奢雅密匣,将光辉锁于肌理,每一寸光泽游移都是空间的秘语,玻璃酒柜陈列着岁月的甘醇,灯光在玻璃与酒瓶中流转,映射出低调的奢华
0
0

认证 · 让您身份增值