普兰宁文创中心更新再生
141
作品说明
- 项目类型:公共
- 项目地点:武汉市
- 建筑面积:486㎡
- 项目造价:100万元
- 参与设计师:刘叶、晏罗蒂、付余、龙可成、童亭
- 竣工时间:2024年7月
- 设计机构:UAO瑞拓设计
票数 : 0
-
项目定位:武汉市规划研究院普兰宁文创中心空间前身,是规划院一楼的原办公空间,空高很高,是一个并没有的得到充分的利用的、相对封闭的消极空间。
武汉市自然资源和城乡建设局组建后,为积极探索规划新质生产力,规划院在市局的统筹指导下,筹划成立了——普兰宁PLANNING。该品牌涵盖了:咖啡、文创、展览、沙龙、会议五大功能,需要一个物理的空间来落地。规划院拿出这个一层临街的空间,委托UAO瑞拓设计进行这个小微空间的更新改造。空间改造设计的同时,规划师自己组建运营团队,涵盖从咖啡制作、产品采购、论坛策划、后台管理等各个运营环节。
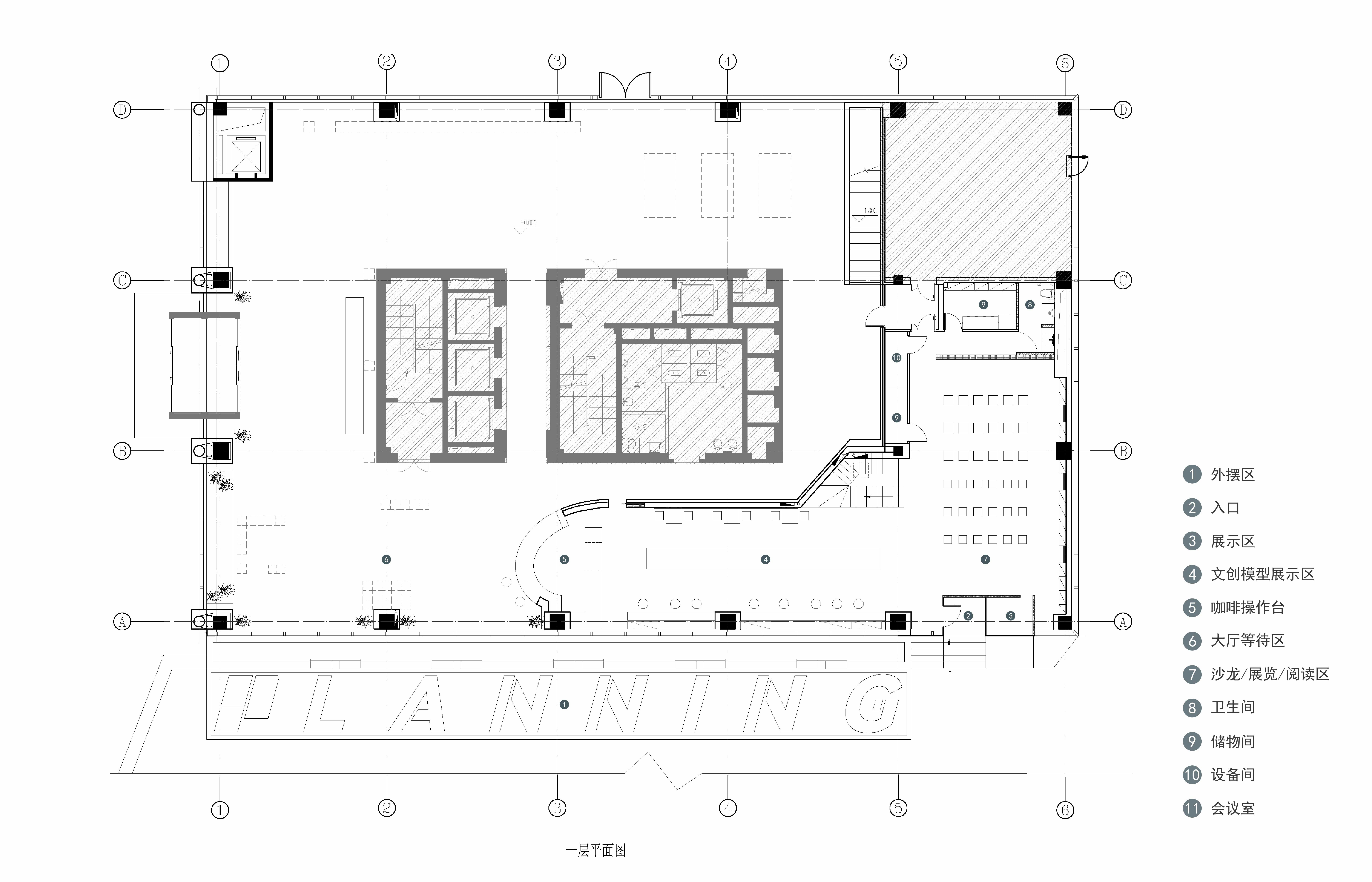
原空间为规划院一楼大厅,靠京汉大道一侧的独立空间。得益于大厅本身的高层高,这个空间拥有了近7米的空高。第一次看现场的时候,觉得这个长条形,竖向高空的比例很有意思。而且空间的尽头是一个半圆弧空间,本身具有了巴西利卡的空间气质,我想设计就以凸显这个高空特质来展开。 -
空间意境:整个空间实现了多元场景的深度融合,既满足规划院内部设计师的日常需求与头脑风暴、会议研讨等工作场景,又通过文创展示、沙龙论坛、展览等形式,为周边居民、城市访客提供休闲消费、文化交流与社交打卡的公共属性。开业后成功举办武汉设计日、CITYWALK 等数十场活动,凭借开放流动的特质,让工作、休闲、社交、文化体验等场景有机交织,既保留了规划设计行业的专业格调,又具备了生活化、大众化的场景适配性,实现了从单一办公空间到复合型城市公共场景的转型。
-
空间布局:布局以凸显近 7 米高空特质为核心,充分利用原空间长条形、端部半圆弧的巴西利卡式气质展开设计。核心中轴区域通过弧形铝合金穿孔板、长条灯带与垂直的细灯杆强化纵深感,下方设置 8 米长桌作为文创展示舞台。端部弧形空间改造为咖啡前台售卖区,打通与规划院前厅的视线通道,且临近电梯厅,实现双向连通的便捷动线,贯通内外。临窗区域设计通长不锈钢咖啡座,借室外树木隔绝噪声,内墙地汉口沿江历史风貌区模型与场域气质完美融合。入口玄关后一楼设书架环绕的多功能空间,夹层为开放式会议空间,形成上下联动的功能布局。室外保留原有台阶与花坛,增设无边界水池与不锈钢遮阳亭,实现室内外空间的自然流动与呼应。整体布局既保留原有结构特征,又赋予空间更多精彩的可能性。
-
设计选材:项目强调材料的真实性与建构逻辑,大量使用现浇清水混凝土、不锈钢板、铜板、海洋板等材质,并通过利旧手法实现内外质感统一。
咖啡前台外立面采用弧形墙拆改后的回收铜片,既实现利旧环保,又保证内外表皮质感一致。主窗边桌面与大门雨棚选用 11 毫米厚不锈钢,通过暴露结构横梁与双侧力学螺栓的固定方式,展现力学美学。玄关 LOGO 墙采用 8 厘米现浇清水混凝土,保留拆模后的自然肌理。书架选用海洋板搭配不锈钢拉杆,家具与空间一体化设计,凸显材质本身的真实感与构造逻辑。整体摒弃冗余装饰,让材质质感与功能性构件成为空间装饰的核心。 -
用户体验:项目建成运营后,在网上被打趣地称为:带编的咖啡。
空间彻底打破了规划院以往封闭的印象,成为市民可进入、可参与、可共享的城市客厅。通过举办武汉设计日、CITYWALK沙龙、专题展览等活动,吸引公众持续参与,增强空间活力。同时,空间内陈列的专业书籍、规划模型与文创产品,进一步拉近了规划行业与公众的距离,在社交媒体上形成持续性关注,真正形成人人能参与的流动开放的共享空间。
0
0

认证 · 让您身份增值