有爱的木盒子之家
167
作品说明
- 项目类型:住宅公寓
- 项目地点:珠海市
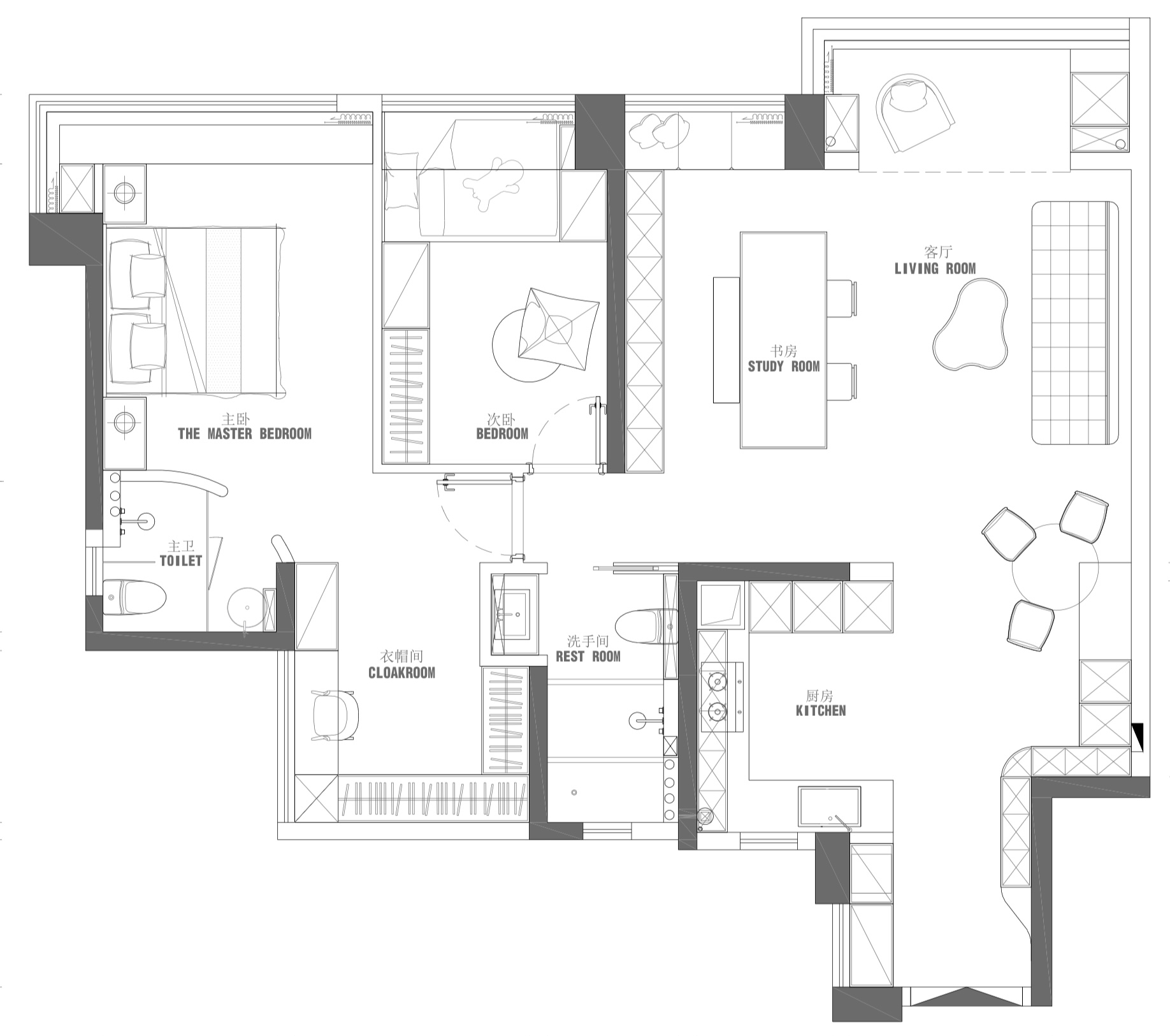
- 建筑面积:112㎡
- 项目造价:40万元
- 参与设计师:蔡海安
- 竣工时间:2025年6月1日
- 设计机构:白菜适家空间设计(珠海)有限公司
-
项目定位:这是一间先生为太太筑的爱巢。112平,4房改2房。先生找到设计师的时候,明确表示希望能够给太太一个她想要的家。
-
空间意境:整体设计思路从厨房和阳台以及衣帽间、主卫出发,将厨房和玄关进行了融合和扩充,同时营造了舒适氛围的用餐空间,拆除了客厅相邻的卧室,改造成电视阅读及收纳多功能的活动空间,阳台则隐藏了洗衣、家政、下午茶,三功能于一体,并使用木饰面与折叠门形成一体化木盒子空间。
-
空间布局:同时将主卧与客卧打通,设计成宽敞的衣帽梳妆空间,满足太太的日常需求,主卫也进行了精心的改造设计,与常规洗手间大不同,在顶面与墙面材质选择上,使用了更具有围合感的赭红色,搭配不同深浅木纹与金属材质碰撞,让空间更具有细节。整体空间设计在控制预算的同时,也实现了夫妻二人对新家的向往,无论是充足收纳的考虑,还是软装搭配,都在表达着屋主一家人的审美与情绪。
-
设计选材:在顶面与墙面材质选择上,使用了更具有围合感的赭红色,搭配不同深浅木纹与金属材质碰撞,让空间更具有细节。
-
用户体验:业主非常喜欢,很认可。
0
0

认证 · 让您身份增值