中吉弘投集团办公楼
284
作品说明
- 项目类型:办公
- 项目地点:长春市
- 建筑面积:12000㎡
- 项目造价:5000万元
- 主案设计师: 黄仁龙
- 参与设计师:张静妹
- 竣工时间:2024年
- 设计机构:哈尔滨纬度装饰工程设计有限公司
票数 : 1
-
项目定位:本设计以“创意流动·连接未来”为核心概念,打造一个开放协作、激发灵感、体现传媒行业特质的现代办公空间。设计强调空间的灵活性、科技感与人文关怀的平衡,通过动态流线、智能集成与艺术化表达,塑造符合传媒公司文化气质与品牌形象的工作环境。
-
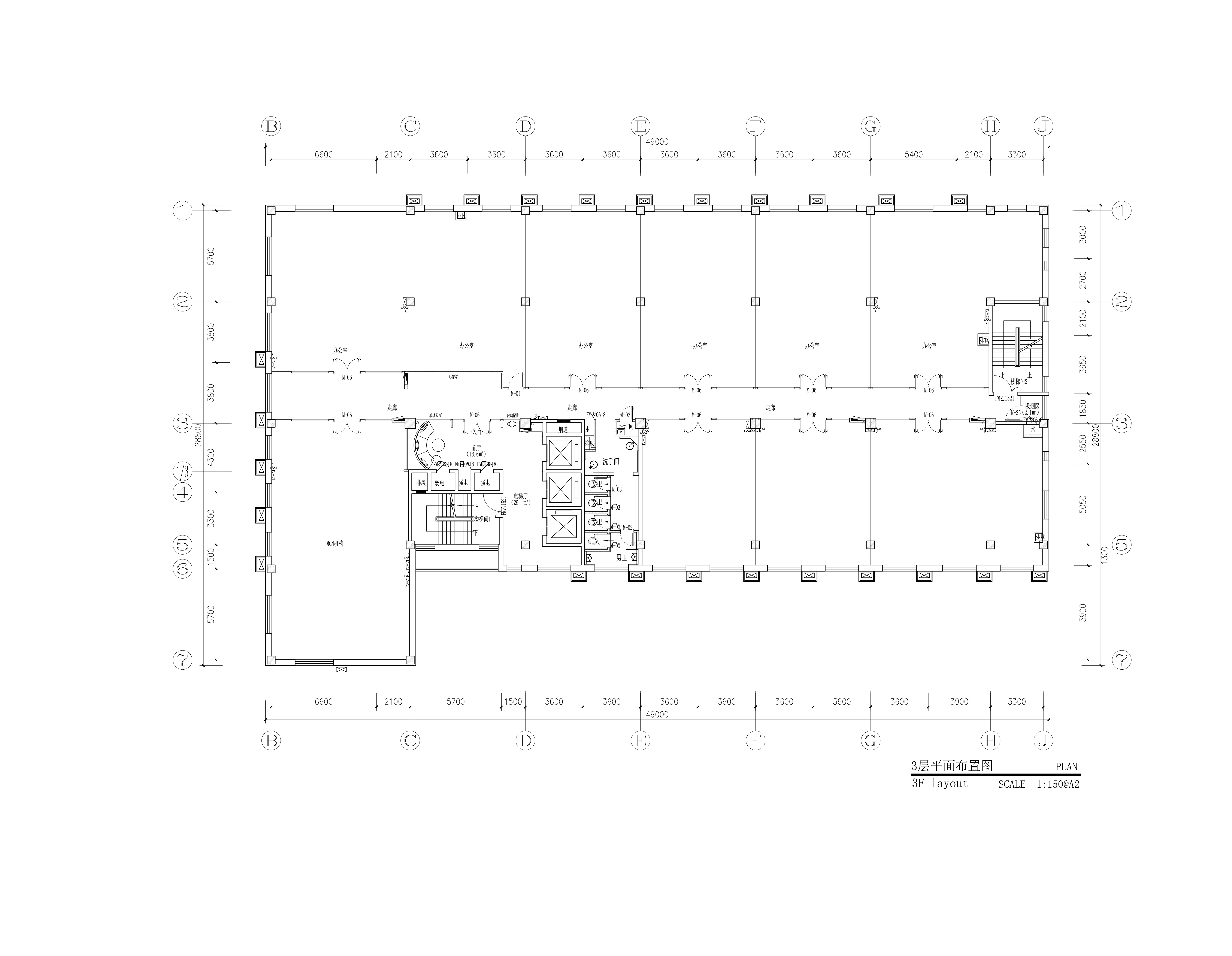
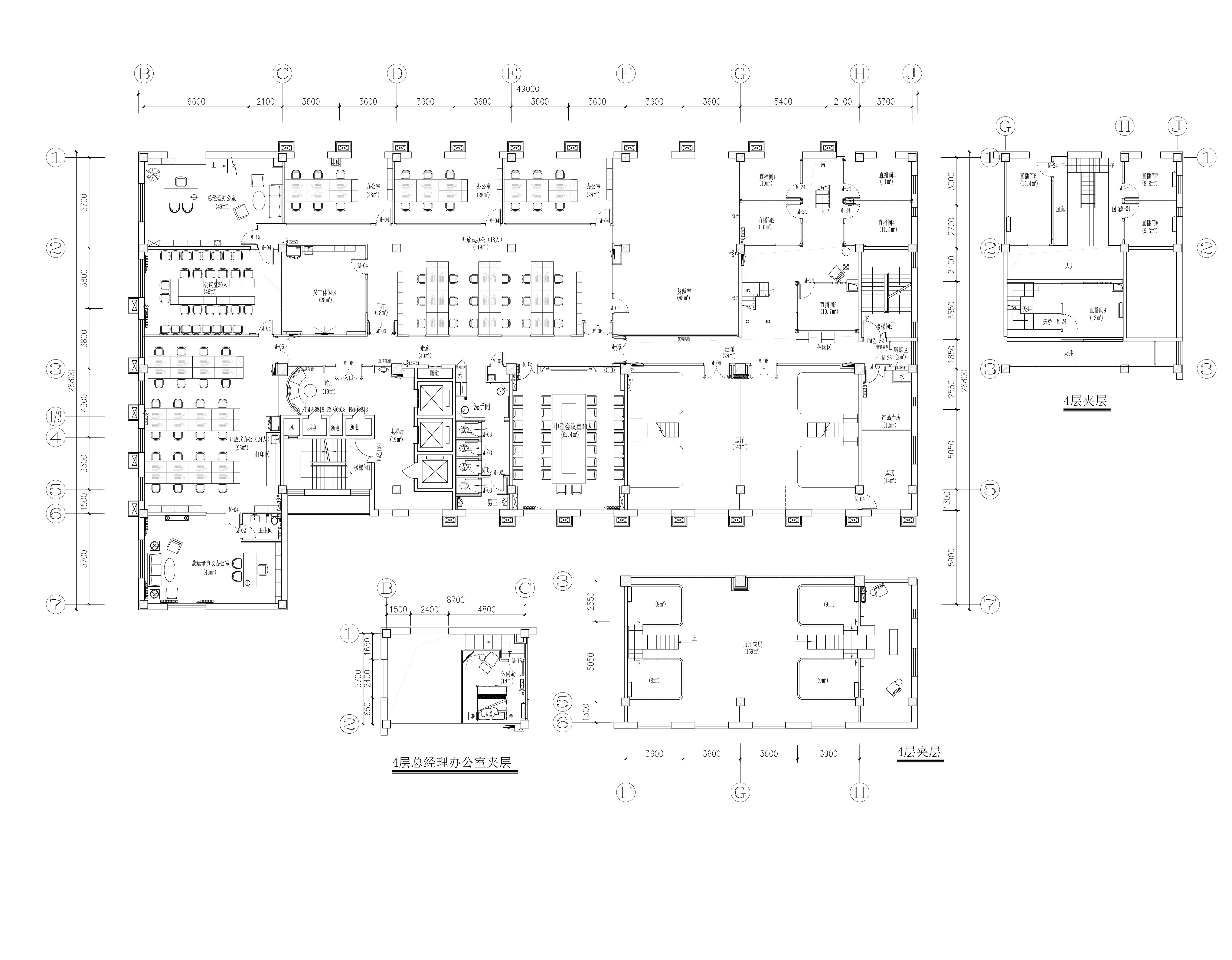
空间意境:· 前台与等候区:采用极简线性灯光与公司品牌色彩点缀,背景墙融合动态LED屏幕,实时展示公司作品。定制接待台结合隐藏式储物功能,材质选用哑光金属与深色石材。
· 文化展示墙:设置可更换模块化展架,展示公司获奖作品、合作品牌及媒体出版物,强化品牌叙事。
· 灵活工位系统:采用升降桌与模块化隔断,支持坐站交替办公。工位分区以低隔断为主,保证视野通透的同时提供适度声学隐私。
· 协作岛:散布于办公区的多功能圆桌区,配备无线投屏与白板墙,便于小组即时讨论。
· 静音舱:设置3-5个独立隔音电话亭与专注工作舱,满足专注工作与私人通话需求。
· 多媒体制作室:配备专业声学处理与绿幕墙面,满足短视频、直播及音频录制需求。采用暗色调墙面与防眩光照明。
· 头脑风暴区:墙面采用可书写涂料与磁性白板,家具为可灵活组合的模块化软座与移动白板,空间色彩鲜明以刺激创意。
· 编辑与后期工作区:设置双屏工作站,配备专业调色灯光环境与遮光帘控制系统。
· 智能会议室:集成语音控制、无线协作系统与自动摄像追踪设备。墙面采用吸音织物饰面,会议桌内置电源与数据接口。
· 中央社交阶梯:连接两层空间的开放式阶梯,兼具临时集会、休闲阅读与非正式讨论功能,底部嵌入绿植与隐藏灯光。
· 休闲咖啡吧:提供自助咖啡机与轻食吧台,配备高脚桌与舒适沙发组合,墙面装饰艺术化媒体装置。
· 屋顶露台:设置户外座椅、绿植墙与投影幕布,用于员工休憩、小型团队活动或晚间观影聚会。 -
空间布局:· 全覆盖高速网络:支持有线与无线无缝切换,关键区域预留5G增强点。
· 物联网管理:通过统一平台控制照明、温湿度、窗帘及会议设备预约。
· 视听系统:主要空间配备一键式会议启动、无线屏幕共享与远程协作硬件。
· 基础照明:以线性LED漫反射照明为主,营造均匀柔和的光环境。
· 重点照明:工位配备可调角度任务灯,展示区与艺术品使用轨道射灯突出。
· 情景控制:通过智能系统预设多种照明模式(会议模式、创作模式、休闲模式),并可根据自然光自动调节亮度。 -
设计选材:· 主材选择:浅色大理石地面、裸露天花黑漆、哑光金属饰面、玻璃隔断、声学毡与环保涂料。
· 色彩体系:以中性灰、白为主基调,搭配公司品牌色作为动态点缀(如珊瑚橙、科技蓝)。创意区域可适当采用高饱和度色块激发活力。
· 图形元素:将像素、波形、数据传输等抽象化图形应用于地毯、玻璃贴膜与墙面装饰,隐喻传媒行业属性。 -
用户体验:· 绿色认证材料:优先使用环保、可回收建材与家具。
· 室内环境质量:采用新风系统与低VOC材料,办公区布置适量绿植改善空气质量与视觉舒适度。
· 健康促进:设置站立办公区、休闲健身角与自然采光最大化设计。
· 委托创作:邀请合作艺术家创作以“媒介与叙事”为主题的装置作品,置于核心视觉节点。
· 员工作品墙:轮展员工摄影、绘画等个人创作,体现公司对创意的尊重与包容。
本设计旨在创造一个不仅高效实用,同时能够赋能创意、促进交流、彰显品牌深度的现代化传媒工作场所,成为公司文化的有形载体与行业创新的空间宣言。
0
0

认证 · 让您身份增值