漫步江南火锅旗舰店
259
作品说明
- 项目类型:餐饮
- 项目地点:哈尔滨市
- 建筑面积:1500㎡
- 项目造价:400万元
- 主案设计师: 黄仁龙
- 参与设计师:张静妹
- 竣工时间:2025年
- 设计机构:哈尔滨纬度装饰工程设计有限公司
-
项目定位:漫步江南新派连锁火锅旗舰店是本案设计师从项目立项、定位、产品结构到后期方案和施工等全案的设计项目。本案经营面积约1500平米,坐落于哈市繁华商圈位置,’漫步 ’二字是本案的设计灵感的起源,在打造空间定位上希望在繁华的闹市中给食客一种远离闹市寻求一种宁静的心灵感受。
-
空间意境:整体风格手法上采用的是既融合而有对比的设计语言,极寒的东北与温暖如春的江南风情在这个空间交集,用现代的材料和手法演绎江南烟雨风光,一处一景的造景在空间中穿梭仿佛和食客之间的对话,灯光设计上采用漫反射线条灯在空间中穿梭使其空间的层次变多丰富梦幻。在包房空间上采用宋代美学的字画作为主题基调。
-
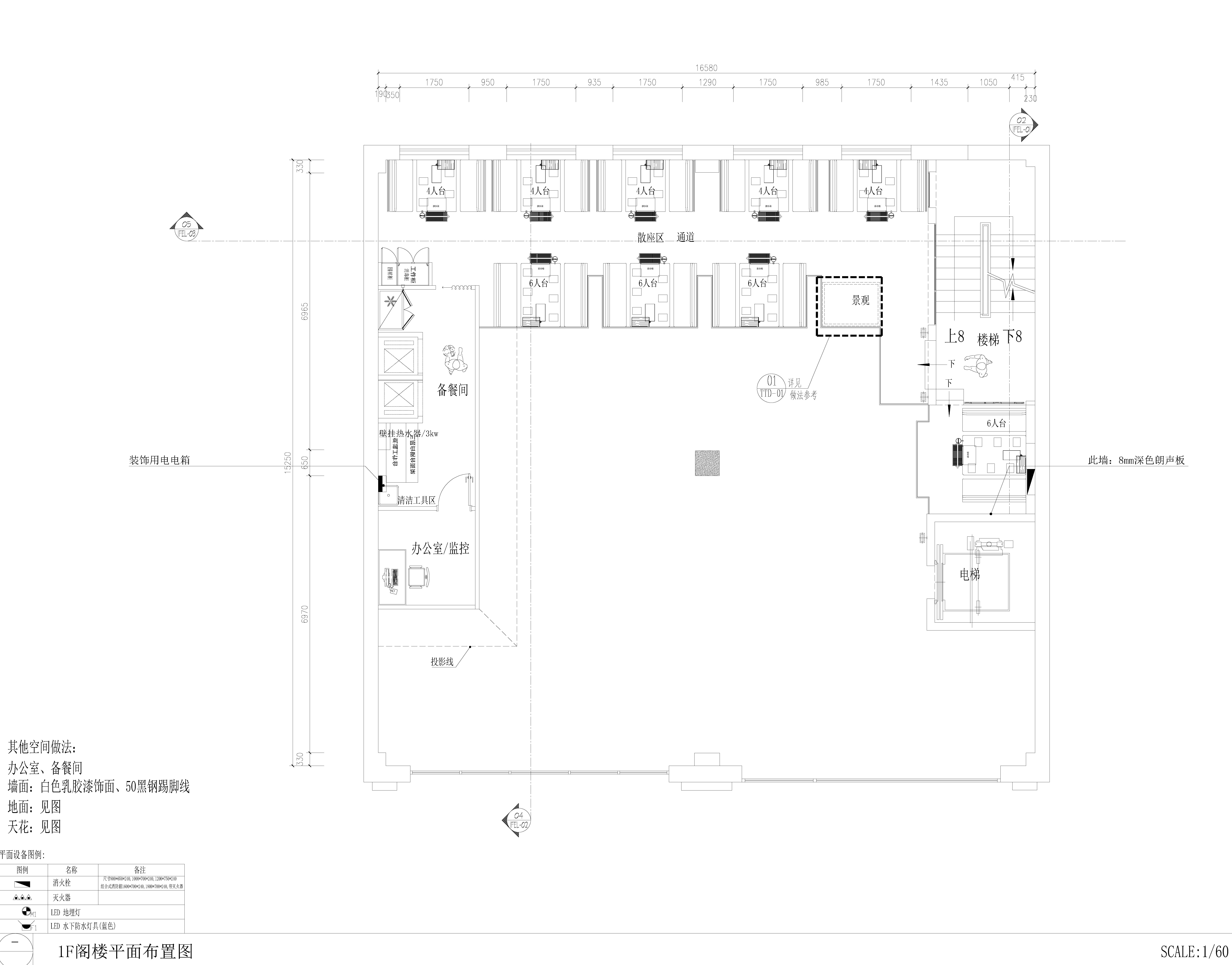
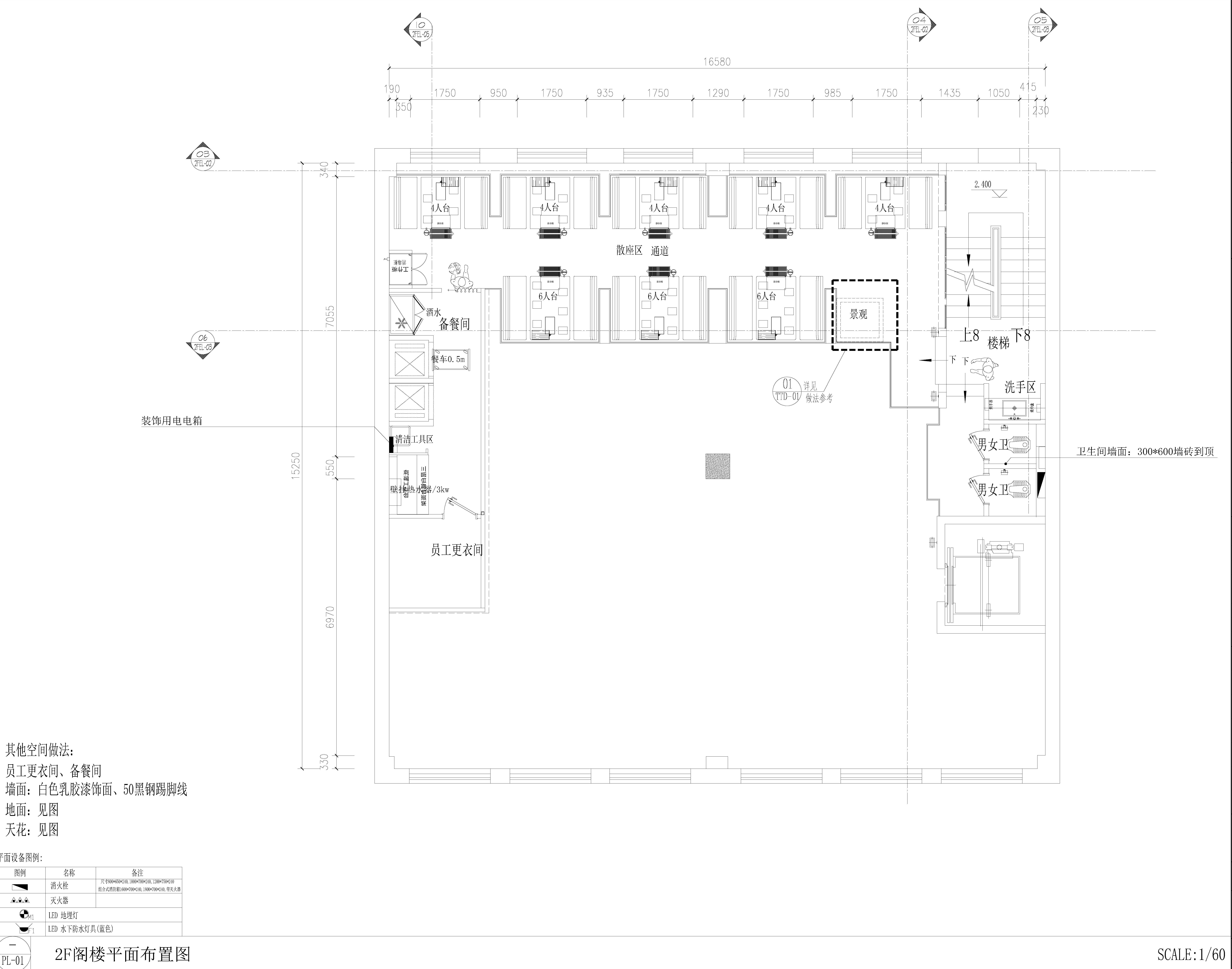
空间布局:在整体的空间构件中采用的是围合式的设计语言,在一层和二层均做了一个错落的空间共享区,让就餐空间感受更加有层次和趣味性和私密性。
-
设计选材:选材上主要保留原建筑的本质材质,水泥墙、微水泥艺术漆、细纹的水纹不锈钢板、墙板。
-
用户体验:由于本案无论在选址和项目本身的定位均是非常符合市场的需求,故在开业至今均得到顾客的一直好评。
漫步江南新派连锁火锅旗舰店是本案设计师从项目立项、定位、产品结构到后期方案和施工等全案的设计项目。本案经营面积约1500平米,坐落于哈市繁华商圈位置,’漫步 ’二字是本案的设计灵感的起源,在打造空间定位上希望在繁华的闹市中给食客一种远离闹市寻求一种宁静的心灵感受。
整体风格手法上采用的是既融合而有对比的设计语言,极寒的东北与温暖如春的江南风情在这个空间交集,用现代的材料和手法演绎江南烟雨风光,一处一景的造景在空间中穿梭仿佛和食客之间的对话,灯光设计上采用漫反射线条灯在空间中穿梭使其空间的层次变多丰富梦幻。在包房空间上采用宋代美学的字画作为主题基调。
在整体的空间构件中采用的是围合式的设计语言,在一层和二层均做了一个错落的空间共享区,让就餐空间感受更加有层次和趣味性和私密性。
选材上主要保留原建筑的本质材质,水泥墙、微水泥艺术漆、细纹的水纹不锈钢板、墙板。
由于本案无论在选址和项目本身的定位均是非常符合市场的需求,故在开业至今均得到顾客的一直好评。
一层
一层阁楼
二层
二层阁楼
三层
0
0

认证 · 让您身份增值