万力大平层
2
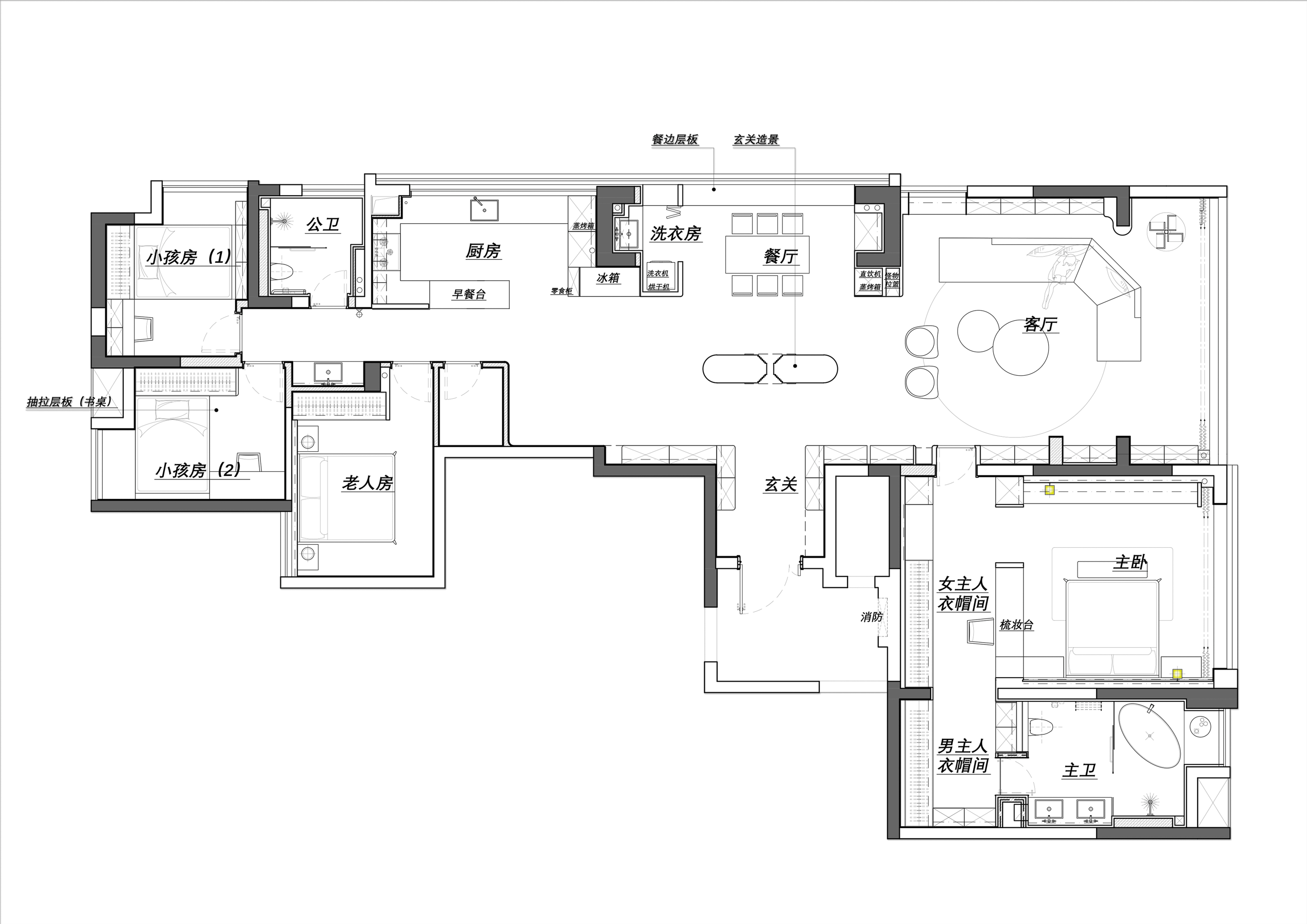
作品说明
- 项目类型:住宅公寓
- 项目地点:上饶市
- 建筑面积:200.0000㎡
- 项目造价:120.0000万元
- 主案设计师: 郑凯
- 竣工时间:2024.12
-
项目定位:围绕属于甲方的艺术符号,将其融合在意式极简中碰撞出属于甲方的生活空间。
-
空间意境:空间中融合圆形、三角形、正方形分别代表儿童、青年、长辈三类人的居住环境。
-
空间布局:通过过道的光影柔和来表达空间的区域关系。
-
设计选材:选用与空间风格相匹配的材质,合理搭配不同材质的比例,优先选用环保、可持续的材质,确保实用性与美观性兼具。
-
用户体验:甲方三代都非常满意,很喜欢这个家。
0
0

认证 · 让您身份增值