小十 · 临江舷
1
作品说明
- 项目类型:餐饮
- 项目地点:温州市
- 建筑面积:359.0000㎡
- 项目造价:240.0000万元
- 主案设计师: 汪良珑
- 竣工时间:2024年6月
-
项目定位:项目位于瓯江畔的商业体中,滔滔江水,往来舟楫,滋养了此地的脉络与记忆。设计团队从中提炼出“游江船”的核心意象,将其符号化解读后织入空间设计基因,在岸边的陆地上,构建一座停泊在岸的轮渡,为瓯江畔的流动画卷中,填入一个静默而璀璨的注脚。
-
空间意境:通体深邃的黑色基调,并非压抑,而是为光预留的盛大舞台。入口长廊两侧,金属锤纹在暖光的映照下,波光粼粼,宛如夕照下金光跳跃的水面。接待区背景墙在黑暗中泛着柔和的光晕,如熔金落日沉入江心,或似泠泠清月洒落寒璧,静影悄然浮现。
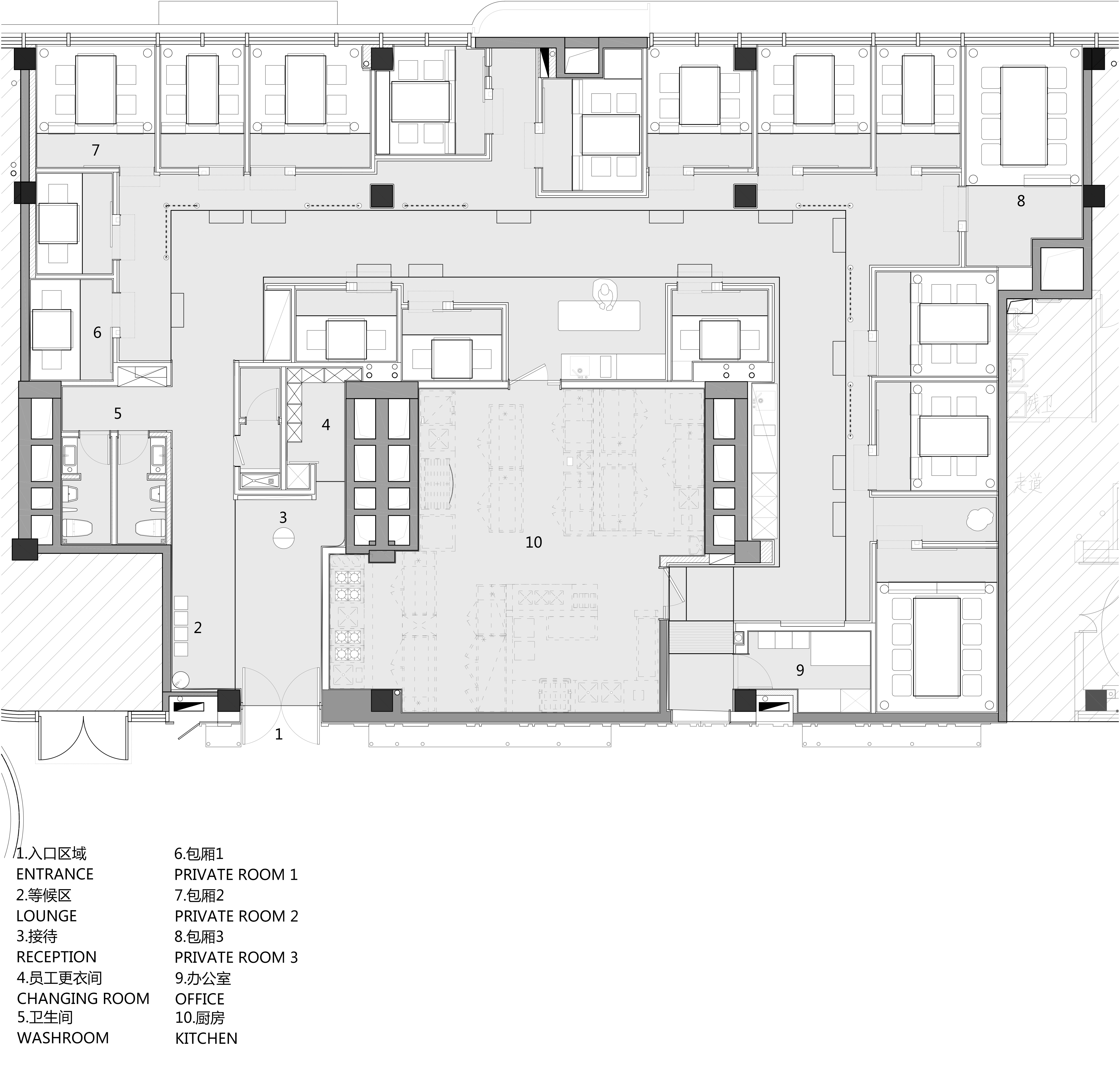
向左延伸的等候长廊,延续了这幕波光之戏,在此停驻的时间,如沐江畔的暮色里,静观日落月升,光影流转不息。两侧过道边,粗粝质感的缆绳元素与枯木陈设为“游江船”基因再次点题,循着光的指引深入,两侧包厢如舟行江面时擦肩而过的船舱,静默排列。全包厢布局最大的挑战在于公区易陷入封闭与单调,为此,设计师将所有包厢隔墙的顶部预留出舒展的通透空隙,出于隔音需求,再以玻璃填充。
如此,空间物理的私密性得以保全,视觉压抑感烟消云散,更妙的是,行走于回廊的过程中,目光自然地掠过玻璃顶隙,仿佛在船舷漫步时瞥见邻舱灯火,一种新奇的互动体验感油然而生。
包厢内部,设计回归极致的凝练与克制,摒弃多余的装饰,地面通过有意抬高形成一步台阶,让步入的过程如同登临船舷进入船舱,消解了空间面积有限带来的局促感,至此,完成了空间情绪的转换。
灯光的整体照度被刻意压低,并着力聚焦于食物之上,使其成为绝对主角,食客则被温柔地隐入相对幽暗的背景,用餐的私密感与专注度得到了无限放大。
-
空间布局:入口长廊在波光粼粼,宛如夕照下金光跳跃出接待区,不同于以往的开放式日料空间设计,此项目希望呈现极致的私密属性,摒弃了公共用餐区,采用全包厢制设计。于是设计师将传统中式庭院民居的空间哲学引入布局,包厢不再仅仅是独立房间,而是演变为掩映在“游廊”与“庭院”意象中的静谧单元。客人循着游园般的路径深入,空间序列如徐徐展开的画轴,富有探索意趣的同时,营造出“庭院深深深几许”的东方含蓄韵味。厨房被设置于空间的核心区域,所有包厢围绕其外缘布局,形成最高效的辐射状服务动线。这不仅源于商业运营对效率的精算,更确保每一道餐食料理能以最新鲜的状态,第一时间呈于食客面前,无声提升着用餐的仪式感与价值感。
-
设计选材:金属锤纹在暖光的映照下,波光粼粼,宛如夕照下金光跳跃的水面。接待区背景墙在黑暗中泛着柔和的光晕,如熔金落日沉入江心,或似泠泠清月洒落寒璧,静影悄然浮现。粗粝质感的缆绳元素与枯木陈设为“游江船”基因再次点题,循着光的指引深入
-
用户体验:建筑的主体轮廓经高度抽象化处理后,犹如一艘静泊于这片金色“水面”之上的轮渡,成为内部空间意境的绝妙序章——由外入内,从日光下的“浮光跃金”到室内的“静影沉璧”,空间体验的叙事于此形成完美的闭环。
0
0

认证 · 让您身份增值