藏在时光里的法式复古
197 - 项目类型:住宅公寓
- 项目地点:上海市
- 建筑面积:110㎡
- 项目造价:60万元
- 主案设计师: 王兵
- 竣工时间:2025.11
-
项目定位:“复古骨架+先锋灵魂”为核心,打造兼具古典美学底蕴与现代潮流感的居住空间,既保留复古风格的仪式感,又通过先锋设计满足当代生活的个性需求,成为独属于业主的艺术居住载体。
-
空间意境:客厅以柔质沙发、复古音响打造慵懒的休闲社交场景,拱券造型与艺术地毯强化复古氛围
餐厨区用红色罗马柱、艺术吊灯营造“用餐+艺术观赏”的趣味场景
卧室以黑色柜体搭配复古吊灯,打造私密且具艺术感的休憩场景
各场景通过复古元素与先锋软装的碰撞,呈现出独特的视觉层次。
-
空间布局:采用半开放式分区+建筑结构借景的布局方式,公共区域以拱券、玻璃隔断实现空间的柔化分隔,既保持视线通透,又用结构划分功能区
整体动线依托建筑拱券结构规划,流畅且富有空间叙事感。 -
设计选材:面选用深色人字拼实木地板,还原法式复古质感
墙面以石膏线、哑光乳胶漆塑造古典基底,搭配彩色艺术玻璃、金属构件增添先锋感 -
用户体验:业主表示,古典拱券与罗马柱带来的仪式感,让居家生活充满艺术氛围,先锋艺术装置与潮流单品又让空间不显得刻板
深色弧形门搭配方形框架,复刻法式古典建筑的拱式元素,既划分空间又强化风格辨识度。
打破中式户型常见的方正压抑感,形成柔和的空间过渡,与客餐厅过渡区域的红棕色立柱形成冷暖对比。
白色柜体满足收纳,中部以深绿色墙面作为过渡,搭配复古玻璃吊灯与艺术挂画,形成入户视觉焦点。
电视背景墙形成围合式布局,满足空间通透感,地毯选用米色底和朱伊纹样法式经典田园图案,低调呼应风格主题。
沙发选择米杏色丝绒材质,搭配纽扣装饰工艺,复刻法式路易十六风格的优雅线条,又通过现代面料提升舒适感。
用复古元素打底,用现代细节透气,弧形线条藏住生硬,混搭软装跳出老气,每一处都在说:优雅,也可以很松弛。
电视背景墙未做繁琐造型,以石膏线框 + 隐形壁炉为核心,既扩大空间视觉感,又成为客厅的视觉焦点。
黑色宽边拱门弱化传统直角的硬朗感,闭合形成柔和的椭圆线条,呼应法式浪漫基因。
一开一合之间,打造电影的流动设计感。
白色矩形餐桌,搭配法式餐椅,椅背嵌入细金属线条装饰,既保证用餐舒适度,又不占用过多空间。
墙面铺浅绿竖纹小瓷砖,细密纹理自带复古滤镜,弱化油烟痕迹。
哑黑柜体穿插白色台面,提亮空间用色彩分区弱化厨房的工具感,阳光透过时会泛出温柔光斑,让烟火气里飘着浪漫。
过渡区采用黑色金属格栅 + 彩色玻璃隔断双重视觉语言,彩色玻璃隔断的花卉图案与复古配色,复刻法式教堂花窗的艺术质感。
立柱的科林斯柱式简化造型(保留柱身凹槽与柱头比例),是法式古典建筑元素在现代空间的轻量化表达。
餐厅采用弧形洄游动线,以各类曲面弱化空间棱角,连通厨房、客厅,玄关的黑框金属格做软隔断,一切井然有序。
吊顶做圆形雕花石膏顶,搭配云朵状异形吊灯,法式的精致和现代的趣味撞得刚好,灯光落下来自带柔焦滤镜,明暗层次让顶面不显单调。
整面墙刷奶油白,嵌入法式石膏线框,爱马仕的丝巾装裱画,用奢侈品的精致感拔高空间调性。
厨房与餐厅以红柱和拱形垭口衔接,红色罗马柱划分了功能区,让空间线条像揉过的奶油,温柔又统一。
椅子也各类不同,羊羔毛椅+木纹椅+肌理布椅,用材质混搭打破法式的刻板,日常坐卧更随性。
黑色拱门框住视线打造复古仪式感,仅用黑色包边,进门瞬间穿越法式电影。
球形主灯落得轻柔,玻璃花吊灯在床头晕开暖光,藏在吊顶的灯带勾出轮廓。
整面黑色哑光柜门,线条利落,侧边嵌进红棕木纹梳妆台,立柱撑着椭圆镜,法式的优雅里,突然蹦出年轻的心跳。
黑色皮质软包裹着松弛感,蘑菇台灯的釉面曲线,和藤编床头柜的弧形抽屉十分契合,复古感在细节里呼吸。
奶油白墙面上,雕花石膏线框像留白的复古画,一脚踩进深棕鱼骨拼地板,斜向纹理把空间拉得格外舒展。
黑色法式拱门,搭配墨绿艺术漆墙面,复古质感拉满,黑底雕花底座上的LABUBU,用软萌细节中和复古的厚重。
儿童房迎合年龄需求,是实用的童趣,收纳与活动区结合,温柔又适配孩子成长。
书房满足业主的兴趣爱好,在展示柜放置各类小物件收藏品,黄色骰子造型的开放格,搭配圆视窗隔板,趣味细节中和收纳的规整感。
半墙面铺暖黄色釉面小瓷砖,搭配复古几何花砖,用暖色消解卫浴的冷硬,淋浴区做黑框玻璃隔断,通透不压抑。
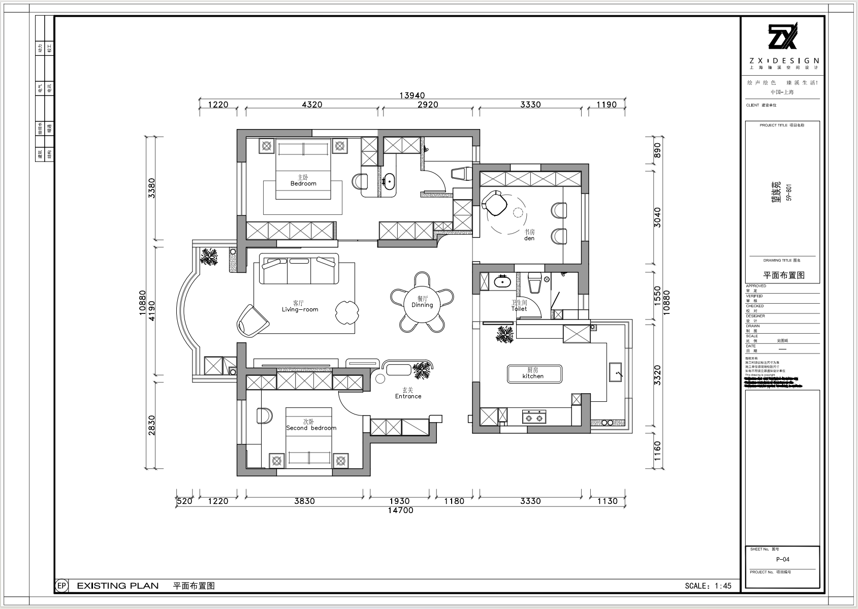
原始户型布局方正,有较大的设计空间,综合考量业主的储物需求,在空间内增加一定的收纳比例。
设计后增加一定的收纳空间,在玄关以屏风过渡,创造多方巧思,将洄游路线设计的更加具有美观性。
0
0

认证 · 让您身份增值