-
项目定位:为设计师家庭定制的“互动生长型住宅”,打破125㎡精装房常规四室的沉闷格局,围绕一对设计师夫妻与4岁孩子的生活需求,重构出一个自由、互动且充满生机的家庭空间。设计不止于视觉,更旨在通过可变化的空间场景,承载家庭的成长与情感交流。
-
空间意境:营造“包裹感与流动性”并存的双重体验
公区开放融合:打通原始厨房与小书房,以餐厨岛台一体为核心,结合四联动移门,实现场景在“亲密烹饪”与“开放社交”间的自由切换。
私区灵活联动:儿童房与多功能房通过推拉门实现可开可合,拓展了游戏、学习与陪伴的多样化场景。 -
空间布局:“移动过道”高效挖掘潜在面积,实现零浪费改造
动线重组:将过道整体上移,把释放出的低效面积巧妙融入主卧,一举解决主卫干湿分离痛点并增设梳妆区与大量储物。
功能复合:延长原始玄关墙体集端景、储物、动线引导于一体;飘窗改造为儿童书桌,极致利用每一寸空间。
流动通透:拆除多余墙体,使南北视野贯通,形成明亮、开阔且功能交织的流动平面。 -
设计选材:秉持“温润简约、耐用易洁”的可持续选材理念
创新搭配:整体以低饱和度艺术涂料、木饰面、岩板为主基调,营造温润细腻感;局部巧妙运用拉丝不锈钢、镜面与发光板提亮,增加现代质感与通透度。
低碳与经济性:
物尽其用:在结构安全前提下,通过局部新建墙体与拆除来重组空间,而非全屋拆改,有效控制建造成本与资源消耗。
耐久与环保:选用艺术涂料、岩板等耐久、易清洁的主材,减少后期维护与更换频率;儿童房采用环保乳胶漆搭配几何造型,趣味与健康兼顾。
本土化实施:所选材料均为市场通用品,无特殊定制加工,兼顾了效果落地性与经济性。 -
用户体验:“住进来的这段时间,这个家最打动我们的,不是某个具体的设计,而是一种‘刚刚好’的状态。
早上,我在岛台做咖啡,儿子在旁边的卡座摆弄他的玩具。 一抬眼,就能看到他在窗边绿植区的阳光下跑来跑去。厨房和客厅没有墙,但我用那扇四联门轻轻一隔,油烟不会乱窜,声音和视线却还连着。他爸爸在书房改图,偶尔抬头,就能加入我们的闲聊。 这种‘各自忙碌,却又彼此陪伴’的感觉,是我们之前不敢想的。
儿子的房间是个‘魔法盒’。平时推拉门打开,和他的游戏房连成一片奔跑的天地;晚上门一关,又是安静独立的睡眠区。我们帮他设计的那个蒙德里安配色墙面,现在被他贴满了自己的画,成了他专属的创意展板。
主卧的改造,是实实在在的幸福感。 再也不用担心洗完澡整个卫生间湿漉漉的。那个利用过道‘偷’来的梳妆台和整面衣柜,让清晨的匆忙变得从容。全屋温润的木色和微水泥墙面,让心很容易静下来;但几处不锈钢的线条和发光板,又在简洁中点了睛,不至于太过慵懒。
这个家好像会‘呼吸’,也和我们一起‘生长’。它没有为了设计而设计,但每一个细节,都在默默支撑着我们一家三口的日常、互动和细微的快乐。它最终变成了我们生活的一部分,而不仅仅是我们设计的作品。”
入户玄关处我们延长原始墙体做整墙收纳柜,集端景、储物为一体,侧墙设置洞洞板便于小物件的上墙收纳。
玄关看客厅
客餐厅
我们将原始厨房和小书房打通,延伸横向视觉面,使整体空间视野更加开阔。
餐厨区
增设岛台、咖啡角、调酒区形成餐厨一体空间,满足一家三口日常功能,岛台外侧设置四联动移门不仅隔离油烟也能与客厅进行联动更具有互动性。
厨房看客厅
客厅看玄关
公区使用木饰面、艺术涂料、天然洞石等温润而细腻的材质,立面搭配拉丝不锈钢、镜面、灯膜等元素,使整体空间通透干净,简洁而不失质感。
客厅看主卧
主卧
主卧
多功能房看儿童房
儿童房利用飘窗设置书桌,整体空间融入蒙德里安的抽象画概念以简约干净的乳胶漆为底,立面加以线条与几何造型三原色的点缀,使整体空间有了更多的可能性,童趣也成了生活的乐趣。
儿童房看多功能房
儿童房与多功能房之间做一扇推拉门将两个房间进行联动方便陪护,在拓展场景可能性且保有功能完整性的前提下充分的让空间融合起来。
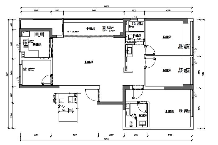
原始平面图 1.原始房型方正,三房朝南 2.飘窗利用率低 3.主卫干湿不分离 4.储物设计不足
平面设计图 1. 延长玄关墙体集端景、储物、动线引导于一体。 2. 公区开放融合:打通原始厨房与朝北小书房,以餐岛一体为核心,结合四联动移门,实现场景在“亲密烹饪”与“开放社交”间的自由切换。 3. “移动过道”高效挖掘潜在面积,实现零浪费改造,将过道整体上移,把释放出的低效面积巧妙融入主卧,一举解决主卫干湿分离痛点并增设梳妆区与大量储物。 4. 私区灵活联动:飘窗改造为儿童书桌,极致利用每一寸空间;儿童房与多功能房通过推拉门实现可开可合,拓展了游戏、学习与陪伴的多样化场景。
0
0

认证 · 让您身份增值
106