大漂亮
2
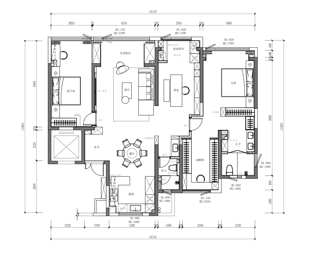
作品说明
- 项目类型:住宅公寓
- 项目地点:瑞安市
- 建筑面积:142.0000㎡
- 项目造价:150.0000万元
- 主案设计师: 叶芳
- 参与设计师:叶芳
- 竣工时间:2025.1.1
- 设计机构:合意空间设计事务所
-
项目定位:公共区动线开阔,行动流畅,居住区私密隐秘
-
空间意境:浅色为主,深色点缀,空间留白,明亮清晰
-
空间布局:动线流畅、视线开阔
-
设计选材:以优选木质为基础,突显立体感
-
用户体验:简约大气、空间流畅、质感低调、非常满意
0
0

认证 · 让您身份增值