未来天奕健身会所
104
作品说明
- 项目类型:休闲娱乐
- 项目地点:郑州市
- 建筑面积:2800㎡
- 项目造价:800万元
- 主案设计师: 李红姣
- 参与设计师:郭建芳、赵亚、马燕辉、李新亚、王世瑞、张璐琪、侯怡冰、张宇轩、党建市、耿嘉怡、苏永森
- 竣工时间:2025.08
票数 : 0
-
项目定位:未来天奕健身会所-踞于时代热土,出身地段不可复制,东风渠自然馈赠,天际线之上,峯层人居的健康坐标。在天际线之下,打造专业级运动私域 ,健身、空间、景观三重赋能,每一次挥汗都是与国际圈层同频对话。
-
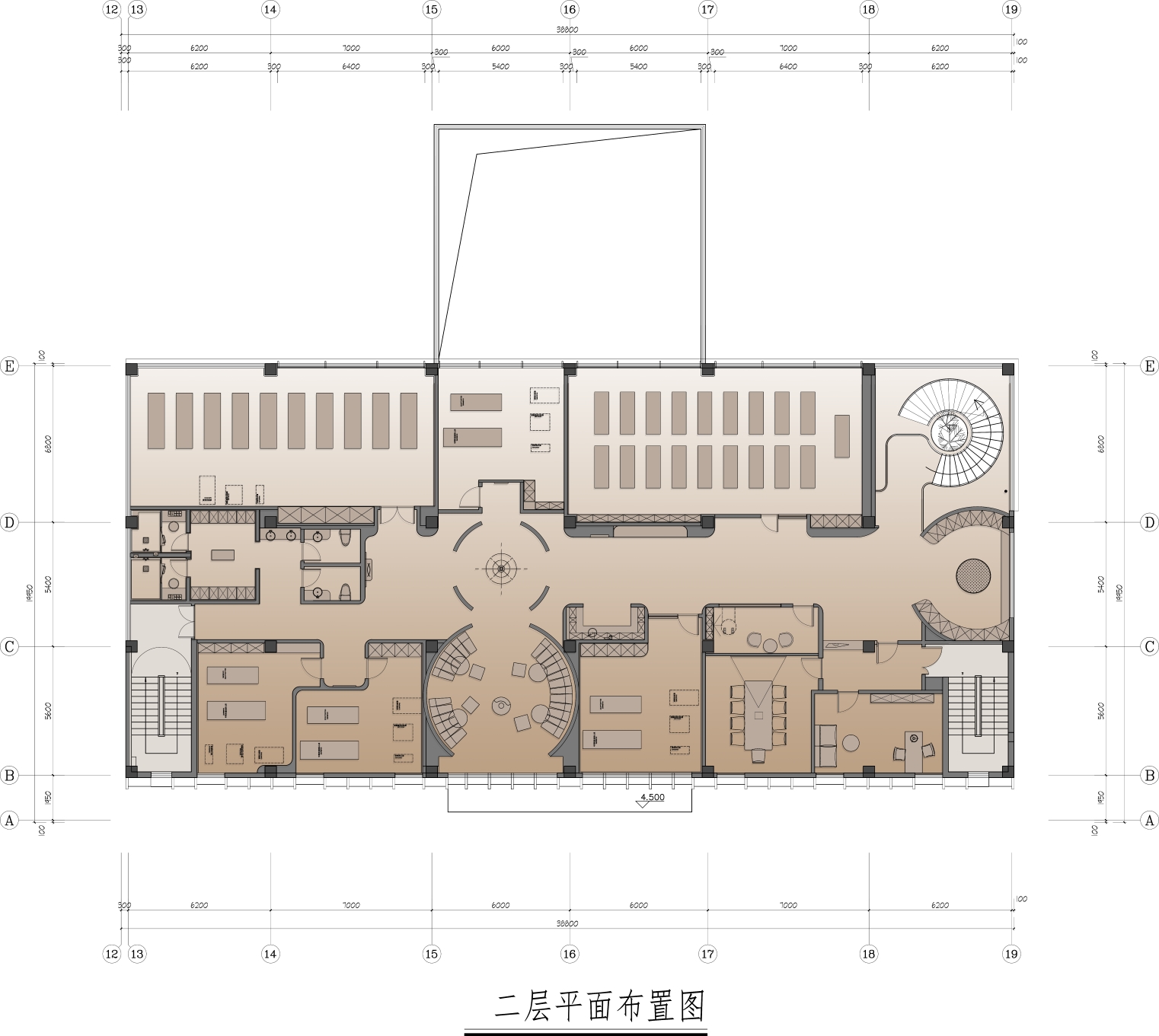
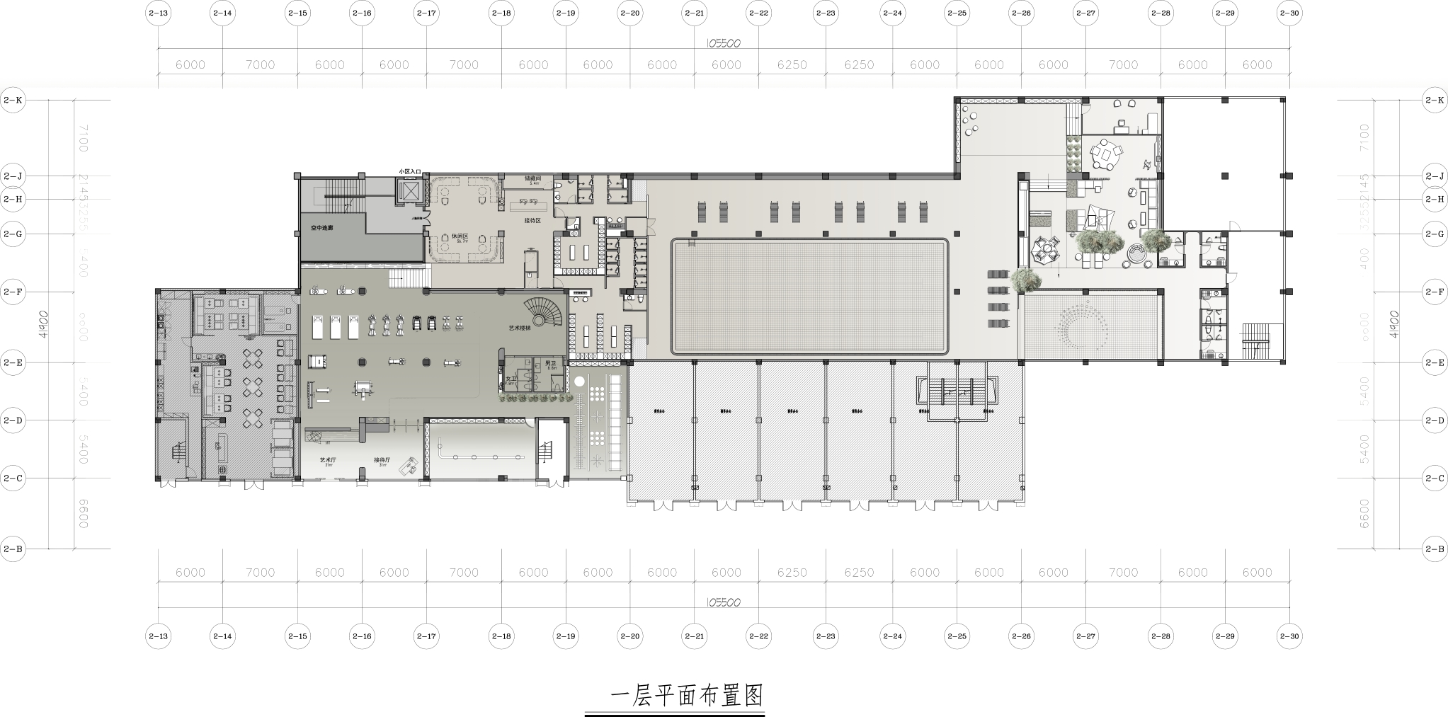
空间意境:来天奕健身会所分为一楼健身区、 -1F层游泳区、2F瑜伽普拉提,考虑全龄段的目标人群,以 “运动流线 + 景观渗透 + 美学重塑” 为核心逻辑:充分考量高端客群的健身需求,打造专属私人订制的健身计划。通过艺术厅串联运动区、接待区、游泳区,利用叠级水系、观景走廊强化空间纵深感,将自然基因融入室内,实现 “建筑可阅读、运动可沉浸、休闲可交互” 的高端会所体验
-
空间布局:未来天奕健身会所区别于传统健身空间,又与常规会所不同,要考虑对内对外的运营。以商务、品质、健身三位一体为核心定位。它采用艺术厅串联各功能区,实现空间独立又流动的设计效果。会所打破健身空间固有模式,在空间转折点融入雕塑、水景作为媒介,打造雕塑楼梯连接二楼瑜伽区。同时,会所通过圆形厅手法分割十几米连廊,营造出兼具延伸感与趣味性的独特空间体验。
-
设计选材:会所选用会呼吸的艺术漆,仿石材砖,及玻璃砖等时尚且环保的材料,重点部位使用米色石材,温润的木饰面,给予空间的温度
-
用户体验:进入空间第一眼,它跳脱出周边的会所体验感受,以兼顾休闲、健身、商务一体为核心逻辑,同时功能齐全,真正做到好看又实用。简约利落的线条勾勒出通透格局,低饱和度的高级色系搭配天然材质肌理,既无冗余装饰的繁杂,又暗藏细节处的质感巧思 ,休闲区的模块化沙发围合出静谧角落,健身区的专业器械与通透采光无缝衔接,功能区在视觉上自然过渡,却又各自独立成章。午后时光能投入轻运动放松身心,傍晚则能在休闲区卸下疲惫,这种 “一站式” 的多元体验,既打破了传统健身会所功能单一的局限,更以设计美学为载体,让实用与格调形成完美共振,成为都市人平衡生活与效率的理想场域。
0
0

认证 · 让您身份增值