褶间法式,半山栖梦
5
作品说明
- 项目类型:别墅
- 项目地点:九江市
- 建筑面积:240.0000㎡
- 项目造价:130.0000万元
- 主案设计师: 杨自远
- 参与设计师:林鑫
- 竣工时间:2025.2
- 设计机构:一二间设
-
项目定位:“La mode se démode,le style jamais ”所谓家的样子,不过是心灵褶皱在现实里的缩影。它是具象的哲学,暗藏着与世界相处的姿态;而生活不在别处,在日常一帧帧的慢镜头里。
本案位于中辉半山墅,三人共室、两猫相伴即是家之全部。业主向往温柔浪漫的法式轻奢风,因此设计师根据其需求量身定制,打破风格界限,让法式轻奢成为其独属的精神栖息地,承载情感、安放灵魂。 -
空间意境:业主喜欢法式风格的装修,预算够得情况下想做法式轻奢的风格;节省预算的情况下可以做轻法式的风格,混合一点奶油风+复古的感觉(清新、温柔浪漫、舒适的感觉)且带有宝格丽纹路元素,因此根据业主的爱好和需求,量身定制法式轻奢+复古的风格。
-
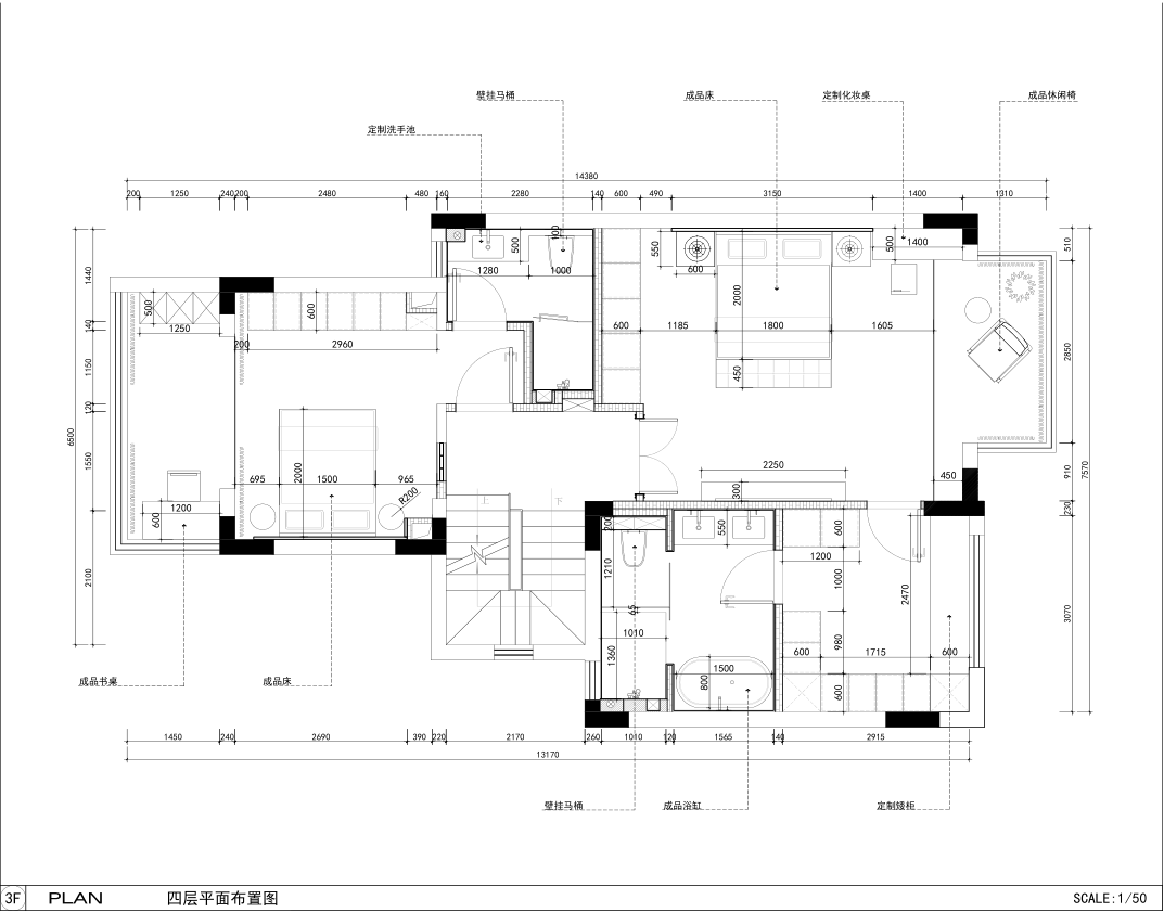
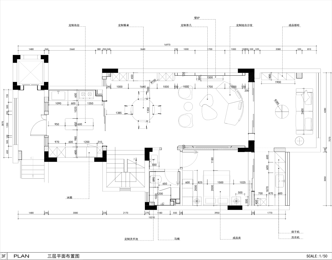
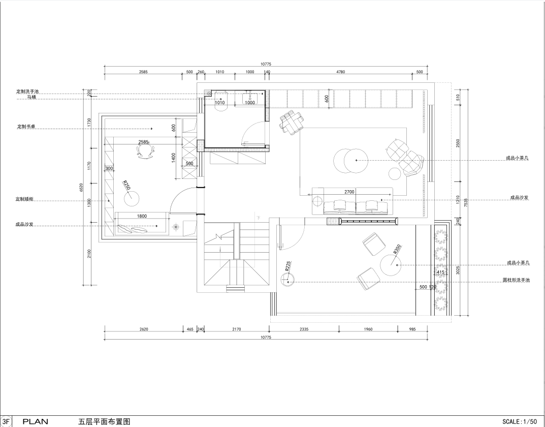
空间布局:根据业主实际需求重新规划动线,例如从电梯厅到3楼的动线规划和客人从花园到3楼的动线规划,比如换鞋挂衣等,要实用;家里有2只猫咪,规划猫咪住处等等;空间整体秉持开放通透,舒适的原则,动线清晰
-
设计选材:根据设计效果,选择环保且极具性价比的材料
-
用户体验:业主很满意,作为婚房以及两个人今后的小家庭使用
0
0

认证 · 让您身份增值