隐逸东方
8 - 项目类型:餐饮
- 建筑面积:300.0000㎡
- 项目造价:300.0000万元
- 主案设计师: 孙佳靓
- 参与设计师:清美营造建筑空间设计事务所、营造清美空间软装设计
- 竣工时间:2025
- 设计机构:清美营造建筑空间设计事务所
-
项目定位:在喧嚣与沉寂的边界,我们以空间为纸、五韵为墨,写下一卷可游可居的东方诗境。本案以“五韵”为哲思脉络,以暗色调为情绪底色,融自然之灵于当代语境,构筑一场贯通视觉、听觉与心灵的沉浸之旅。这不止是展厅,更是一场与东方美学的深度对话,一次向内行走的精神归程。
-
空间意境:【空间意境阐释|五行流转,暗韵生辉】
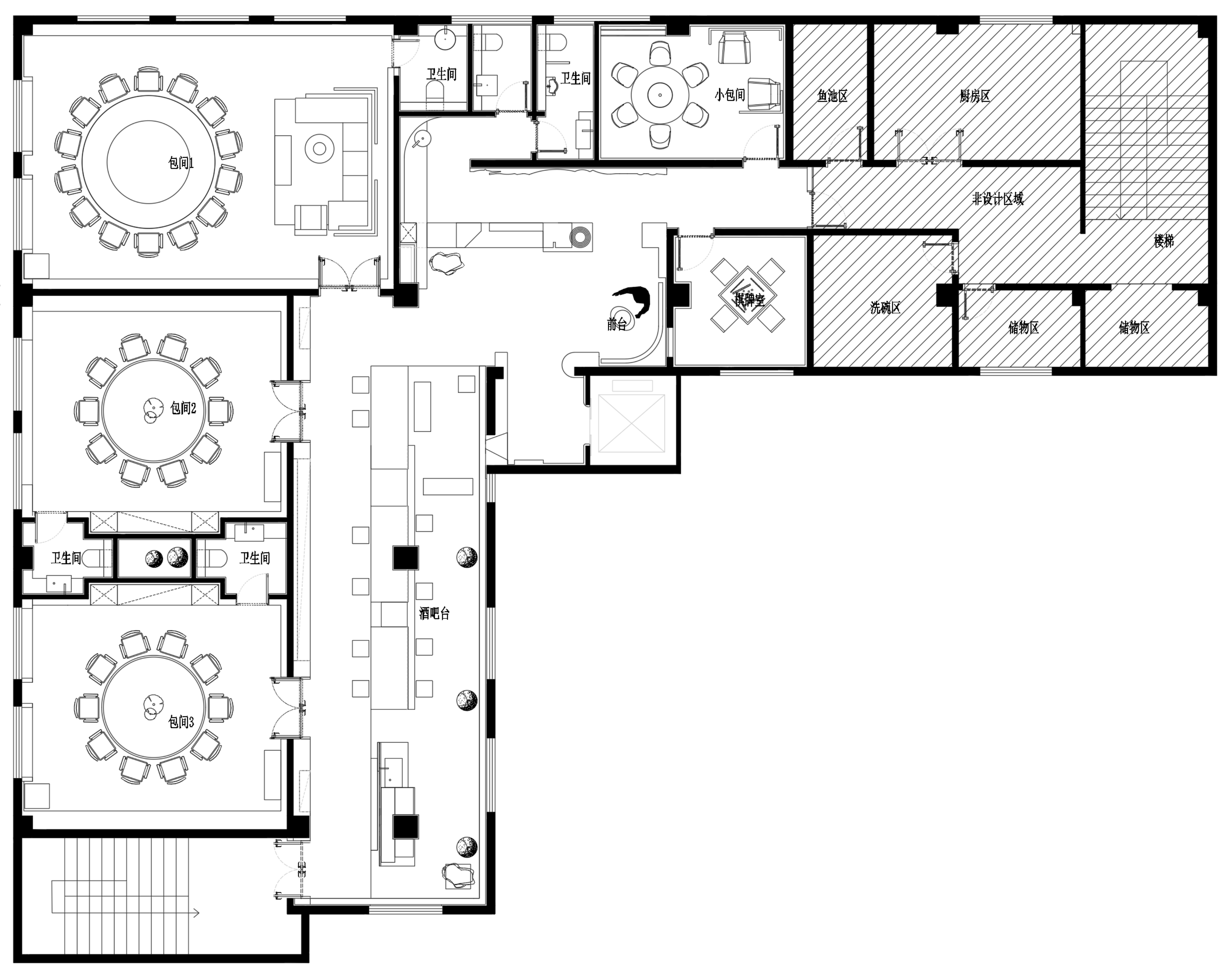
原建筑中,动线交织,仪式感稀薄
我们以双电梯系统重构空间秩序
增设独立客用电梯,贯通三层场域
宾客循光而行,步移景异
终得一场从容不迫的抵达
一场身心俱净的启程 -
空间布局:造境|五韵于心,境由意生
我们在这方寸之间,埋下了五韵的种子
它们生长出的
不是一个个房间,而是一种心境
愿你在此,于水中听静,于火中得暖
于木中见性,于土中立足,于金中拾光
此处不仅为展厅
更是一处东方精神的原乡
等候每一位归人,寻回内心的山水 -
设计选材:水 · 流动之音
入口处的雨链墙
是空间的情感线索
水流自顶端垂落,击于石盘
声如珠玉,形若垂帘
此间水韵,不仅是视觉的净化
更是心灵的浣洗
金 · 点睛之辉
金色不语,却照亮一室气韵
墙面局部以铜材质铺陈
艺术装置中暗藏金线
如暮色中的微光,低调中见精神
赋予空间以高度的仪式感
木 · 生长之姿
入口垂落的枯木枝条,并非生命的终结
而是另一种存在的开始
它与空间中点缀的绿植彼此呼应
诉说“枯荣有时,生生不息”的东方禅意
火 · 温润之光
红色如墨色中的朱砂,点燃空间张力
酒精壁炉静燃一团温火,不炽不烈
却照亮整个场域的精神温度,暖意从容
土 · 沉静之基
黑色岩石吧台与山水云石
构成空间基底
暗色并非压抑
而是来自大地般的包容与沉淀
托起全场气韵与格局 -
用户体验:超越形式的表达,回归美学内核
不是元素堆砌,而是意境营造
不是视觉冲击,而是心灵触动
包间二|窗花引景,窥见天地 巧妙借墙体空隙“凿景” 中式窗棂成为捕捉光与影的画框 一日之间,光迹流转 在墙面与地面绘出瞬息万变的画作 一抹朱红巧妙点睛,既跃动了视觉 又含蓄致敬了古典园林的漏窗美学 方寸之间,得以窥见大千世界的无限生机
包间三|音律叠韵,时光对话 角落一隅,一台复古红色胶片机静置如艺术雕塑 它为沉静的东方氛围注入一抹温暖的现代浪漫 它不言,却仿佛有旧日旋律在空间中低回 营造出一种跨越时空的对话感 让经典与摩登在此刻和谐共鸣
大包间|木影摇光,长卷卧游 圆桌方顶,暗合“内圆外方”的传统宇宙观 构筑出稳定而包容的场域气场
整面墙的水墨竹卷徐徐展开 墨色氤氲,笔意连绵 人行其间,如步入一幅活动的长卷 光影在竹影间游移 心境亦随之沉静、深远 体验一场“不下堂筵,坐穷林泉”的东方卧游之趣
光穿过其间,投下灵动的影 仿佛时间与想象力在此处被允许短暂地飞翔 是为空间里最写意的一笔飞白
休闲区|岩韵飞白,神思遨游 黑色岩石吧台如墨玉初凝 沉稳地锚定了空间的基调 其上空 设计师原创的木质“纸飞机”装置轻盈悬浮 以温润木材构纸的翩跹 似童年未竟的梦定格于这一瞬
包间三|音律叠韵,时光对话 角落一隅,一台复古红色胶片机静置如艺术雕塑 它为沉静的东方氛围注入一抹温暖的现代浪漫 它不言,却仿佛有旧日旋律在空间中低回 营造出一种跨越时空的对话感 让经典与摩登在此刻和谐共鸣
两尊白孔雀静立于光影交界处 羽似新雪,眸若深潭 它们不属于尘世 而是这方暗色山水与生俱来的守护者东方美学崇尚留白 而它们,是空间中最丰盈的“白” 它们不语,却道尽“静能生慧”的古老智慧 在此,美不是被看见的,而是被感知的 唯有停顿,才能遇见
棋牌室|光影闲情,心绪自在 此处私密而明亮,摒弃了传统棋牌室的沉闷 设计将功能性与文人雅士的闲适情趣相结合 光线经过精心调度,柔和而明亮 落在牌桌上,也落在谈笑风生的面容上 于此,智趣与休闲相得益彰 方寸棋局间,亦是心境的舒展与自在
以“水”为引,雨链如琴弦 将天光与水声织成一片朦胧的帘幕 红背景前立石傲然,枯枝斜出 白孔雀静默回望,共构一幅微缩的宋人山水 于此,未入其室,先净其心 完成一场从纷扰到宁静的仪式过渡
水 · 流动之音 入口处的雨链墙 是空间的情感线索 水流自顶端垂落,击于石盘 声如珠玉,形若垂帘 此间水韵,不仅是视觉的净化 更是心灵的浣洗
水流击石,清音绕梁 仿佛将尘世的喧嚣都滤净
金 · 点睛之辉 金色不语,却照亮一室气韵 墙面局部以铜材质铺陈 艺术装置中暗藏金线 如暮色中的微光,低调中见精神
黑色岩石吧台与山水云石 构成空间基底 暗色并非压抑 而是来自大地般的包容与沉淀 托起全场气韵与格局
火 · 温润之光 红色如墨色中的朱砂,点燃空间张力 酒精壁炉静燃一团温火,不炽不烈 却照亮整个场域的精神温度,暖意从容
在“五韵筑魂、暗色为骨”的展厅中 解构传统与现代、商业与艺术 功能与意境之间的壁垒 我们超越形式的表达,回归美学内核 不是元素堆砌,而是意境营造 不是视觉冲击,而是心灵触动
0
0

认证 · 让您身份增值