阳光云玺
79
作品说明
- 项目类型:住宅公寓
- 项目地点:乐山市
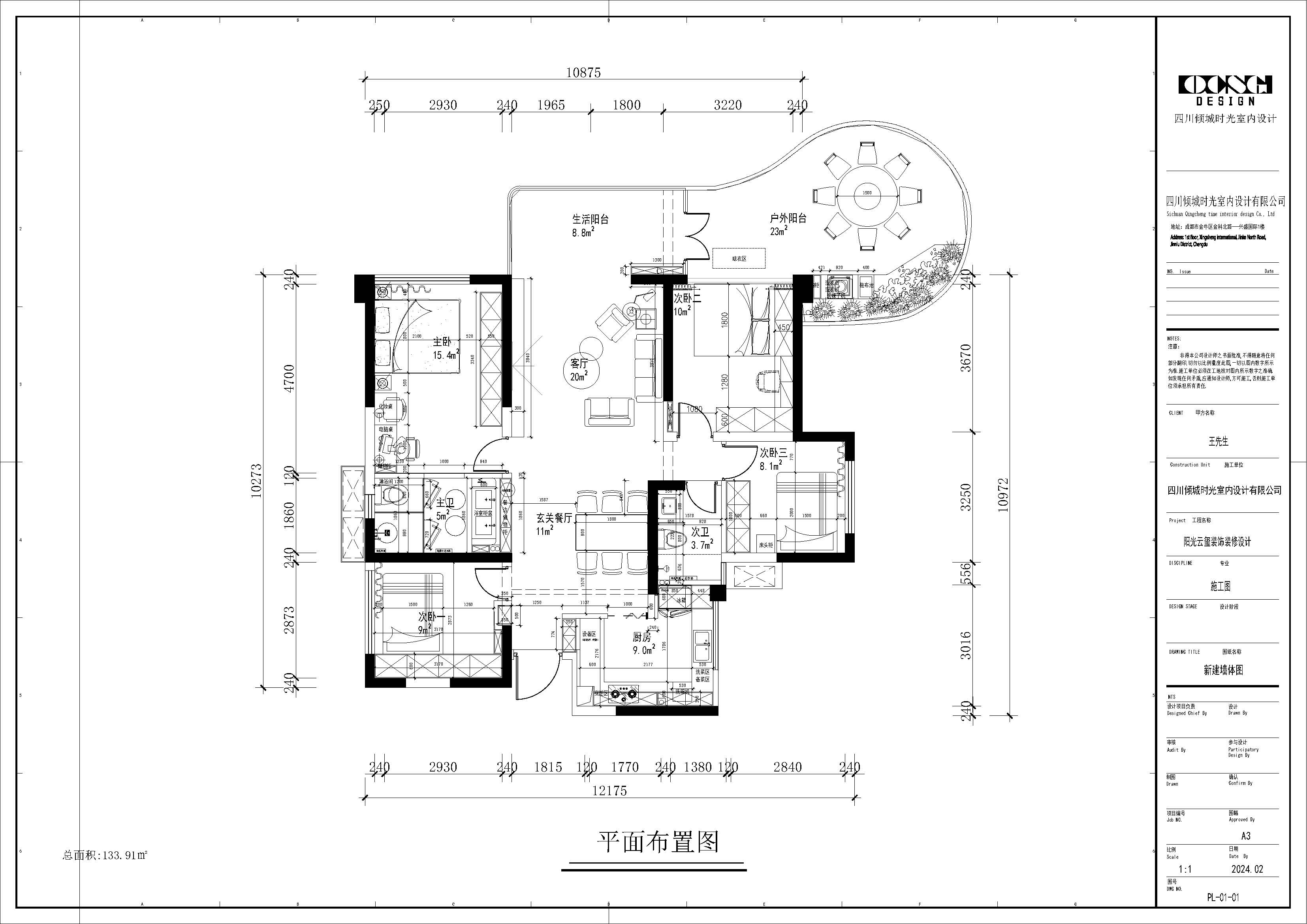
- 建筑面积:120㎡
- 项目造价:50万元
- 主案设计师: 刘国庆
- 参与设计师:刘国庆
- 竣工时间:2024.12
- 设计机构:成都倾城空间设计
-
项目定位:本项目的定位,绝非对流行风格的简单复刻,而是以 “功能化的诗意” 为核心,针对一个三代同堂家庭真实、复杂且多维度的需求,对“意式极简”进行的一次系统性、定制化的解构与重塑。它跳脱了形式至上的范式,旨在创造一个 “理性架构与感性温度并存” 的可持续居住系统。
-
空间意境:1.美学定位:奢石为魂,简约为骨。
2.功能定位:隐形秩序,显性自由。
3.人文定位:全龄关怀,细节守护。
4.独特价值:定制化的系统解决方案 -
空间布局:全面回应男主人的功能需求及家庭收纳痛点。我们设计了一套“嵌入式、系统化”的收纳矩阵,涵盖玄关、客厅背景墙、走廊、卧室衣帽间等全区域。通过顶天立地的极简柜体、隐藏式把手、与墙面融为一体的色彩,将庞大的储物空间“消隐”于视觉之中,为活动区域腾出最大化的、自由且安全的流动空间,尤其便于老人与儿童活动。
-
设计选材:将女主人钟爱的石材,从传统的装饰材料提升为空间的结构性艺术元素。通过大面积的、克制地运用,如整面电视背景墙或岛台一体化设计,让石材的天然纹理成为空间的视觉焦点和情感温度的来源,而极简的线条与中性色调则作为背景,衬托其奢华,并确保整体氛围的宁静与高级。而且还用到了 环保石材 厂家加工 现场安装等工序。
-
用户体验:家庭成员一致反馈,家已超越了单纯的居住功能,成为一个能同时满足个体需求与家庭共融的“治愈港湾”。“最满意的是‘看不见的收纳’。孩子的玩具、老人的杂物、家里的囤货,全部都能一秒‘隐身’,恢复客厅的宽敞整洁。动线设计非常合理,从厨房到餐厅,从玄关到客厅,做什么都顺畅。那些隐藏的灯带、充足的插座、智能开关,用起来才知道有多贴心。这个家不仅好看,更像一个高效、低维护的‘生活工具’,大大提升了日常生活的品质。”老人反馈: “走路不怕绊倒,边边角角都是圆的。晚上起夜,脚边的感应灯轻轻亮起,又不会刺眼。卫生间地面一点也不滑,坐着换鞋的凳子也方便。房子敞亮,心里也敞亮。”
0
0

认证 · 让您身份增值