童心未泯
159 - 项目类型:住宅公寓
- 项目地点:宁波市
- 建筑面积:120㎡
- 项目造价:60万元
- 主案设计师: 徐晓峰
- 竣工时间:202410
-
项目定位:本设计采用现代极简风格,以简洁、明快的线条和色彩为基调,深度挖掘并融合了男业主的童心未泯特质,旨在打造一个既现代简约又充满童趣的居住空间。
-
空间意境:业主对乐高和盲盒的热爱,不仅体现在具体的收藏展示上,更贯穿于整个空间的设计理念中。通过巧妙的布局和细节设计,让空间充满趣味性和想象力,仿佛一个成年人的童话世界。
-
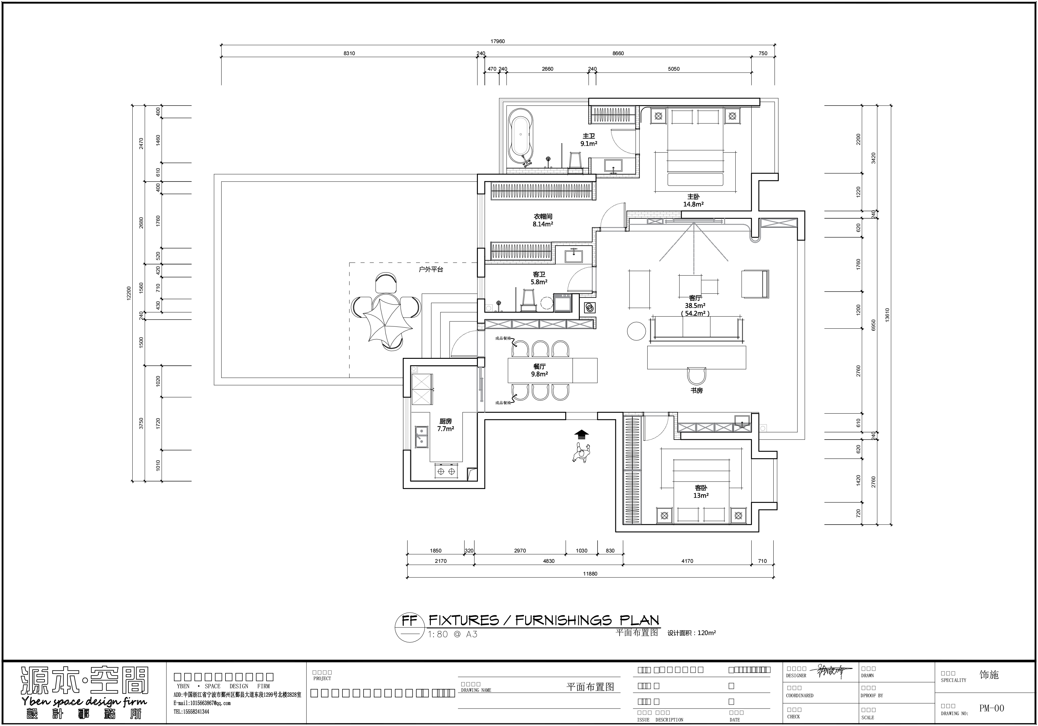
空间布局:1.客厅:作为家庭活动的中心,客厅布局宽敞,设有舒适的沙发、茶几和电视墙。考虑到业主对乐高的喜爱,客厅一角特别设置了乐高模型展示区,展示业主的收藏和创意作品,同时营造出一种充满童趣的氛围。此外,客厅与书房之间的空间设有一个水吧台,增加了空间的实用性和趣味性。
2.阳台:阳台与客厅无缝连接,形成一个开放的休闲区域,为家庭成员提供一个亲近自然、放松身心的空间。
3.书房与客厅打通:书房与客厅之间的隔断被拆除,形成一个宽敞的多功能区域。同时融入盲盒收藏展示区,与客厅的休闲氛围相得益彰。 -
设计选材:选用现代简约风格的家具和装饰材料,如大理石茶几、皮质沙发、金属装饰品等,突出空间的现代感和质感。同时,也选用了一些具有童趣元素的装饰品和家具,大量的乐高车模增添空间的趣味性。
-
用户体验:空间与业主的生活习惯完美适配
设计理念:本设计采用现代极简风格,以简洁、明快的线条和色彩为基调,深度挖掘并融合了男业主的童心未泯特质,旨在打造一个既现代简约又充满童趣的居住空间。业主对乐高和盲盒的热爱,不仅体现在具体的收藏展示上,更贯穿于整个空间的设计理念中。通过巧妙的布局和细节设计,让空间充满趣味性和想象力,仿佛一个成年人的童话世界。同时,设计中还融入了水吧台元素,为业主提供了一个休闲放松、享受生活的场所。客厅、阳台和书房全部打通,形成一个宽敞明亮、功能多样的公共活动区域,放大了空间所需的交际功能。整个空间以黑白灰为主色调,营造简约而不失高雅的氛围。 空间布局: 1.客厅:作为家庭活动的中心,客厅布局宽敞,设有舒适的沙发、茶几和电视墙。考虑到业主对乐高的喜爱,客厅一角特别设置了乐高模型展示区,展示业主的收藏和创意作品,同时营造出一种充满童趣的氛围。此外,客厅与书房之间的空间设有一个水吧台,增加了空间的实用性和趣味性。 2.阳台:阳台与客厅无缝连接,形成一个开放的休闲区域,为家庭成员提供一个亲近自然、放松身心的空间。 3.书房与客厅打通:书房与客厅之间的隔断被拆除,形成一个宽敞的多功能区域。同时融入盲盒收藏展示区,与客厅的休闲氛围相得益彰。 材料与材质:选用现代简约风格的家具和装饰材料,如大理石茶几、皮质沙发、金属装饰品等,突出空间的现代感和质感。同时,也选用了一些具有童趣元素的装饰品和家具,大量的乐高车模增添空间的趣味性。 色彩方案:整个空间以黑白灰为主色调,营造简约而不失高雅的氛围。在乐高模型展示区和盲盒收藏展示区,采用鲜艳的色彩搭配,突出业主的个性和爱好,增添空间的活力和童趣感。 家具与装饰:选用现代简约风格的家具,并注重家具的实用性和美观性。如流线型的沙发、简约的茶几和书架等,既满足日常使用需求,又增添了空间的时尚感。装饰品以现代艺术作品、乐高模型和盲盒收藏为主,增添空间的艺术氛围和趣味性。同时,水吧台的设计也注重美观与实用性的结合。 功能性与舒适性:设计中充分考虑了空间的功能性和居住舒适性。如设置舒适的沙发、茶几和阅读椅,以及充足的储物空间等。同时,打通客厅、阳台和书房,形成一个更加开放、灵活的活动区域,满足业主多样化的生活需求。水吧台的设置也为业主提供了一个品酒、聊天、放松的场所,增添了空间的实用性和趣味性。
0
0

认证 · 让您身份增值