云樾
2 - 项目类型:住宅公寓
- 项目地点:南京市
- 建筑面积:140.0000㎡
- 项目造价:80.0000万元
- 竣工时间:2025.07.10
-
项目定位:本次项目为云樾观山府的四室一厅户型,设计以材质肌理作为载体,叙述着独属业主一家的空间温度与节奏。现代中古以质朴气质诠释安宁的现代城市生活粗中带细、陈述自然,禅意氛围带来的心灵上宁静,抚平都市喧嚣。
设计以素白的空间为纸,邀请材质和光影共同作画,让生活日常成为这个家的主角。用现代语言诠释中古风情,旧旧日时光在当下呼吸,场域允许跨时代的元素共存,在相同的空间里寻找不同的深度,室内的舒适感如同晚风中的低语,细腻而温柔。 -
空间意境:去除繁杂的色彩,于无言之境,呈万物有灵。
木元素介入在空间内的每个小场景中,赋予室内温润的节奏感和呼吸感,暖白的色彩将场域包裹,居所的温度变得可观、可感、可知。木纹肌理温润克制,托起空间的沉静基调,复古的色调,仿佛是岁月沉淀的诗篇 -
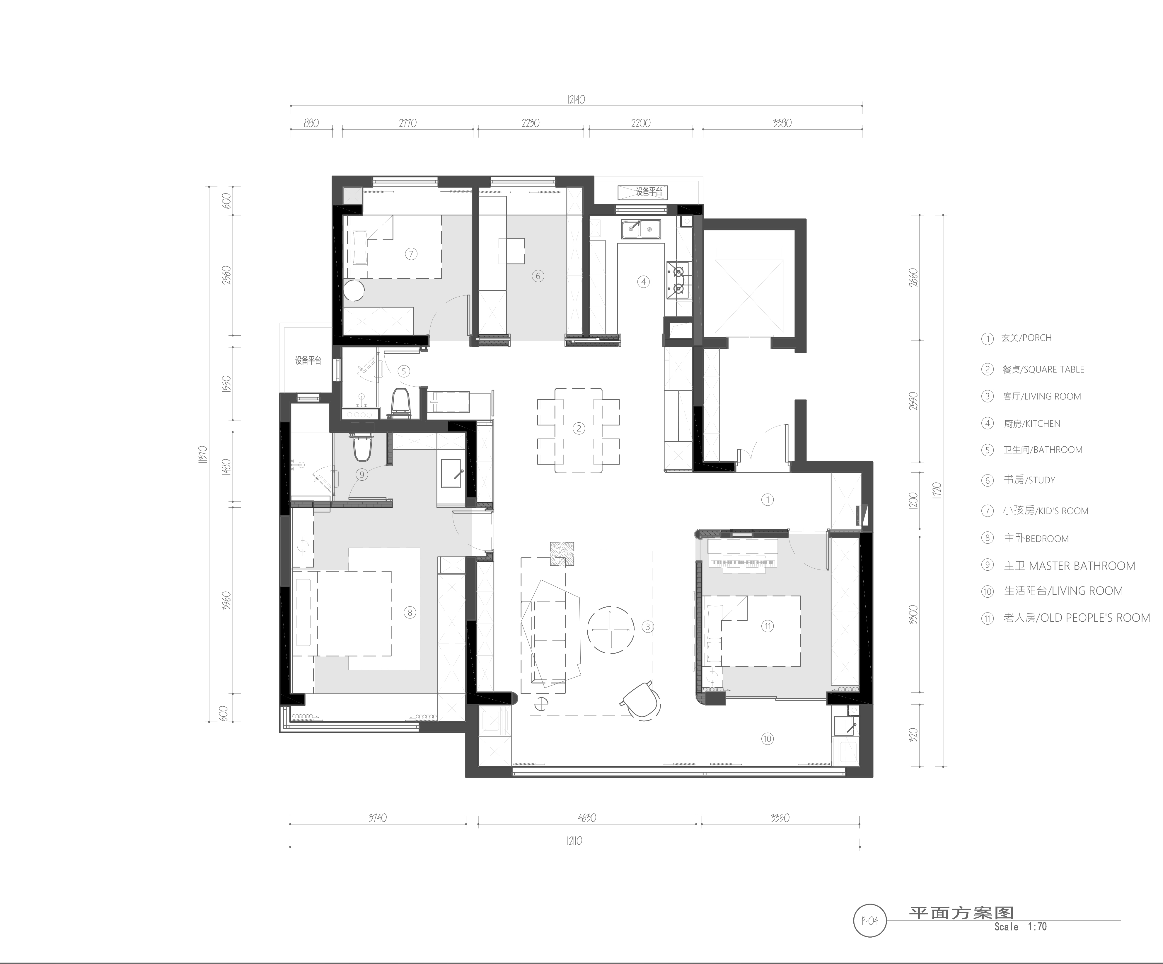
空间布局:设计为精装改造,在整体布局上没有做太大的改动。设计的巧思暗藏在结构的错落中,灯光的斜切穿插,兼备着松弛与精致,每一根线条都得到舒展,细细雕琢着生活痕迹。在简约的框架中搭配极具岁月感的家具,做1日的色调为空间着墨,不同大小的圆形灯具打破生硬的上部空间,自带电影感滤镜的美缓慢绽放于此。
-
设计选材:实用功能与美学语言并行不悖,深浅分明的材质轻柔互触,大面积的木作既环保又铺成出岁月感。
-
用户体验:项目落地交付后,业主夫妻对于落地效果表示十分满意。
本次项目为云樾观山府的四室一厅户型,设计以材质肌理作为载体,叙述着独属业主一家的空间温度与节奏。 现代中古以质朴气质诠释安宁的现代城市生活粗中带细、陈述自然,禅意氛围带!来的心灵上宁静,抚平都市喧嚣。 设计以素白的空间为纸,邀请材质和光影共同作画,让生活日常成为这个家的主角。
去除繁杂的色彩,于无言之境,呈万物有灵。 木元素介入在空间内的每个小场景中,赋予室内温润的节奏感和呼吸感,暖白的色彩将场域包裹,居所的温度变得可观、可感、可知。
于微妙张力中构建秩序,冷峻与温润、透光与反射,演绎中古美学的静谧沉稳。空间的功能不止于使用,也承载个体审美意向,提示生活着的另一种可能。
设计的巧思还暗藏在结构的错落中,灯光的斜切穿插,兼备着松弛与精致,每一根线条都得到舒展,细细雕琢着生活痕迹。
于静中见雅,于简中见意,疑练木语的从容与隐逸,享用一方温润如玉的松弛自在,一场关于时间与感知的叙事,在此悄然展开。
用现代语言诠释中古风情,旧旧日时光在当下呼吸,场域允许跨时代的元素共存,在相同的空间里寻找不同的深度,室内的舒适感如同晚风中的低语,细腻而温柔。
在简约的框架中搭配极具岁月感的家具,做1日的色调为空间着墨,不同大小的圆形灯具打破生硬的上部空间,自带电影感滤镜的美缓慢绽放于此。
如水般的玻璃安静地伫立着,通透的呼吸感从时光与空间的缝隙中切割而出,与时间对话的居住哲学,也藏匿于每一场的烟火中。
宛如一个盒子,木的温润包裹,石材的交错叠加,圆形玻璃的细节减轻这一方天地的体量感在静谧的空间氛围中,显得透气且有趣。
于当代语境中重构一处可感、可止的精神所在:如器之静,如茶之澹;木纹肌理温润克制,托起空间的沉静基调,复古的色调,仿佛是岁月沉淀的诗篇。
几何的纯粹与秩序,于光影之间悄然呈现,天然石材与温润木材交织共鸣,不同元素不同特性应用于家居内,与生活功能的交织,构建出一个简洁而充满力量的场域。
以复古为魂、简约为形,融合中世纪的优雅与现代的功能美学,打造出兼具质感与温度的居住 空间。
0
0

认证 · 让您身份增值