小猪小牛章鱼水煎肉
121
作品说明
- 项目类型:餐饮
- 项目地点:沈阳市
- 建筑面积:219㎡
- 项目造价:55万元
- 参与设计师:一合空间团队
- 竣工时间:2025 10
- 设计机构:沈阳一合设计有限公司
票数 : 0
-
项目定位:解构主义美学与自然质感相融合,打造兼具现代设计感与舒适度的餐饮空间,实现品牌形象与消费体验的双重升级,以现代解构主义为核心,结合原木等自然材质,打造兼具工业理性与自然亲和的餐饮空间。通过暴露构造、模块化布局展现结构逻辑,同时融入温暖质感,平衡冷硬感,传递品牌对品质与设计的追求。
-
空间意境:采用模块化木质框架与半透肌理瓦片结构,将传统瓦片元素进行现代解构。模块化排列强化品牌识别,木质骨架支撑整体形态,品牌标识清晰呈现。轻盈的半透材质打破传统门头的厚重感,传递“传统元素现代演绎”的创新理念
-
空间布局:天花采用木质格栅与模块化结构装置,通过几何秩序和暴露的交叉支架展现结构逻辑。搭配嵌入式灯光,强化层次与设计感,形成从地面到顶部的完整视觉体系
-
设计选材:墙面以原木板材拼接为主,嵌入品牌发展历程的文字模块结合品牌故事与解构主义的“重组”理念。肌理石材与原木形成质感对比,增强视觉层次与空间温馨感,让顾客直观感受品牌底蕴
-
用户体验:环境明亮舒适 木结构的质感让然感觉很柔和
门头logo错层设计
入口处 景观 等位 迎宾设计
墙面阴刻展示设计 突出品牌性 替代传统灯箱 发光字等
门把手的品牌性展示
大面积的冰裂版运用杜邦纸的肌理做底 看上去细节十足
木架结构设计 保留结构在空间中的美感,通过结构造型替代装饰造型
木架的细节展示
杜邦纸肌理的温度感
门头海洋板装饰抽缝设计呼应整体模块的设计
细节装饰
餐桌吊灯设计
明档的设计半开放 既突出品牌的干净好吃的理念 又与门头造型呼应
景观池装饰与镜面墙体装饰加大空间的延伸感
景观造型
一角度多场景的设计
明档整体造型
备餐柜的设计
原始平面图
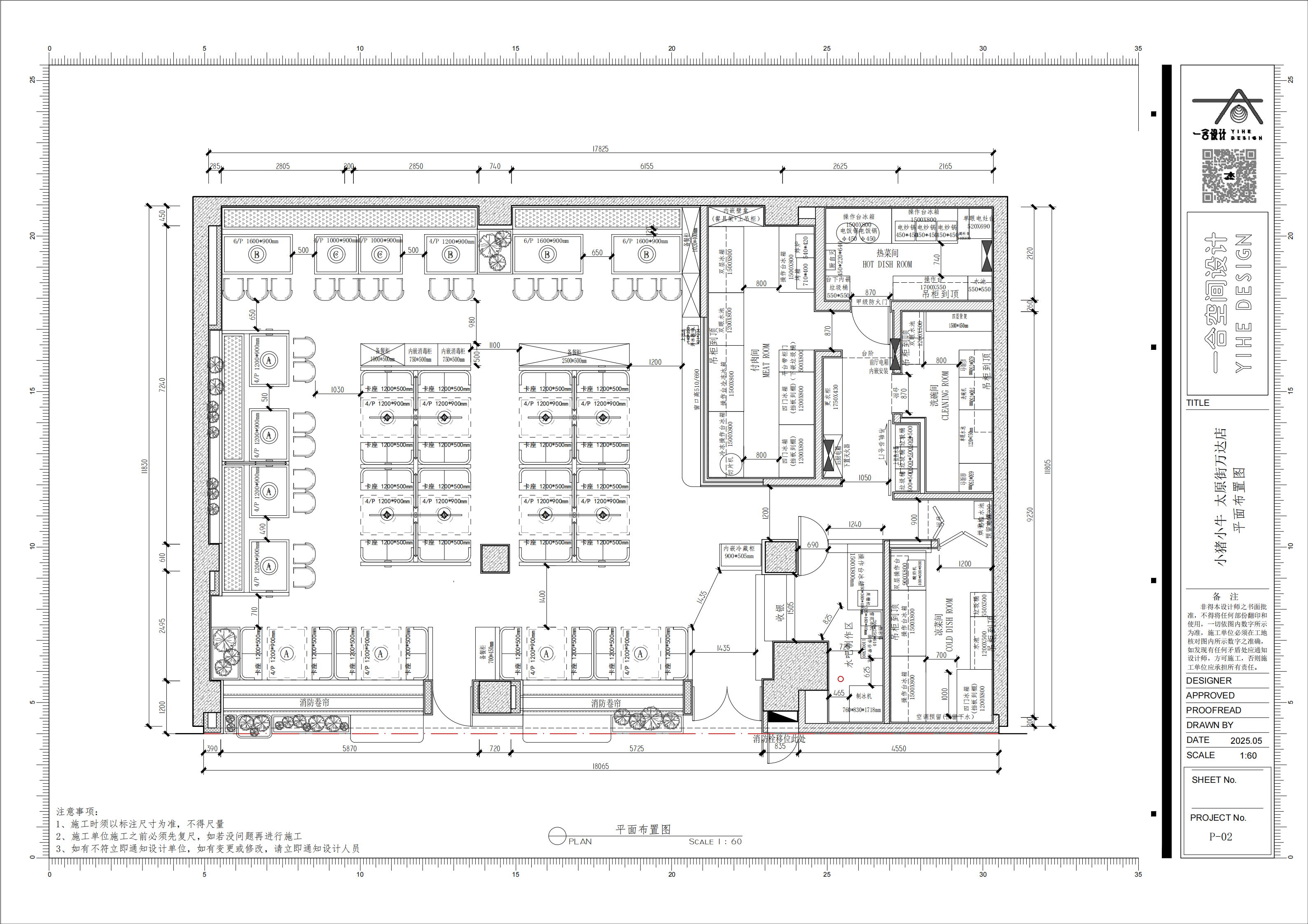
平面布置图
新建墙体图
完成面尺寸图
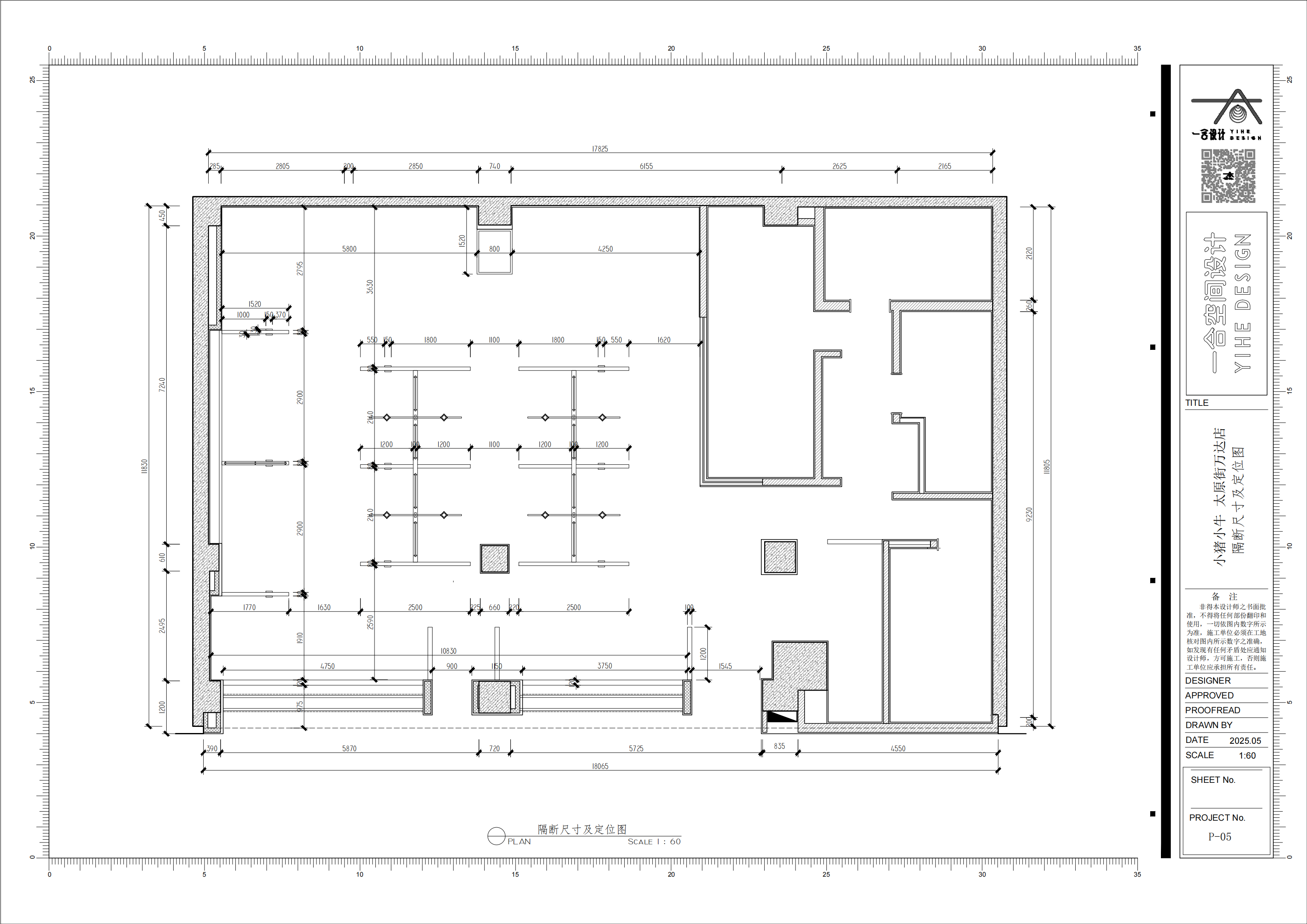
隔断尺寸及定位图
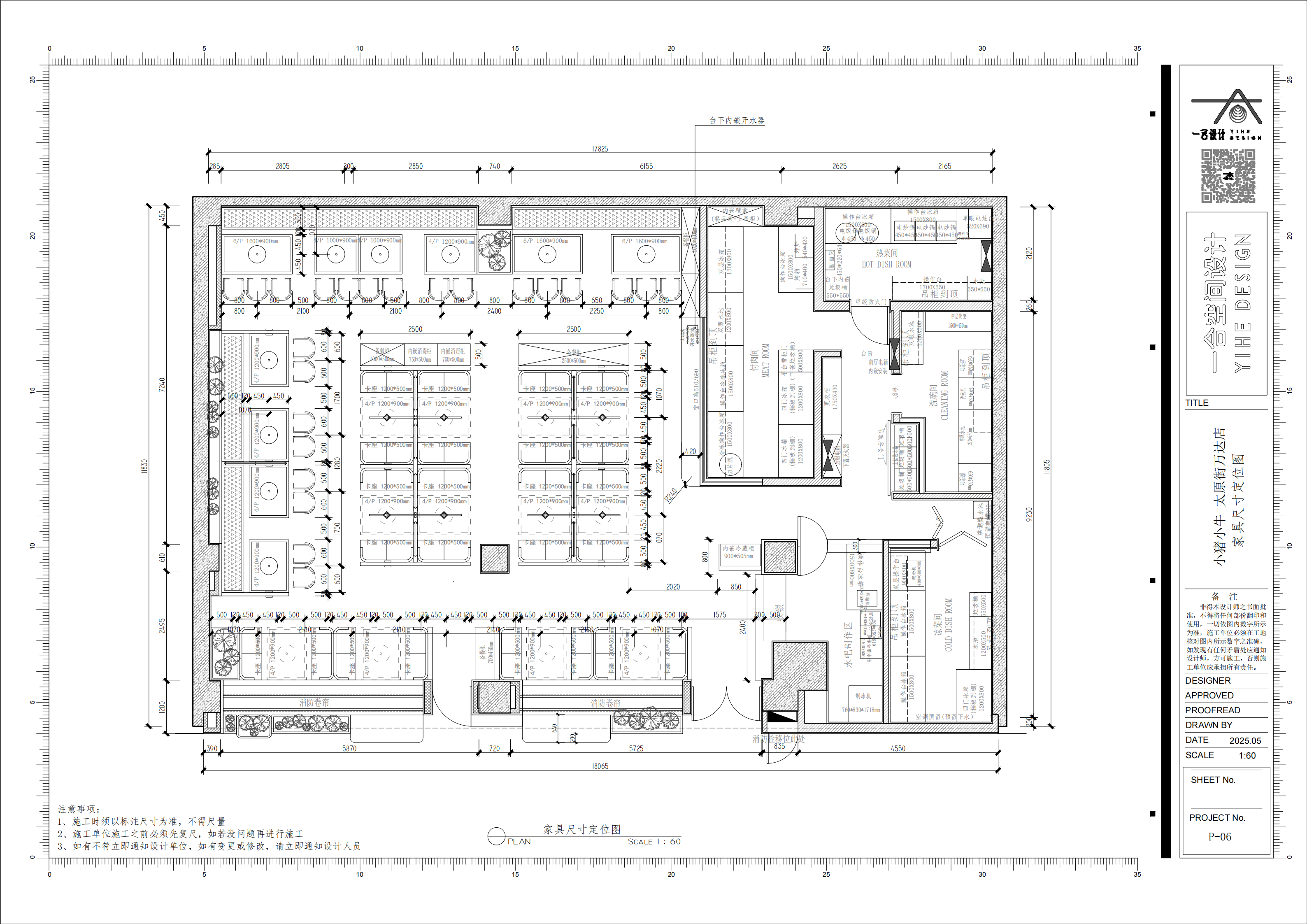
家具尺寸定位图
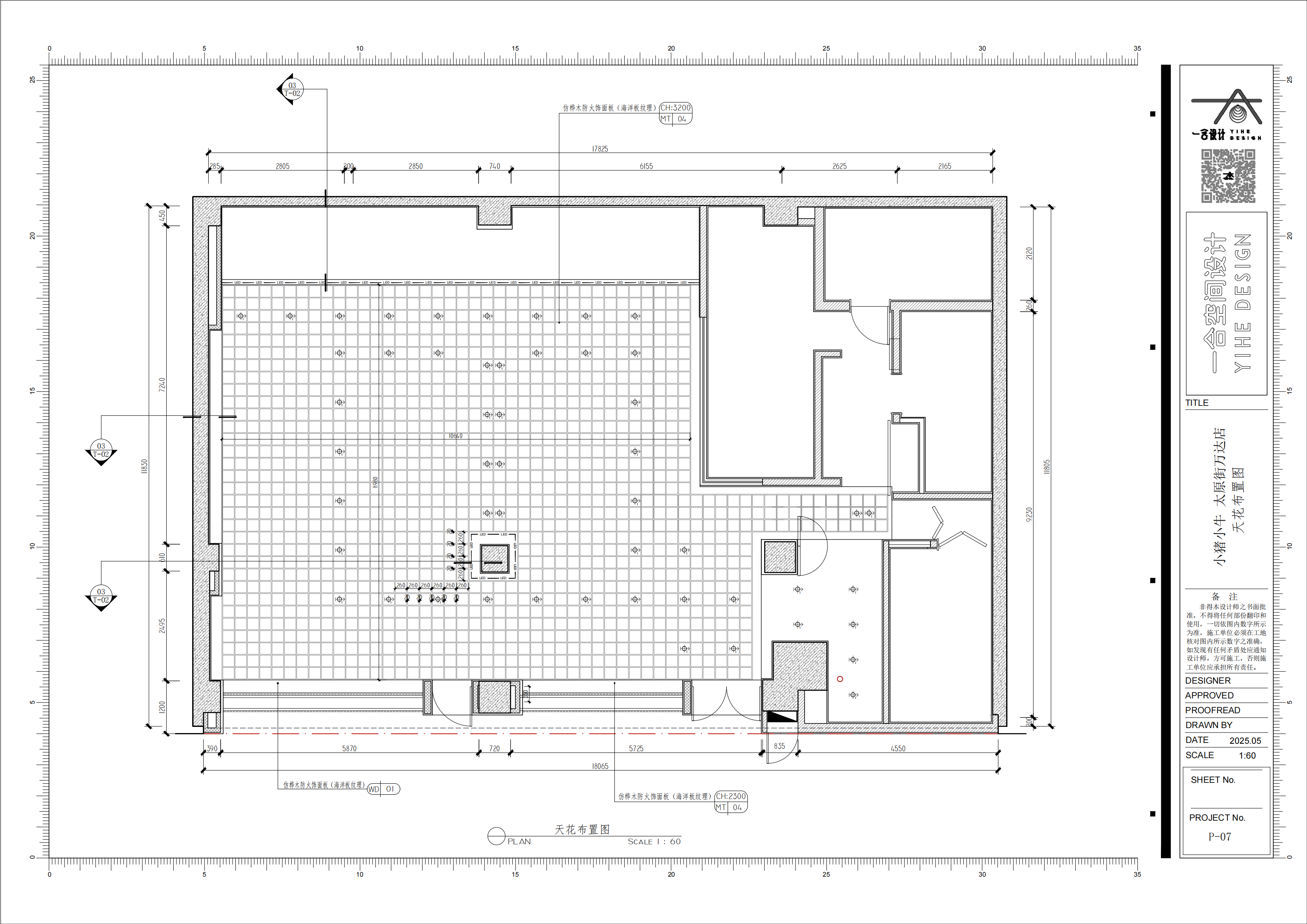
天花布置图
天花布置图
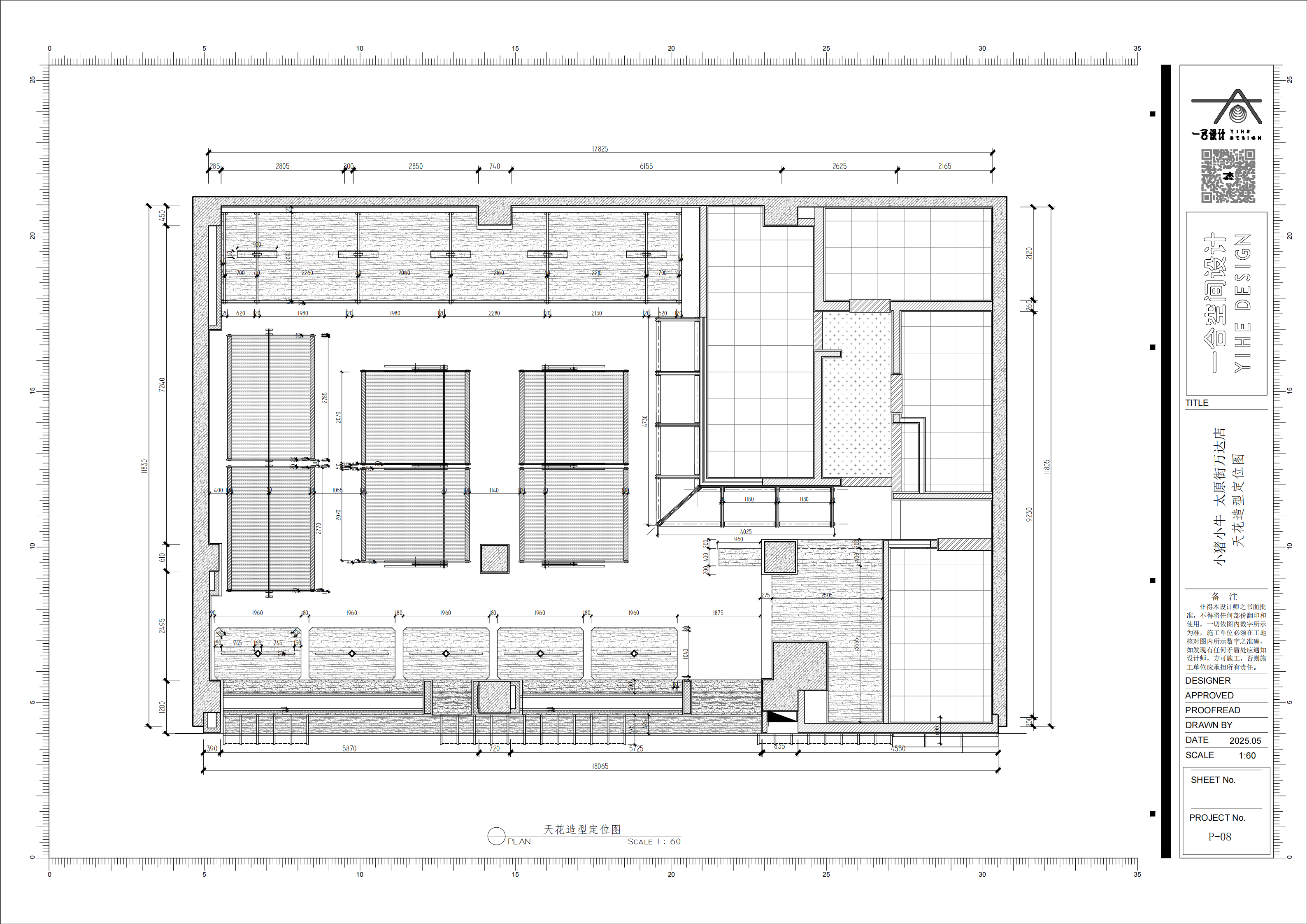
天花造型定位
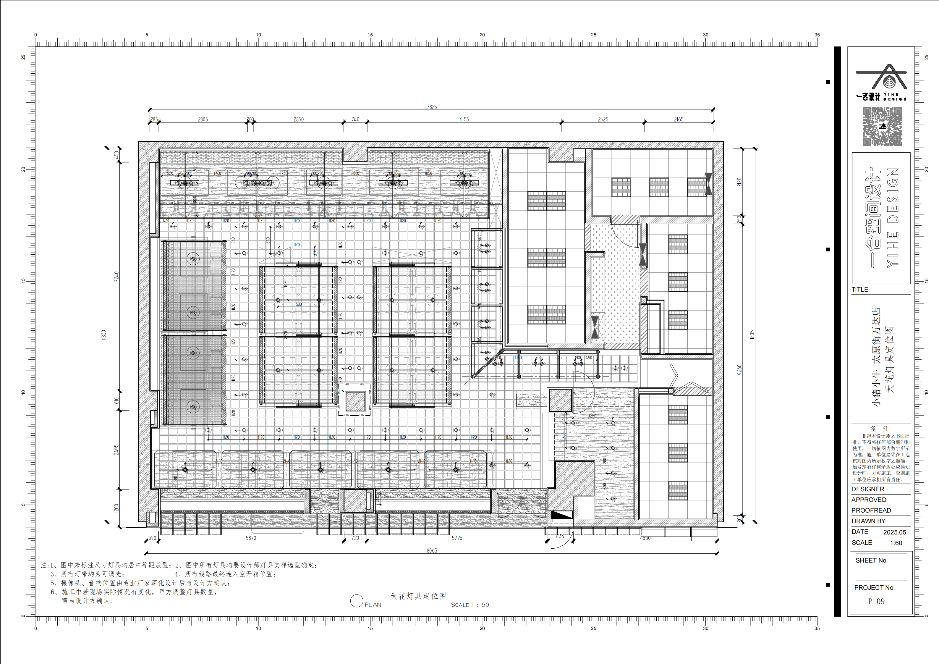
天花灯具定位
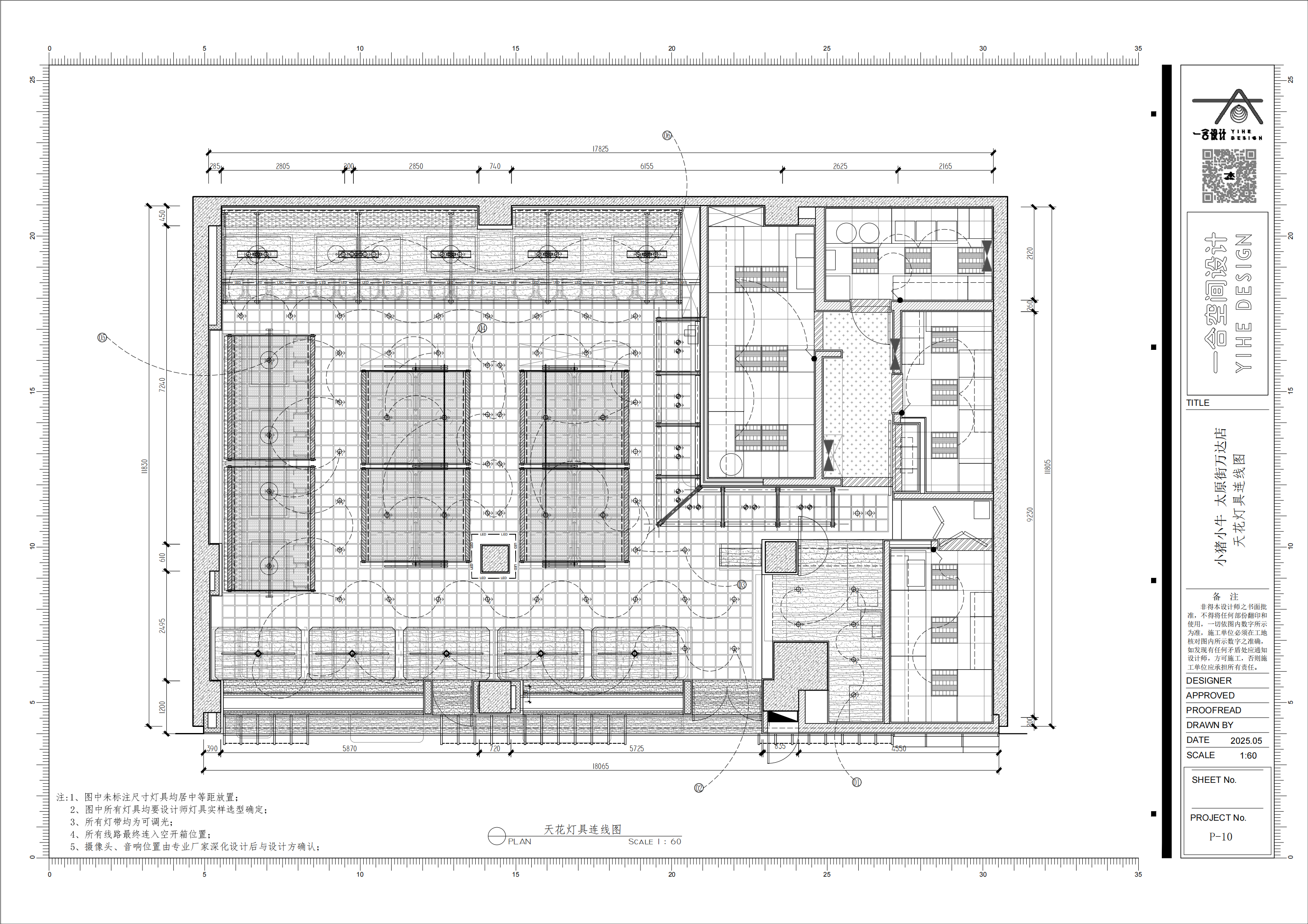
天花灯具连线图
0
0

认证 · 让您身份增值