独处与共聚皆成诗章
6
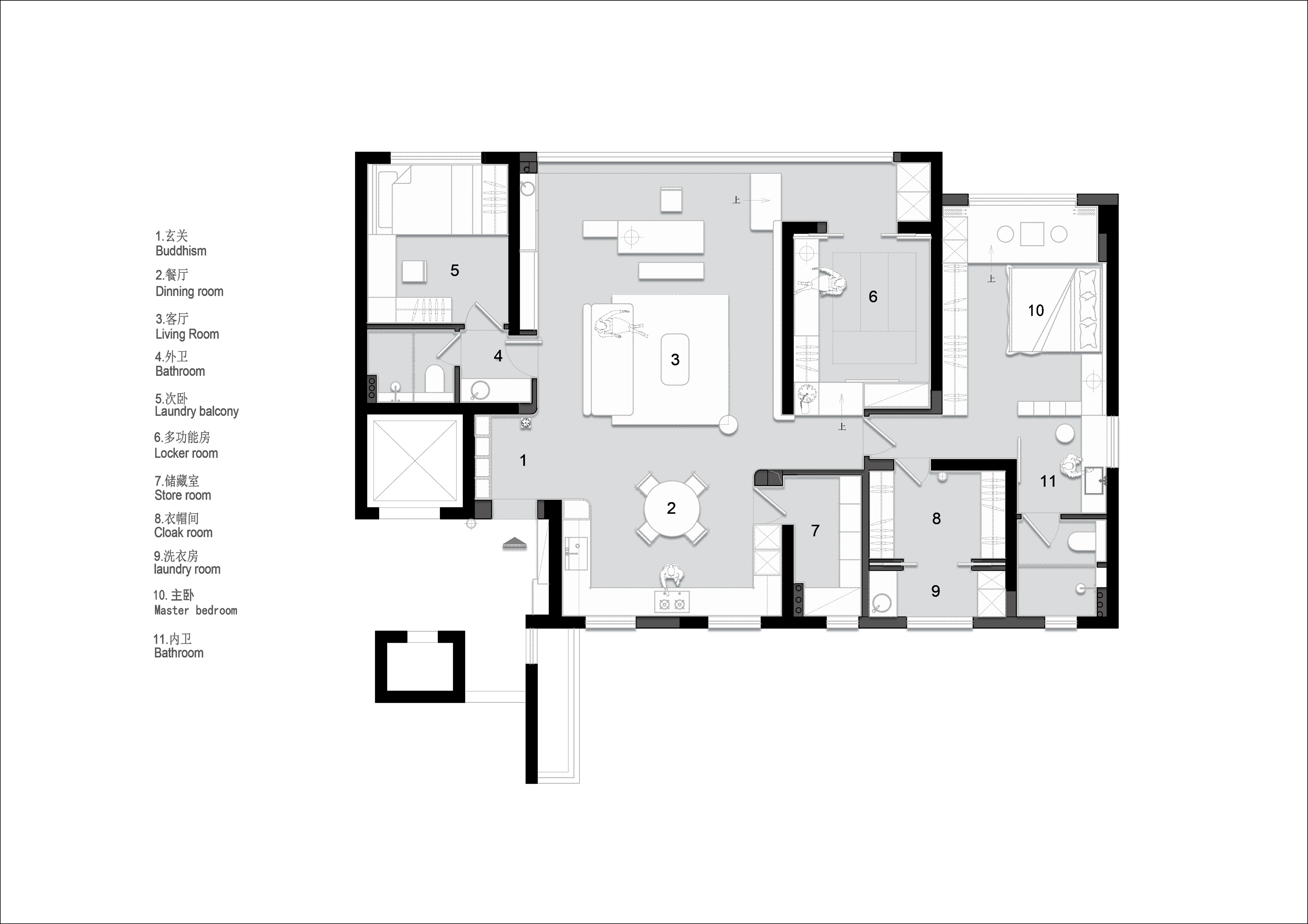
作品说明
- 项目类型:住宅公寓
- 项目地点:乐清市
- 建筑面积:170.0000㎡
- 项目造价:130.0000万元
- 主案设计师: 张浩
- 竣工时间:2025.03
-
项目定位:项目坐落于浙江温州乐清,以“共聚与独处”的复合型生活场景为设计命题,在有限的空间场域内,构建兼具家庭互动温度与个人精神深度的理想栖居。
-
空间意境:设计师通过流动的空间叙事,弱化功能边界,以通透的布局与自然元素的引导,实现家庭共聚欢愉与独处静谧的动态平衡。最终,这里不仅是一个物理居所,更成为承载‘可群居可独善’生活哲学的精神容器。
-
空间布局:设计师将结构制约化作空间诗行,两道横梁被解构成穹顶的优雅褶皱。曲面吊顶如云絮垂落,与"下出下回"的隐形风道达成默契契约,让气流化作无形画笔,在纯净顶面勾勒风的形状。
-
设计选材:微水泥自玄关伊始延伸至室内,以素净的笔触勾勒空间轮廓,硬装褪去了冗余,只留下空间的自然气息。木质栅格柜门以细腻的肌理轻启家的温度,光影游走间,一束中式插花静立,时光与器物在此低语——宁静与舒适,成为生活的底色。
-
用户体验:适合独处也可共聚,适合多样场景使用的空间
0
0

认证 · 让您身份增值