沉浸于静谧,待时光流转


作品说明
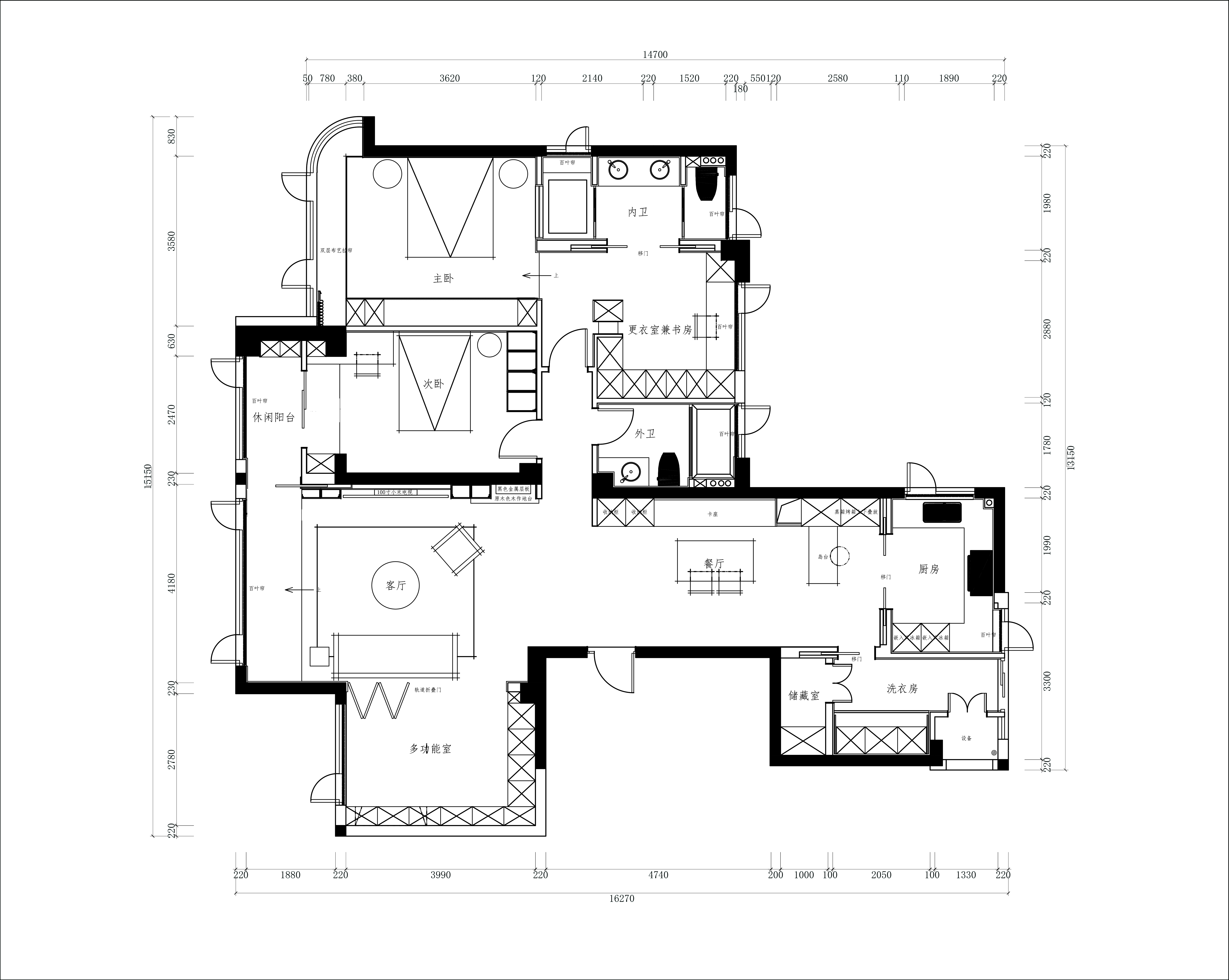
- 项目类型:住宅公寓
- 项目地点:乐清市
- 建筑面积:150.0000㎡
- 项目造价:120.0000万元
- 主案设计师: 张浩
- 竣工时间:2024-10-26
- 设计机构:张浩设计工作室
-
项目定位:家不只是遮风避雨的建筑,而是有着对未来的憧憬、对生活的渴望。家,一个字,十笔落成,结构简单,却值得我们牵念一生。
-
空间意境:填补自然而然的生活。以清雅的生活方式,演绎对生命的深层感悟,带来现代极简主义下温柔且宁静的美。
-
空间布局:沙发背面的多功能房做折叠门的形式 可实现空间可开放可封闭
-
设计选材:木地板 乳胶漆 木饰面
-
用户体验:业主后续体验非常松弛

