格拉斯
13
作品说明
- 项目类型:别墅
- 项目地点:北京市
- 建筑面积:2000.0000㎡
- 项目造价:8000.0000万元
- 竣工时间:2024年12月
-
项目定位:强调空间通透感和层次感;在空间规划上,注重各个功能区域的独立性,如客厅、餐厅、卧室、书房等,通过合理的布局和设计,确保每个区域都有明确的使用功能和舒适的体验。整体设计要遵循简约大气的风格,避免过多的装饰和复杂的造型,以简洁的形式展现空间的美感。
-
空间意境:现代风格的室内设计不仅是装饰,更是一种生活态度的体现。以独特的视角将传统与现代、优雅与时尚完美地结合在一起,是生活与艺术的融合,打造一个既符合现代审美又充满个性的家。
-
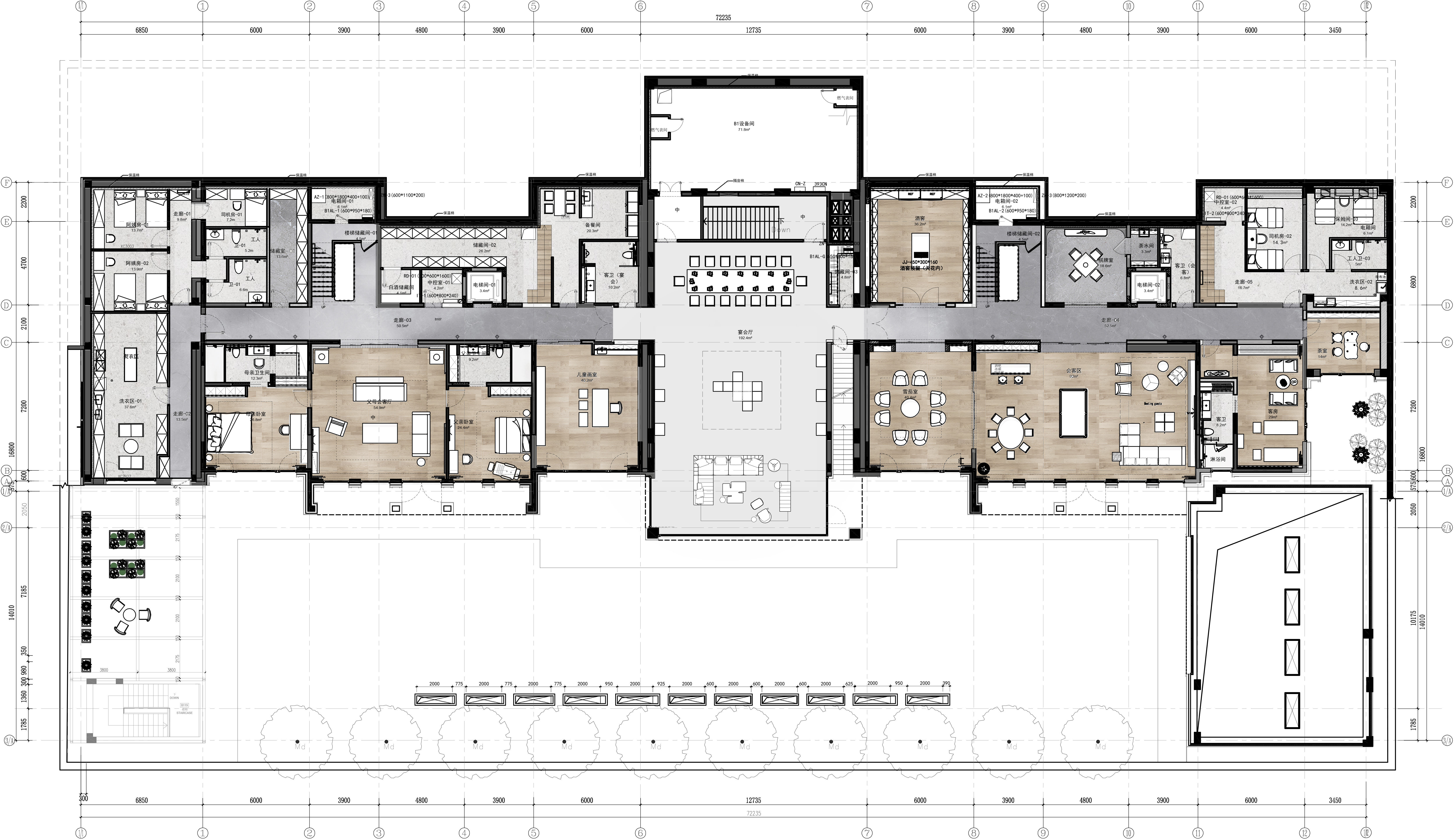
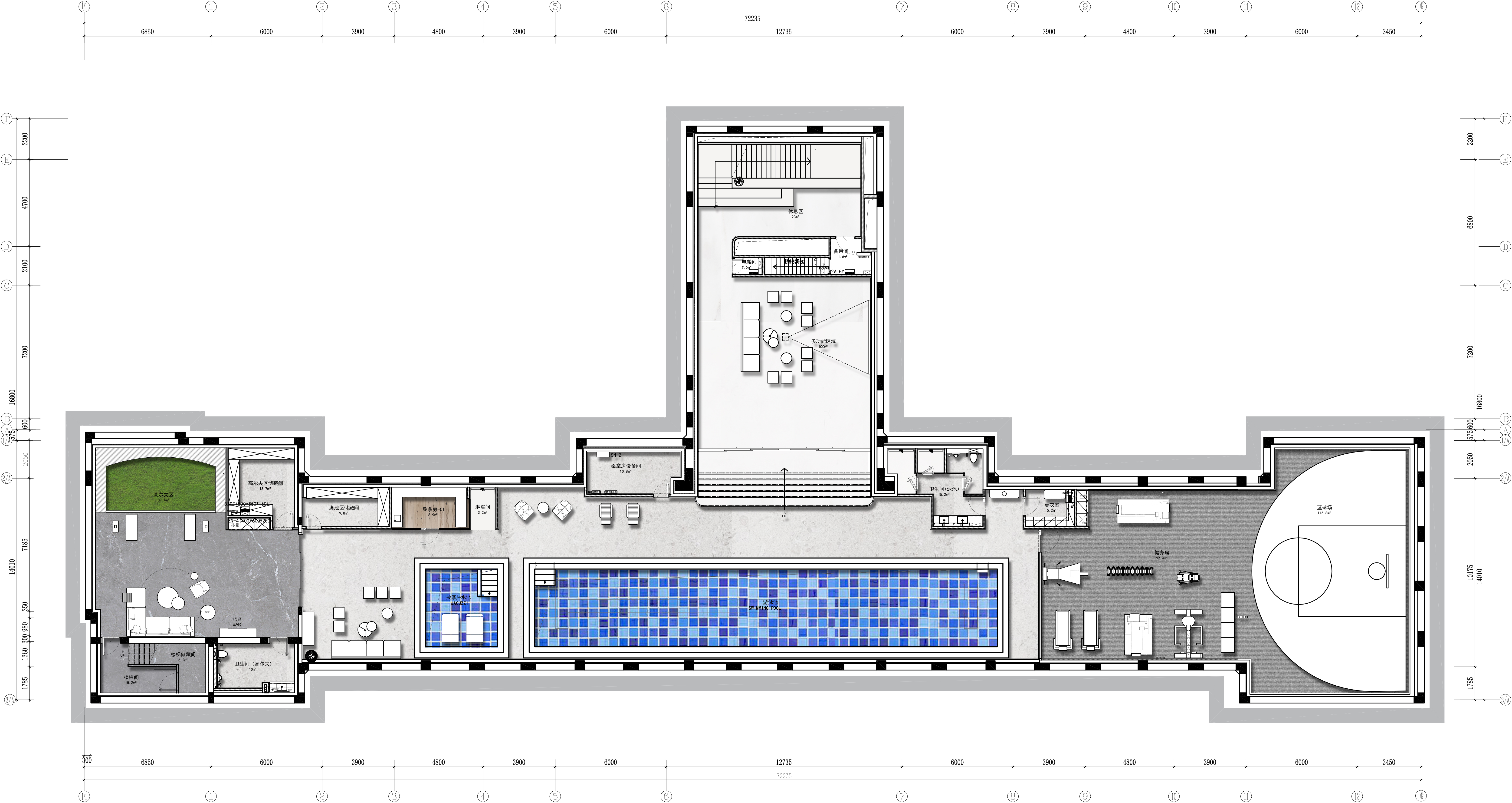
空间布局:项目属于联排别墅,周边自然环境优美,但场地存在一定的局限性,存在一些原有的结构元素,如承重墙等,在空间改造过程中要巧妙处理,使其与新的设计理念相融合。在设计时需充分考虑自然光的引入和人工照明的合理布置。
-
设计选材:整个空间的设计在材质的选择上也有着独到之处。运用了木质、艺术漆、洞石、水磨石等材质进行混搭。让整个空间显得温馨自然,给人一种回归自然的感觉。其中,木质材料优选FSC认证的再生木,既保留了天然纹理的温度,又通过循环利用减少资源消耗;艺术漆采用低VOC环保配方,在确保色彩饱和度的同时降低室内空气污染;洞石与水磨石则利用本地石材加工余料现场拼接,不仅减少了运输碳排放,还通过独特的拼花工艺形成专属的地面肌理。在成本控制上,通过批量采购与工厂预制结合,将环保材料的施工损耗率控制在5%以内,实现了低碳理念与经济实用性的平衡。
-
用户体验:不仅感受到了优雅与简约,还在这里找到属于自己的宁静与美好。是生活与艺术完美地融合在一起,一个独一无二的家。入住半年后,业主反馈空间的温度感与功能性远超预期,木质墙面随光线变化呈现的肌理让每日归家都充满新鲜感,尤其是儿童活动区的地面肌理,成为孩子们追逐光影游戏的天然“画布”。
0
0

认证 · 让您身份增值