穹宇之舞
15 - 项目类型:住宅公寓
- 项目地点:常州市
- 建筑面积:198.0000㎡
- 项目造价:120.0000万元
- 主案设计师: 王建涛
- 竣工时间:2025.10.12
- 设计机构:知也空间设计
-
项目定位:在本案中,吊顶不再是空间的简单边界,而是被赋予叙事性的“第五立面”。我们以“穹宇之舞”为概念,通过“弧形波浪”的宏观形态塑造空间的流动气韵,并借由“月牙灯”的微观光影点亮视觉焦点与情感共鸣。本案是一对年轻夫妻的婚房,和业主沟通下来,从原先的四房到现在的只保留了两房,对原有布局进行了调整,使得空间的穿透感更强。
-
空间意境:月牙灯是本案最具辨识度的视觉符号。运用GRG这种新型材料打造出精巧的新月造型,不仅是对“弧形”母题的极致呼应和升华,更是一种充满诗意的象征。它如同悬于室内的月亮,为现代简约的空间注入一丝浪漫、静谧与超越日常的永恒感。弧形波浪的弧度、比例,月牙灯的大小尺寸及安装位置、都经过严谨的推敲。它们与空间中的线性灯带、筒射灯共同构成了一套完整的照明系统,满足从基础照明到重点照明、情境照明的多层次需求。
-
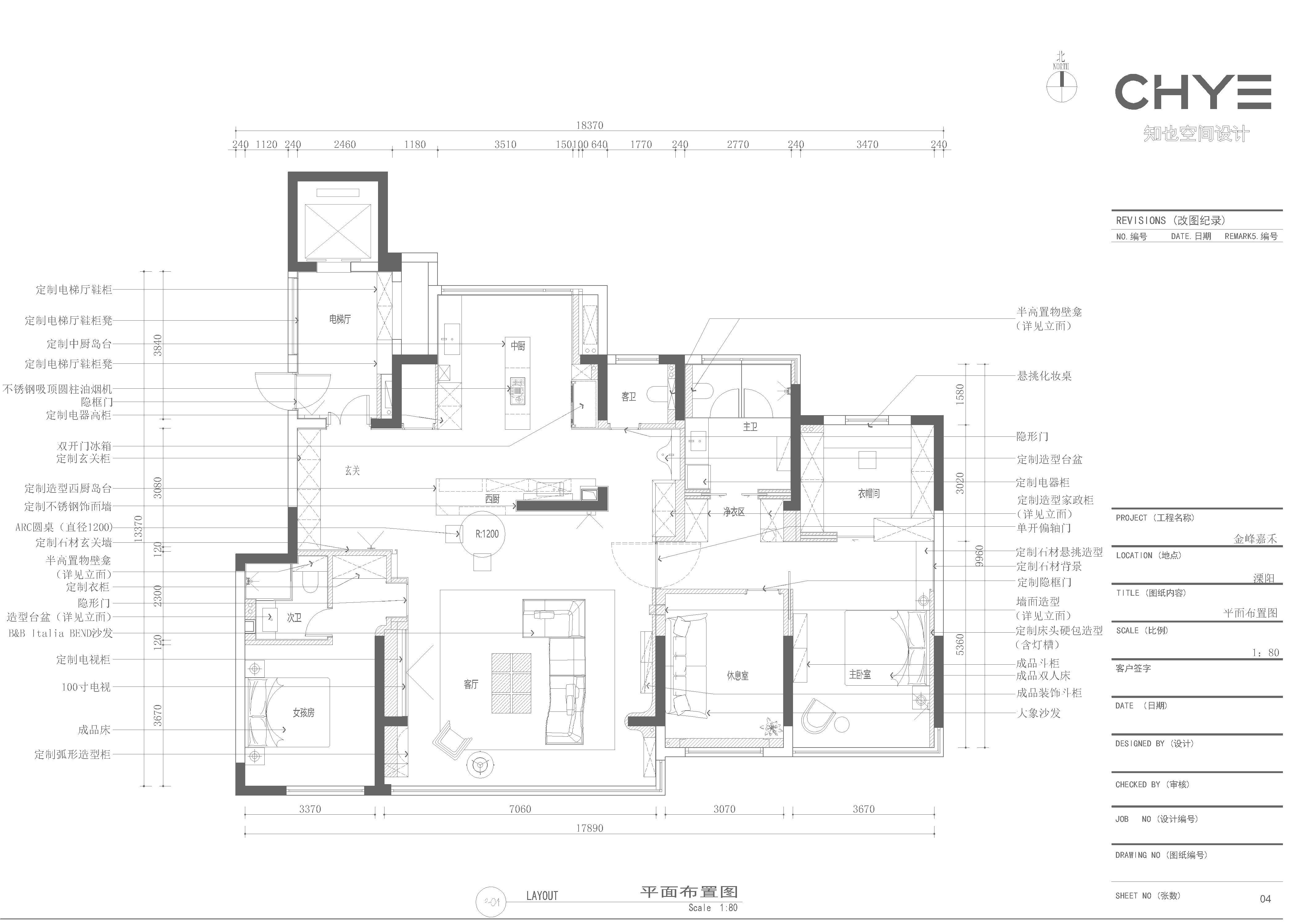
空间布局:四房改成了两房,使得每个房间都能成为一个自成一体的世界,最直接的好处就是尺度的解放。
-
设计选材:4.2米的长岛台形态,由洞石来诠释质感,并由月牙灯来赋予灵魂与情境。洞石在月牙灯柔和泛光的照射下,其丰富的肌理与温润感被极致放大;而月牙灯本身,也因下方洞石自然纹理的衬托,更显纯净与精巧。
-
用户体验:客户表示燕满意,自从竣工验收交付后,同小区的邻居们都过来看过,因为窗户改成了微通风,罗马帘不放下来的时候,从马路上经过抬头看就能看到家里顶上的月牙灯
月牙灯是本案最具辨识度的视觉符号。运用GRG这种新型材料打造出精巧的新月造型,不仅是对“弧形”母题的极致呼应和升华,更是一种充满诗意的象征。它如同悬于室内的月亮,为现代简约的空间注入一丝浪漫、静谧与超越日常的永恒感。 弧形波浪的弧度、比例,月牙灯的大小尺寸及安装位置、都经过严谨的推敲。它们与空间中的线性灯带、筒射灯共同构成了一套完整的照明系统,满足从基础照明到重点照明、情境照明的多层次需求。
流畅的弧线与墙面、柜体等直线条形成鲜明对比,于柔美中见力量,极大地增强了空间的雕塑感和艺术表现力,提升了空间的张力。
原始户型的客厅和阳台是被承重柱把空间分割成了两个相对独立的板块,设计师运用 弧形波浪吊顶连接了这两个空间,它如同被风吹拂的绸缎,或层叠的海浪,从墙面自然舒缓地延伸至顶面,彻底打破了传统平顶的呆板与生硬,为静态的空间注入了生命力,引导视线与动线自然流动。
波浪的走向巧妙地暗示了不同的功能分区,无需实体隔断,实现了空间的开放性与整体性。在沙发区上方,弧形形成一个柔和的“穹顶”,如同建筑中的软性隔断,为休息区营造出被包裹的安全感和亲切的尺度。
在厨房设计中,设计师进行了一次大胆的革新:将传统中力求“隐匿”的抽油烟机,转变为一件具有强烈雕塑感和未来主义色彩的功能性艺术装置。这款独特的双圆筒金属抽油烟机,不仅是高效的空气净化设备,更是整个厨房空间乃至住宅的视觉灵魂,宣示着功能与美学可以完美融合,日常烹饪行为本身即是一场充满仪式感的表演。
厨房采用开放式设计,与客厅、餐厅无缝衔接,中心位置的大型浅色石材岛台,,是空间的绝对核心,整体长度达到了4.2米。岛台既作为备餐区、早餐台,也是家人聚集的社交节点。岛台规整的几何形态与客厅的弧形语言形成有趣的对话,体现了功能性与形式美的平衡。
公卫做了干湿分离,干区的台盆放置在了走道的尽头,在卫浴空间的设计与打造中,选择了Antonio Lupi的笑脸盆,它宛如一颗璀璨的明星,散发着独特而迷人的魅力。
这里摒弃了一切冗余,通过对光线的极致运用、材质的原生触感将睡眠、休憩与观景升华为一种每日践行的疗愈仪式。 色彩上更为柔和,采用暖灰色、米杏色等有助于放松的色调。 床侧整面墙的超大落地窗是空间最奢侈的装饰,它将外部城市风光与自然景观无缝引入室内,成为一幅四季更迭、朝夕变化的动态壁画。 每天清晨,阳光透过浅色窗帘柔和地唤醒; 日间,室内光线随自然光变化; 夜晚,城市灯火成为遥远的星光。
夜幕降临,属于自己的蓝调时刻。
入户玄关,是家与外部世界的过渡与序章。从电梯厅出来直接进入的就是家的空间,深色的柜体与隔断墙构成了沉稳的视觉背景,形成一道有力的屏障,保证了内部空间的私密性。一条清晰的通道将视线自然引向空间深处,激发起探索的欲望,这种并非一眼望穿的处理方式,极大地增强了空间的层次感和神秘感。
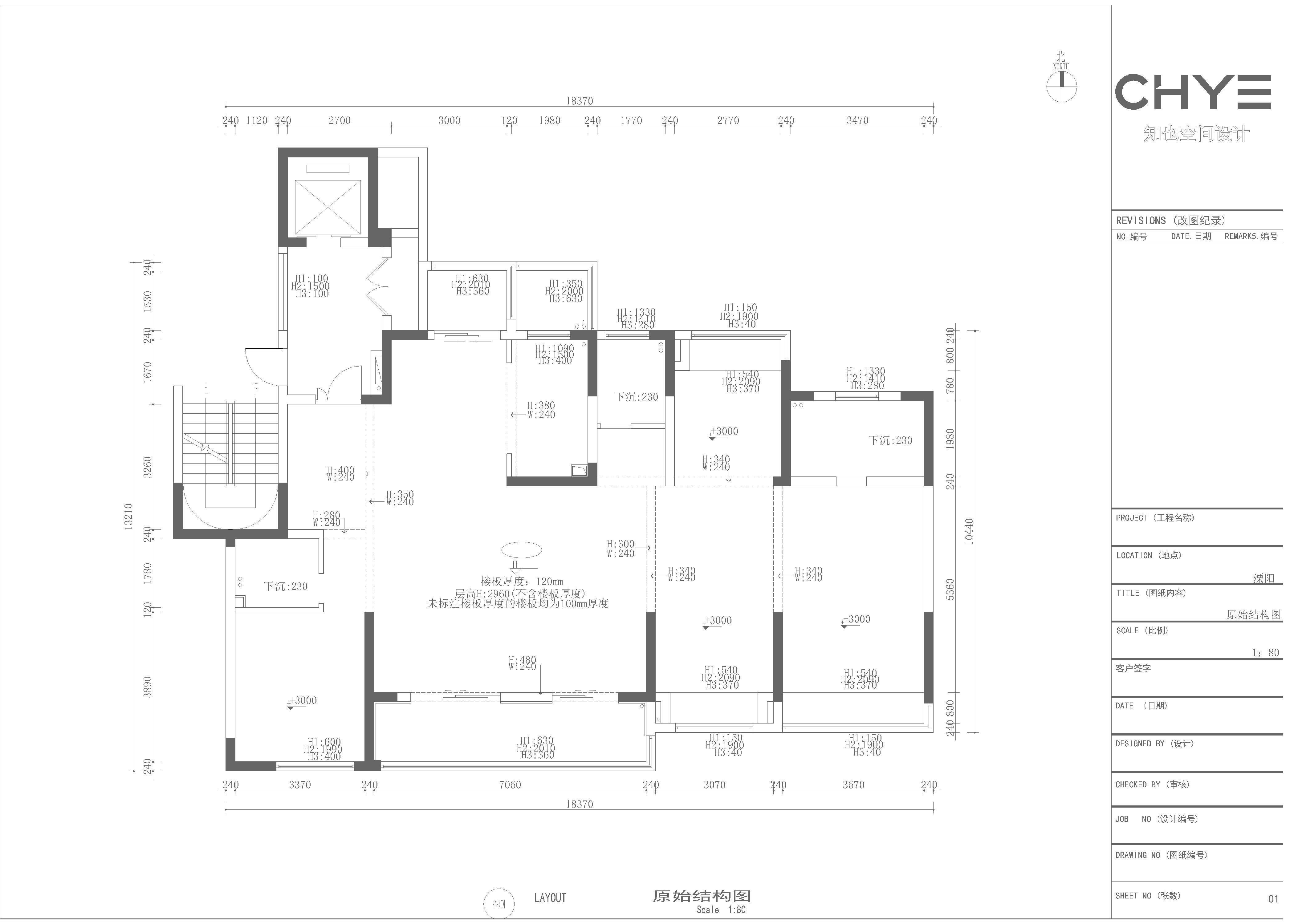
原始结构
平面布置
0
0

认证 · 让您身份增值