平行
153
作品说明
- 项目类型:住宅公寓
- 项目地点:合肥市
- 建筑面积:143㎡
- 项目造价:60万元
- 参与设计师:靳成
- 竣工时间:2024年12月30日
- 设计机构:合肥壹研设计
-
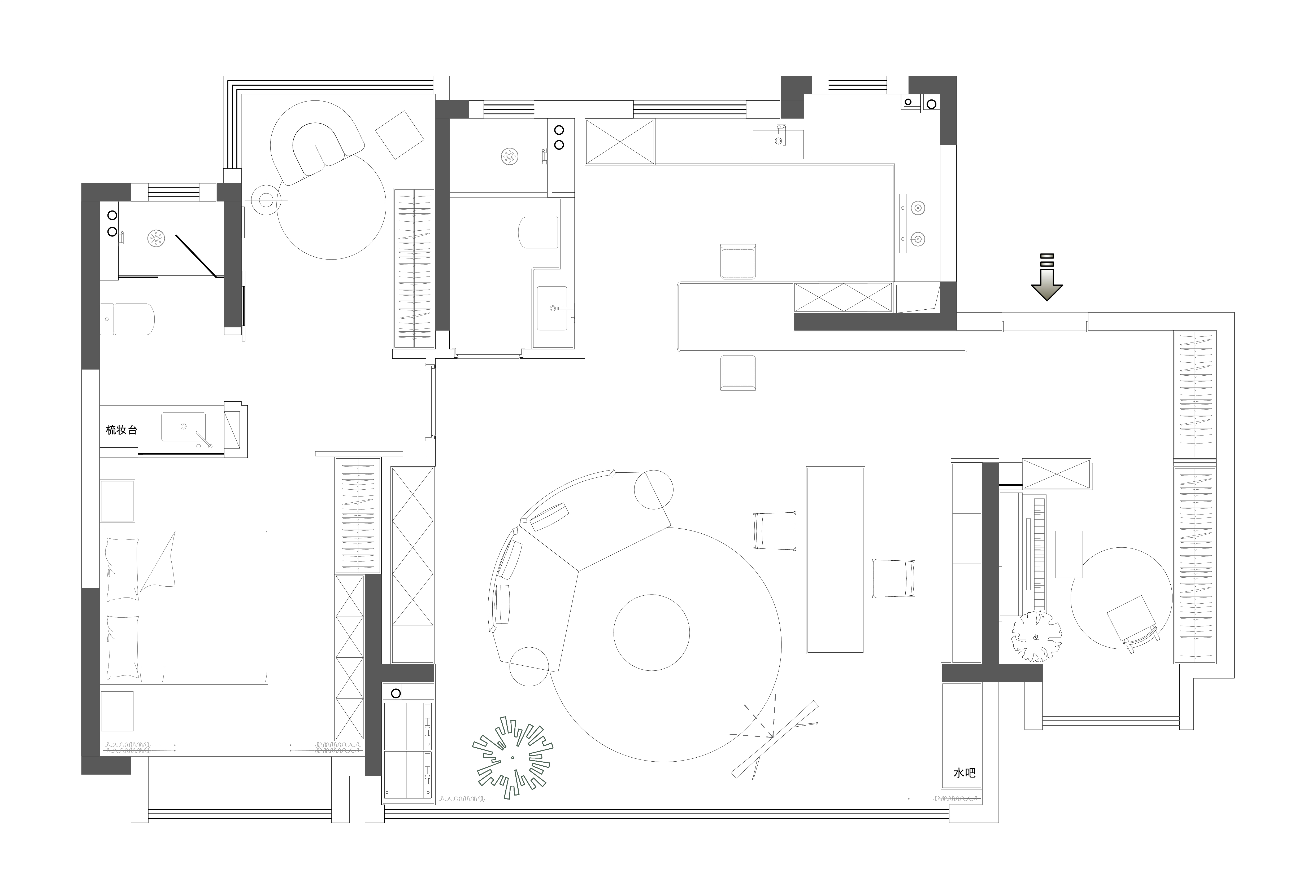
项目定位:项目是由精装房改造而成,屋主是一对年轻夫妻,在工作之余有很多的兴趣爱好,希望打造一个通透的交互空间,可以时时陪伴交流。
-
空间意境:黑色木纹餐桌与承重墙穿插咬合,延伸至玄关;木饰面从玄关墙面向厨房自然过渡;不锈钢金属桌腿与线形餐桌形成L型结构
-
空间布局:选用灰白相间的岩石沙发,以几何切割塑造多面体块的拼接形态,适应不同角度的视线和空间布局,构成家庭核心区,与书房、与餐厨、与玄关等多空间形成视觉对话,为居者实现了“平行陪伴”的美好生活场景。
-
设计选材:材质上选择浅色黑胡桃的木纹与黑木纹交织使用,不锈钢材质做点缀,水磨石在不同空间中呼应联结
-
用户体验:项目落地后,屋主的父母朋友也都很称赞,材质的质感,简洁丰富的结构体现设计感,考虑的生活细节也很多,比如清洁工具,家政功能的考虑,入住体验很好
0
0

认证 · 让您身份增值