奇迈生物接待中心
11
作品说明
- 项目类型:休闲娱乐
- 项目地点:西安市
- 建筑面积:1104.2000㎡
- 项目造价:239.8900万元
- 主案设计师: 任思豪
- 参与设计师:任思豪、刘吉沛、任桂轮
- 竣工时间:2025年6月21日
- 设计机构:西安四月初吉环境艺术设计工程有限公司
-
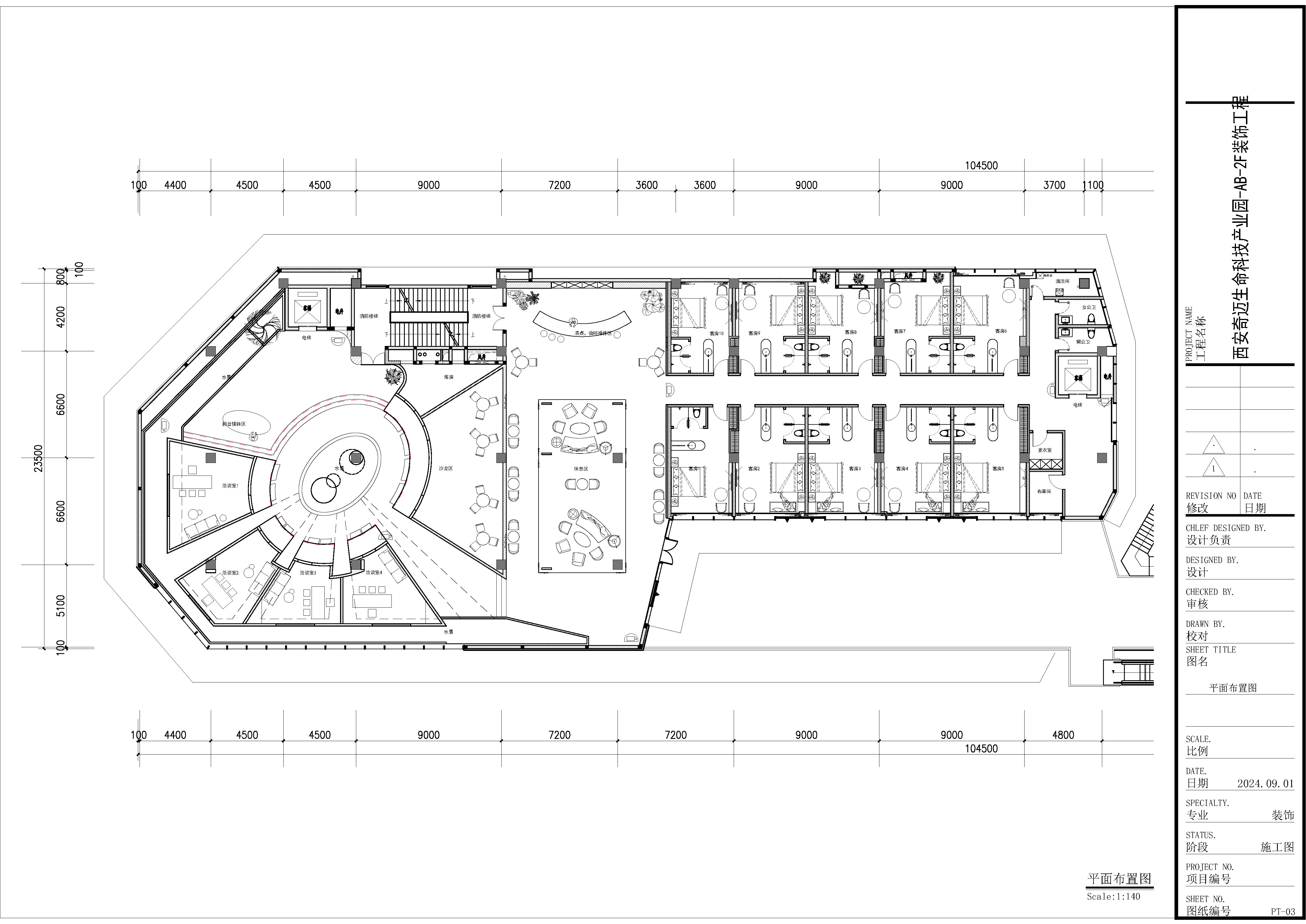
项目定位:本项目定位为“东方哲思与科技人文的共生场域”,为奇迈生物打造一个深度融合文化底蕴与品牌特质的高端招待会所。设计以东方生命智慧为精神内核,以现代科技语言为表达形式,突破传统商务接待空间的单一功能,构建兼具文化体验与品牌传达的沉浸式场域,树立生物科技企业“人文与科技并重”的独特品牌形象。
-
空间意境:创新性地将传统东方意境与现代科技美学进行场景化叠合。核心迎宾区以“圆形水庭”与“星光顶”营造“天圆星瀚”的哲思场景,植入红色环形装置与蓝调金属柱,形成传统符号与未来精神的视觉对话。过渡廊道以几何菱形灯结合竹纹格栅,实现光影的科技感与材质的文化感交织,创造出“一步一景、古今交融”的叙事性场景体验。
-
空间布局:布局遵循“起承转合”的东方序列逻辑,并赋予其现代功能与科技隐喻。以核心水庭为空间枢纽和视觉焦点,围绕其展开流动的接待与洽谈区域。廊道作为情绪与功能的过渡,通过光影与材质的转换,自然引导访客从开放的公共区域步入私密的接待空间,形成“入境-观景-入席”的沉浸式动线,实现空间叙事与实用功能的统一。
-
设计选材:选材注重 东方自然肌理与现代工业材质的对话与平衡:
东方温润材质:木质天花、竹纹玻璃、仿天然石材铺地,传递人文温度与文化亲和力。
现代科技材质:蓝调瓷砖、黑色抛光石材、LED灯带,强调品牌的科技属性与精工质感。
低碳与经济性:大量采用本地化生产的竹木材料与可回收金属,降低运输碳排放;通过“光影造境”手法(如星光顶、水幕反射)减少冗余装饰材料投入;选用耐久性强、维护成本低的石材与金属,确保空间的长期品质与可持续使用。 -
用户体验:投入使用后,该会所成为客户与合作伙伴赞誉的文化体验与品牌感知高地。用户反馈称:“空间既有东方美学的静气与深度,又有未来科技的张力与纯粹,完美诠释了奇迈生物的品牌格调。”高端商务接待在此转化为一种文化沉浸式交流,显著提升了客户的认可度与合作意愿,成功将空间转化为传递企业理念、深化品牌关系的战略载体。
0
0

认证 · 让您身份增值