多巴胺办公室
7
作品说明
- 项目类型:办公
- 项目地点:武汉市
- 建筑面积:220.0000㎡
- 项目造价:30.0000万元
- 参与设计师:方玲娜
- 竣工时间:2025.4.30
- 设计机构:艺格智造
-
项目定位:项目定位:色彩觉醒的创意发生器
核心策略:打造中国游戏行业首个“多巴胺驱动型”办公空间,将色彩心理学与游戏开发需求深度融合,创造既是高效工作场域、又是社交媒体原生内容的生产基地。
情绪生产力系统:首创“色彩-情绪-生产力”映射模型,通过科学配色的环境调节团队创作状态。
24小时内容生产场:空间本身成为公司品牌宣传的永续内容源,降低营销成本的同时提升人才吸引力
墙面、家具以大胆多彩配色(类比多巴胺与内酚酞的调和)为 “颜料”,激发创意活力。 -
空间意境:空间场景:多巴胺美学的空间转译
利用层次化色彩叙事,多巴胺的色彩风格,让色彩越疯,创意越涌。
智能照明系统实现色彩场景模式切换(专注模式/创意模式/庆祝模式)
员工可参与色彩共创,季度主题色投票装置让空间保持“版本更新” -
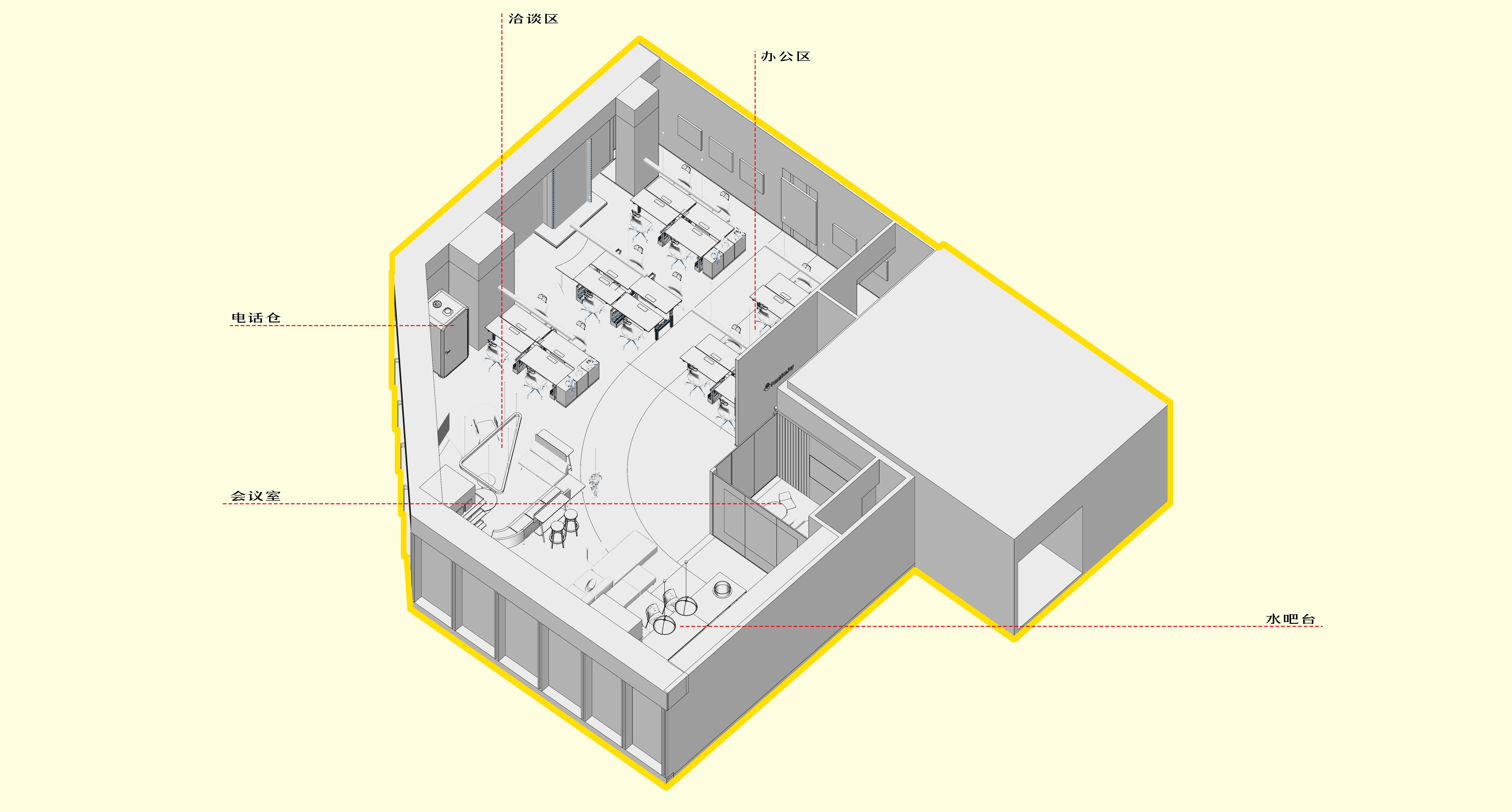
空间布局:空间布局:游戏化动线与模块化矩阵
经理办公室作为“观察位”,视野覆盖全局但不过度介入,核心协作区位于“中路”,方便快速支援。采用升降桌,满足人体工程学办公需求
外部访客从进入开始即被引导体验“公司亮点环线”一半面积用来做员工休闲区,为公司吸引大量高精尖人才
-
设计选材:设计选材:可持续的色彩经济学
采用可反复涂刷的环保乳胶漆,色彩更换无需铲墙,减少90%建筑垃圾
UV防护处理所有靠窗区域材料,抵抗武汉强烈日照
分区设置窗帘的不同透光度,休闲区优先视野,办公区则保证办公环境遮阳度 -
用户体验:用户体验:数据验证的空间效能
员工调查显示:84%员工表示“工作愉悦感明显提升”
项目周期数据:创意阶段时间平均缩短23%,代码调试阶段错误率降低17%
跨部门协作频次:增加41%,色彩分区反而促进了跨领域交流
品牌价值溢出,小红书相关话题累计曝光20000次,“多巴胺办公室”成平台热搜
员工流失率降低,核心团队稳定性显著提升
0
0

认证 · 让您身份增值