自由意
10
作品说明
- 项目类型:住宅公寓
- 项目地点:太原市
- 建筑面积:200.0000㎡
- 项目造价:150.0000万元
- 竣工时间:2025-06
- 设计机构:末染设计
-
项目定位:空间并非填充物体的容器,家应是居者审美、态度、精神、理想的延续,如何通过设计的语言将居者的这份“独一无二”渗透至空间,于混沌之中捕捉一种专属且具象的美并将其浇筑成型,是我们设计的源点。本案是位于太原南城的一所住宅,作为屋主的第二住宅,设计从居者的个体意识以及亲情关系的增进出发,以生活为基底进行灵性构建,营造了一个触属内心、回归本质的居所。
-
空间意境:摒弃繁复的色彩与装饰,借助简单拙诚的场域基底,对体积、比例、节奏进行运筹把控,呈现空间的建筑美感与体块关系,构筑安宁舒适的空间质感,展现居者笃定内敛、不随波逐流的态度与精神。丰富的收纳系统隐藏于简约的界面之后,功能与视觉美感的双重兼顾实现了美学与实用主义的和谐统一。弧形的设计散发出一种别致的韵味。它柔和了直线的硬朗,增添了一份优雅与温暖。木质的沉稳色调与光影的柔和对比,共同营造出一种穿越时空的高级感,呈现出一种动态的美感,仿佛时间在此静止,古韵悠然流淌。水泥梁体,展现出建筑的原生魅力,层次感愈发丰富,令空间更加开阔。
-
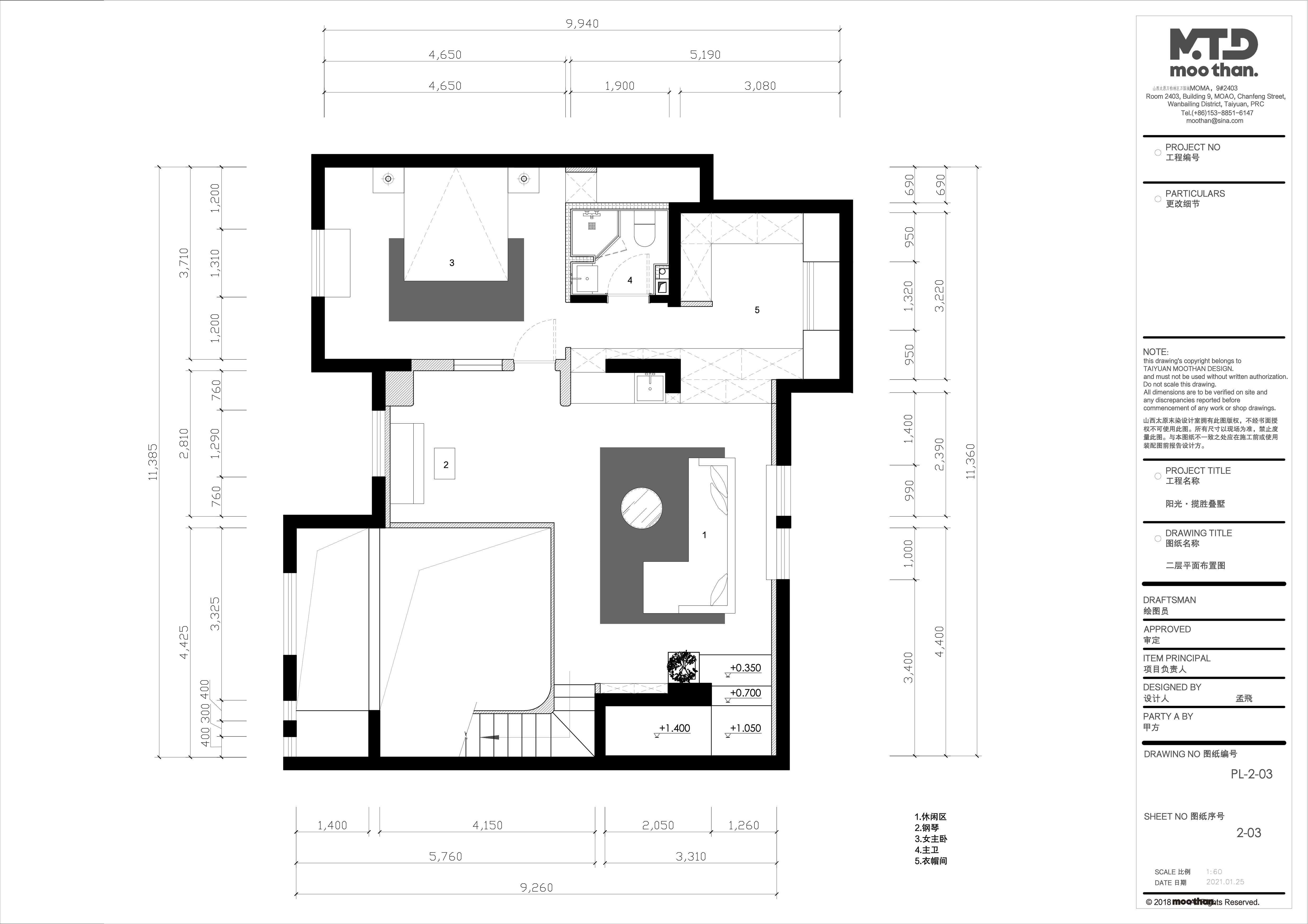
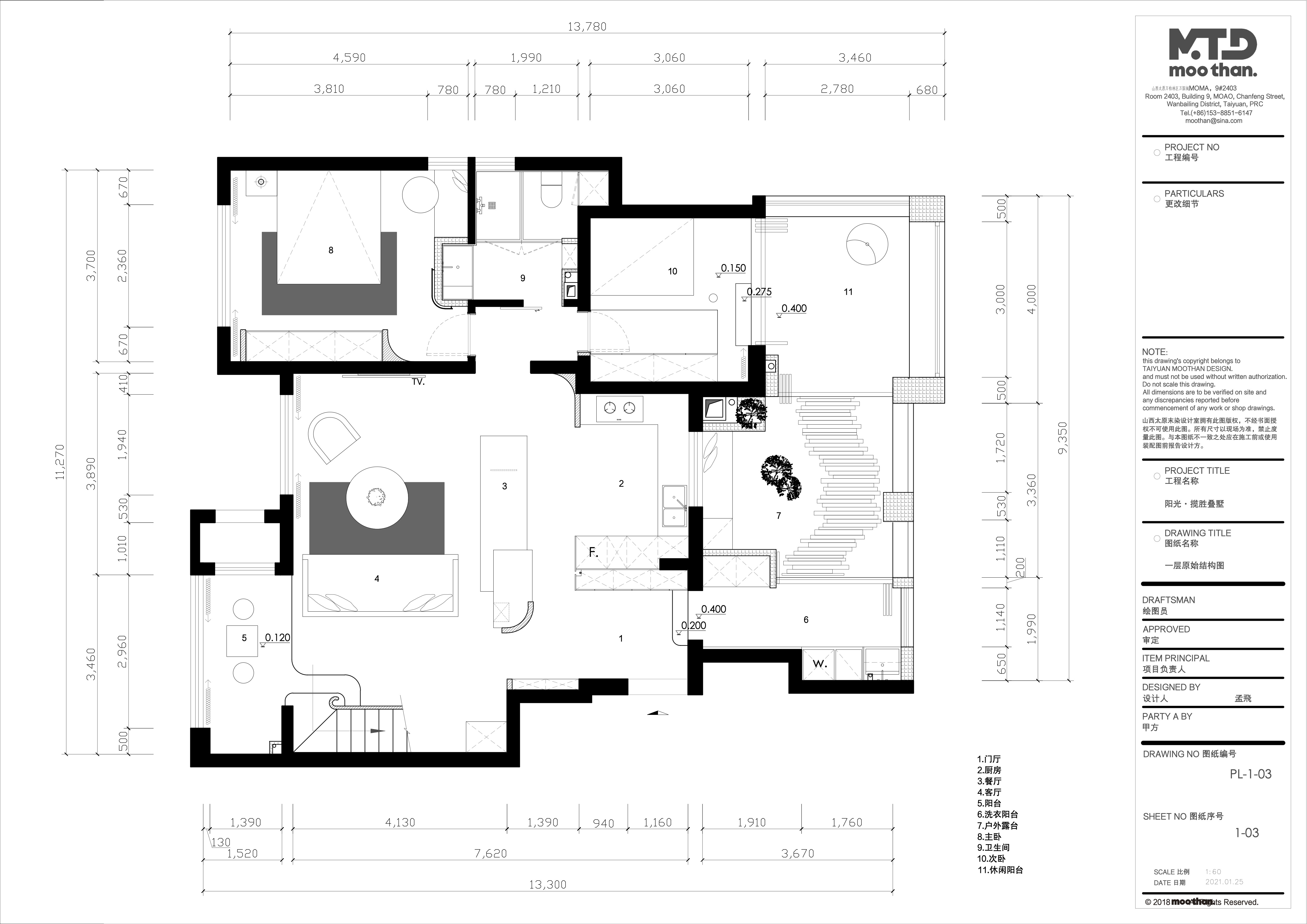
空间布局:空间不会被固化,去客厅化设计展现出生活的流动,以功能性为核心,突破了传统布局的束缚,纱帘柔软的材质与窗户的曲线相得益彰,地毯、茶几等大量弧线的运用让人在穿行时感受到一种温馨与安心,增强了空间的流畅感,宁静流淌。原空间存在公区利用率低、餐厨空间相对隔离、空间交互性差、室内采光不佳等问题,传统的空间格局使得公区局促且缺乏活力,功能场景亦不能满足当下生活方式。我们拆除建筑原有部分墙体,重塑功能布局,塑造兼具实用性、丰富性、流动性、交互性的生活场域,并于空间中探索滋养情感和灵魂的方式。起居室、餐厅、厨房一体化设计,空间视觉和动线相互融通,最大化开敞式布局,使得场域开阔、流动、有机;自由开放的形态承载生活的多种场景,居者虽身处各自空间依然能彼此关怀、互动,各个单元不是孤单的存在,公区成为情感连接的纽带。
-
设计选材:空间选用了温暖且富有肌理的材质。墙面采用暖灰色艺术漆,柔光的质感与手工涂刷出的斑驳肌理共同构建了一种 “质朴的诗意” 。点缀的木质装饰品有着温润的肌理,烘托了空间温暖、自然的氛围。与墙面同色系的瓷砖材作为空间的基调,与自然材质相呼应。设计通过简洁统一的色调和丰富的质感变化,营造了细腻、松弛的空间。
阳台打造为雅致的茶室,一缕茶香飘散,让空间浸润香气,生活的画卷得以延展,为居者带来更沉浸于天地的自我之境界。在现代设计手法之下,石材与木质的刚柔结合,空间以更加自由,丰富,饱满的姿态呈现,令生活美学的内涵表达有了具象。木质地台跃动天然纹理,沉稳内敛的艺术肌理诠释极简的魅力,强调人与空间的紧密联系。用艺术思维勾勒空间,让生活的律动于此交融。
-
用户体验:通过细节体现整体与可触摸式,肌理、空间密度与光影,体现空间的延展的和关怀的语境。从需求出发,室空间显得愈加舒展,蕴含自在基调。合理的空间优化,协调布局,强化情绪感知力。减法设计的自在随性,让通透生活充满了阳光与呼吸。功能的弥合,是空间不同的可能,更是生活的扩展。打破传统空间的界限,让生活的每一条动线都流畅而富有诗意。
0
0

认证 · 让您身份增值