《暖・家》
15
作品说明
- 项目类型:住宅公寓
- 项目地点:西安市
- 建筑面积:246.0000㎡
- 项目造价:120.0000万元
- 主案设计师: 蔡飞
- 参与设计师:蔡飞
- 竣工时间:2024-12月
-
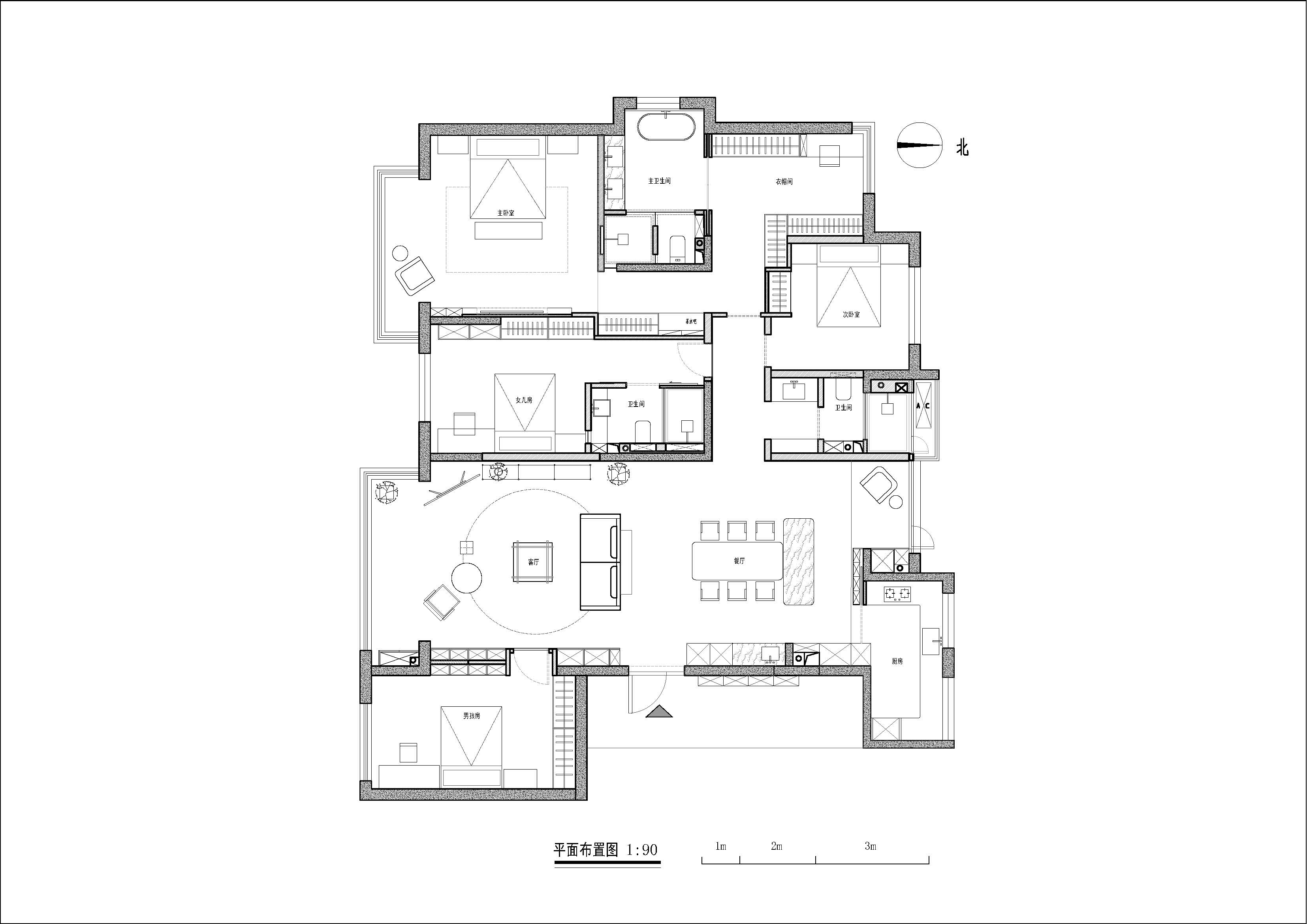
项目定位:记忆有处附着,成长清晰可见。当空间的目的不是装点生活,而是滋养生命时,关于家的设计便回归到时间、空间本身。本案是一套246㎡的私宅项目,业主从事地产行业,不喜奢华、拒绝繁复。
因此,设计师首要考量的是:将孩童成长与家庭互动预设空间内部,呈现一处亲子共度的生活场域。去除隔阂、将玄关、过道、客厅、餐厨串联;消弥边界,让场景与场景之间相互渗透。以家庭行为为脉络,带来一处承载一家四口日常的理想之居。
-
空间意境:客厅
从踏入家门的那一刻,阳光、色调、材质不同元素便幻化出温柔符号,唤起一种归家的轻松感。生活场景一字排开,设计师对公区的规划清晰而笃定:在虚实之间,开放且独立。
墙面白色漆面和木色饰面对碰,强烈的视觉效果巧妙破除空间方正呆板的氛围。考虑到横厅本身具备的开阔优势,将蓝色皮质沙发置于客厅中央,借助单椅、电视、收纳柜等体块自由重组,以独立又围合的布局形式,在现有格局内重塑秩序。或交谈、或游戏,专属区域内的交互无限延展。
餐厅
烹饪、用餐、品茶、喝咖啡…追随居者过往生活痕迹,餐厨区域以行为来引导设计。将原本封闭墙体拆除,打开空间的桎梏,餐岛一体化设计模糊固有边界与功能分区,开阔之余自带呼吸感。黑与白在此处静静对峙,无声处沉淀空间的底色,高级且克制。
面对不可动的靠窗墙体,设计以独立的“盒体结构”另辟一方天地。它落定于视觉末端,标志着空间停顿,但又不止于此。设计师借助统一色调以一道精准的“斜向”视觉连接,完成空间的呼应和动线引导。再绕至阳台一侧,极简结构在储物与展示、封闭与开放间,建立起精妙的平衡,功能性与美学合二为一。
空间回归到生活应有的节奏,设计师还埋下无数温柔的伏笔:落座餐厅的父母,抬眼间便可照看客厅玩耍的孩子;高低错落的餐岛,无声承载一家四口的晨昏絮语;拐角处的独立角落,变身可随时认领的精神自留地。秩序分明、从容松弛。
-
空间布局:将孩童成长与家庭互动预设空间内部,呈现一处亲子共度的生活场域。去除隔阂、将玄关、过道、客厅、餐厨串联;消弥边界,让场景与场景之间相互渗透。以家庭行为为脉络,带来一处承载一家四口日常的理想之居。
-
设计选材:材质简单,材料克制
-
用户体验:业主:这不单单是个房子,是一个温暖的港湾,是一个温暖的家。
0
0

认证 · 让您身份增值