简白艺术里的人间烟火
10 - 项目类型:别墅
- 项目地点:苏州市
- 建筑面积:400.0000㎡
- 项目造价:185.0000万元
- 参与设计师:汤佳顺
- 竣工时间: 2025.1
- 设计机构:川页美学设计
-
项目定位:本案例是幸福的三代同堂,对于家的需求,屋主希望这里是节假日一家老小聚会的优质选择,满足家中不同年龄段成员都居住习惯,且符合适老化需求。
-
空间意境:生活是设计师的灵感源泉,设计师从居住者的需求出发,将室外美景与室内的布局巧妙融合,创造出一种既舒适又自在的氛围,还融入了居住者的独特个性,力求在每个角落都能让人感到舒适和愉悦。
-
空间布局:动静结合的设计手法,带来居者深层次的思考。整体动线设计十分流畅,布局巧妙优雅,让空间更加饱满。
-
设计选材:每一处细节都经过精心设计和打磨,设计师巧妙地运用了色彩、材质和光影等元素,使得整个空间既具有现代感又不失温馨与舒适。
-
用户体验:入住后一家人非常喜欢家里的松弛感,特别是每层的家庭互动区,让家人之间的交流更顺畅,情感也更融洽。
入户的次净衣柜选用了彩绘的几何图形,一方面巧妙遮挡住入户的视线。同时也是这个区域充满仪式感,让归家的人瞬间过渡心情,调整呼吸,漫步而入。穿过玄关去,进入空间便感受到客厅的开阔感觉。
纵观整个客厅设计,艺术和生活总是并行而至,自然的气息从室外一直蔓延至室内,成为了生活的重要组成。每个区域内,都会有一个窗口,设计师以此来衔接自然风光和室内生活,为家注入更多的力量。
一层几乎都是留给家人的公共活动区域,白色的墙面为底,不同材质的家具穿插其中,空间氛围质朴又宁静,符合一家三代人的审美需求。为了提升采光度,窗户都开得比较大,在墙体的遮蔽下,形成一个有趣的光影流动空间。
一层的设计,设计师大胆地增加了两段独立墙体,将公共区域的空间一分为三,分隔后的空间变成家人活动区和餐厅,优化了空间整体动线,使原本开放的布局变得相对独立。
家人活动区,设计师以其独特的美学和功能性,为屋主设计了一个既舒适又富有创意的生活空间。在这里,一家人可以享受到宁静与和谐,同时也能够随时找到快乐的自己。当光影舞动时,空间展现出动态的变化,为居住者带来视觉上的享受。
餐厅区域内分别有圆桌、吧台区和西厨区,三者位于不同的空间中,让生活也充满了仪式感。细节的艺术点缀赋予了此处满满的精致,功能性和美观性随之呈现。
二楼家庭共享区, 包含阅读、品茶以及活动区等,在这里每个家人都能找到适合自己的区域。设计师结合屋主的需求,把配色、功能都一一落实。自由宽敞的空间内,居住品质大幅提高。日常的简单和精彩并不矛盾,丰富的精神享受十分特别。
原始户型图 1.户型方正,采光好;2.房间比较多,布局紧凑,整个空间切割得比较零碎且缺乏家庭共享空间。3.楼梯为全屋中央,且入户对着楼梯和卫生间,常规布局比较浪费空间,私密性差。4.二楼主卧的动线非常长,且与两个儿童房之间完全被切割开,便利性差且影响家人之间的交流与互动。
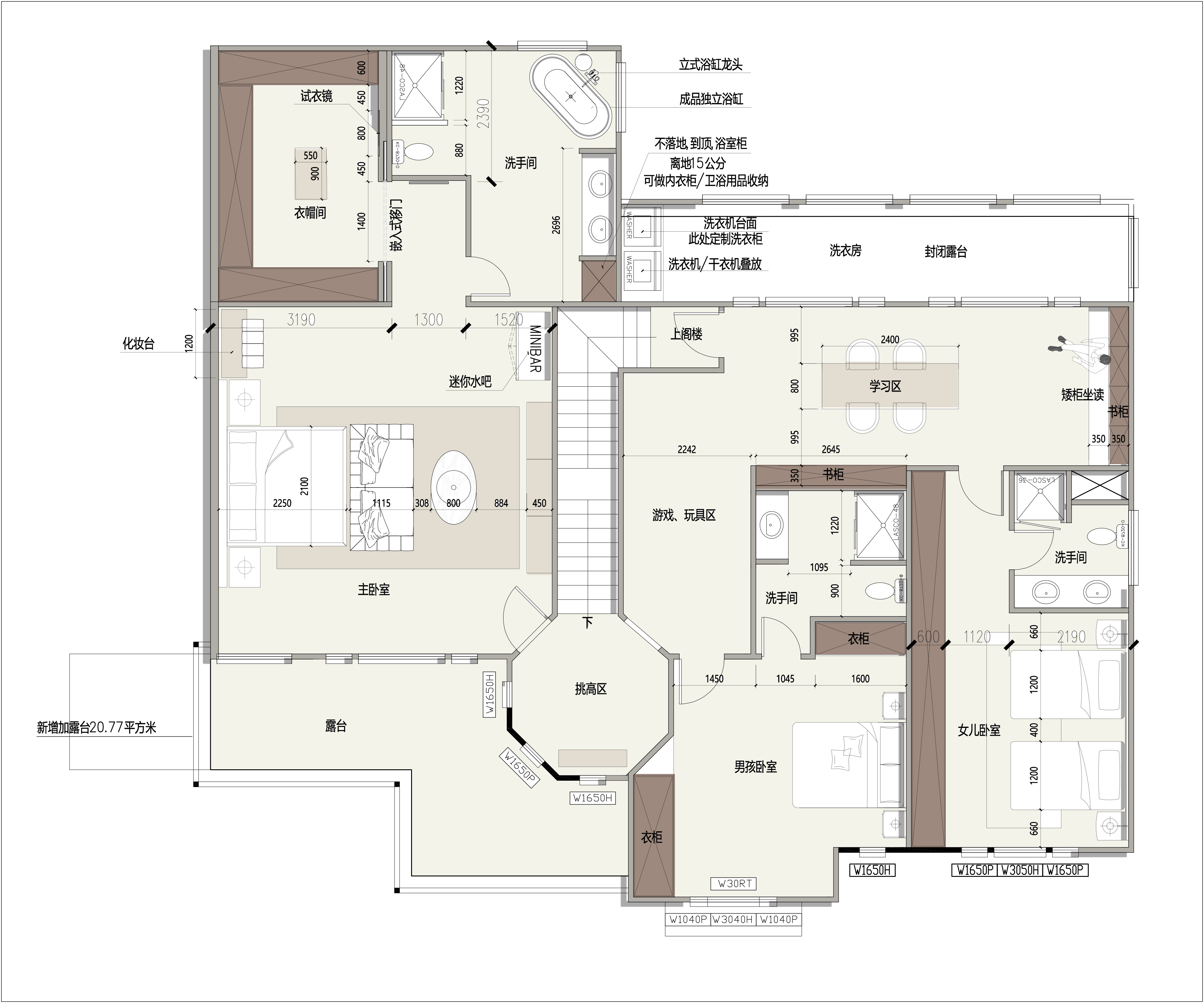
装修平面图,考虑到屋主比较注重家人之间的交流与互动,以及各家庭成员之间的私密空间,因此设计师主要围绕这两方面进行规划与设计: 1.考虑到入户的私密性与空间的通畅,调整了楼梯的位置,打造了独立的门厅,入户后动线舒适;2.考虑到家庭成员之前的互动,将一楼客卧套间打造成家人的休闲和学习区; 3.考虑到客厅的采光,每个区域内都改造出一个窗口,将室外自然风光引起室内,以此来衔接自然风光和室内生活。 4.考虑到家人的用餐习惯,餐厨动线以及书房的空间比较小,将书房整体外移并对整个餐厅的空间进行了重构,既实现了屋主的需求,也大大缩短了餐厨动线,提升了居住舒适度。 5.考虑到私密性和便利性,将原次卧的卫生间外移与厨房拉平,打造出两个卫生间,一个做为客卫。
6.考虑到二楼次卧的卫生间位于房子中央且整个二楼缺乏家人互动空间,将次卧的卫生间拆除并对次卧进行了空间重构,既实现了次卧套间的功能,也打造出了一个包含亲子休闲、娱乐以及阅读的空间。 7.考虑到原二楼主卧的动线比较长,且与两个儿童房之间被切割,设计后调整了主卧的门洞方向,打造出了一个包含衣帽间、化妆间、卫生间的主卧套间。 8.考虑到两个孩子需要独立的学习空间,将原儿童房与走廊打通并进行了空间重构,打造出一个包含卫生间、书房的卧室套间。
0
0

认证 · 让您身份增值