代官山·肌肤美学
13
作品说明
- 项目类型:休闲娱乐
- 项目地点:太原市
- 建筑面积:100.0000㎡
- 项目造价:30.0000万元
- 竣工时间:2024-05
- 设计机构:末染设计
-
项目定位:这是我们第二次与代官山·医学美肤(DAIKAYAMA)进行合作,它的诞生,不仅是一项设计任务,更是一段倾注热忱与匠心的旅程。MOOTHAN. DESIGN极致用心的为客户在喧嚣纷扰的太原闹市区,打造出一方宁静绿洲。当穿行于车水马龙的街道之间,这座宛如世外桃源的居所正静静守候,成为都市丽人心中短暂喘息与疗愈的第二个家。以舒适自在为设计理念,在这座被喧嚣包围的城市中,代官山·医学美肤宛如一处静谧绿洲,以简单明快的设计语言和材料,为灵感与自然的交汇开辟了一片净土。这里的设计是流动的艺术,让空间中的每一步都成为探索与发现,邀请人们在自然、艺术和创造的旅程中驻足、沉思、启发,在人与空间内寻找新的平衡。
-
空间意境:从枯山水中汲取灵感,拥抱温暖、光线和有机元素。室内部分,采用了暖白、黑、中灰等色感的建材和木作,以深色系的墙板形成统一的视觉,给空间带来沉浸的氛围。艺术涂料粉刷过的墙壁与木作定制色调相得益彰,使用大地色系和自然材质,这种融合让人感到安宁。
-
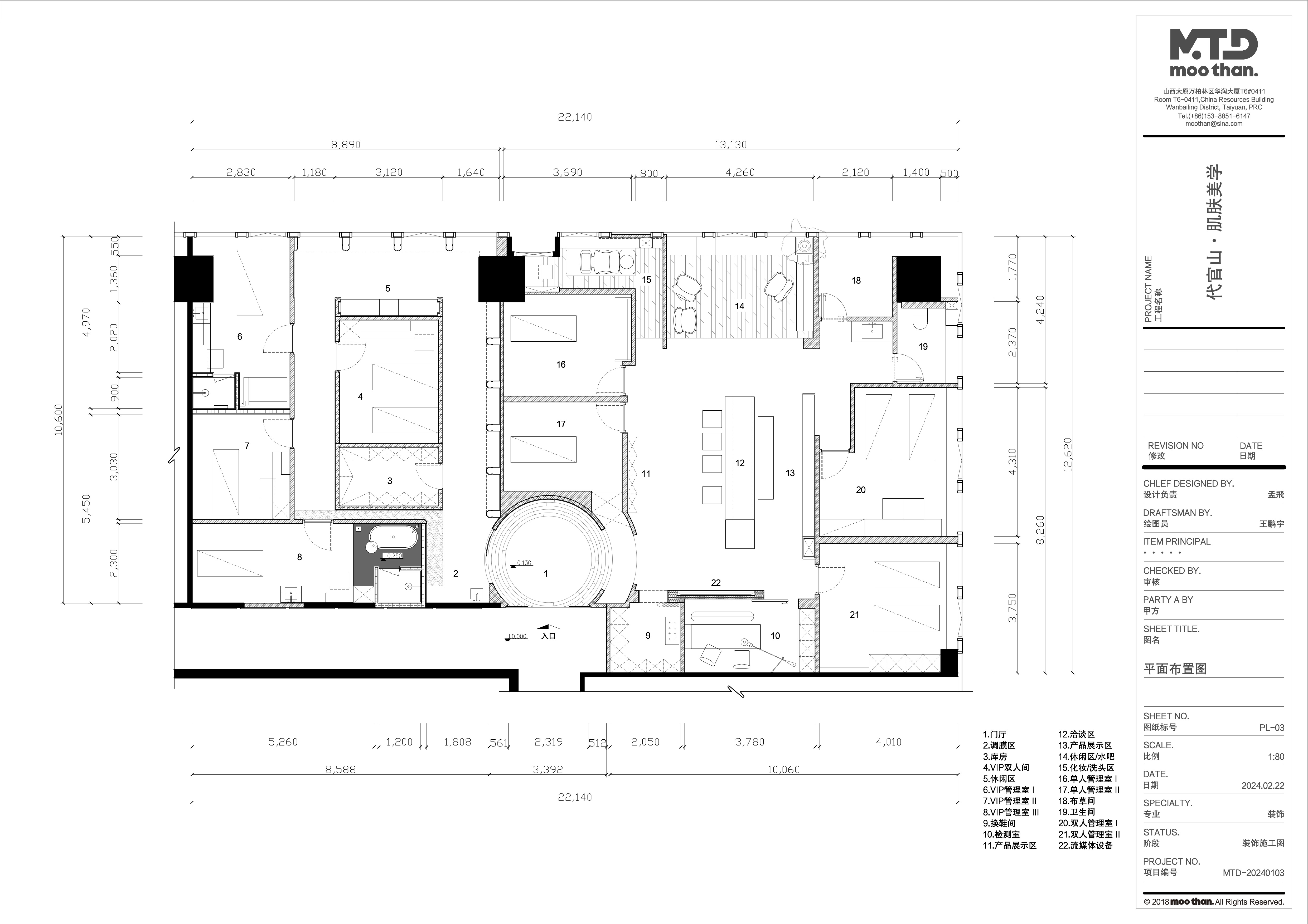
空间布局:设计师减少空间多余的装置,为空间提供更多灵活性的可能;将空间的动线规划变得有故事性并且保持多功能性,同时让里面的空间处于一种半遮半掩的效果, 去物质传统性和非永久瞬间性特质使其成为一种空间艺术手法输出的媒介。有限尺度内延展自由无界的意蕴和能量,弧形天花贯穿于入口、通道、休息区,沿设计动线的轨迹,慢慢深入中区,空间真正的用途被逐渐揭晓,犹如深林中的雾光,要拨开一层层迷雾才能寻找到事物真正的面貌。墙面镜子的运用使空间得到延展,折射出一个平行分岔的镜像世界,制造多维的感官体验。
-
设计选材:简而有致,纯净的色调与简洁的线条达成明亮且有秩序感的公共空间。墙面用艺术漆模拟了的风蚀过后的粗粝质感,局部使用吸音毡点缀空间线条,柔化了硬朗的方形空间,同时增添了独特的视觉美感,克制沉稳,层次分明。镶嵌镜面的墙体得到了延展重合的空间线条,交织出虚实结合的空间,平静墙面因多重反射焕发出勃勃生机。镜面的添加实实在在打破了视觉障碍,让空间得以穿透,反射,延伸。空间的纵深感以镜子与墙面相接而开启,交错又承接。
-
用户体验:投入使用后,许多顾客在社交平台以及大众点评给出良好的评价,极致的服务与契合审美的空间一起相得益彰。
0
0

认证 · 让您身份增值