叠影
27
作品说明
- 项目类型:别墅
- 项目地点:南京市
- 建筑面积:400.0000㎡
- 项目造价:315.0000万元
- 主案设计师: 李光政
- 参与设计师:陈旭、沈雪
- 竣工时间:2025年3月
- 设计机构:北岩设计
-
项目定位:本案定位为“静谧的极简主义”,以全案托管模式为十年老客户打造第二居所。设计聚焦于从二人世界到三口之家的功能与情感升级,通过极简线条、黑白主调与艺术软装相结合,在秩序中融入家庭成长叙事,实现“功能与情感温度平衡”的长周期生活设计。
-
空间意境:作品以“光影叙事”构建环境风格创新。通过建筑原有采光条件,捕捉自然光影的动态变化,结合人工灯光设计,使空间在不同时段呈现戏剧化场景。同时,以艺术软装作为色彩与形态的突破点,在极简基调中注入鲜活张力。
-
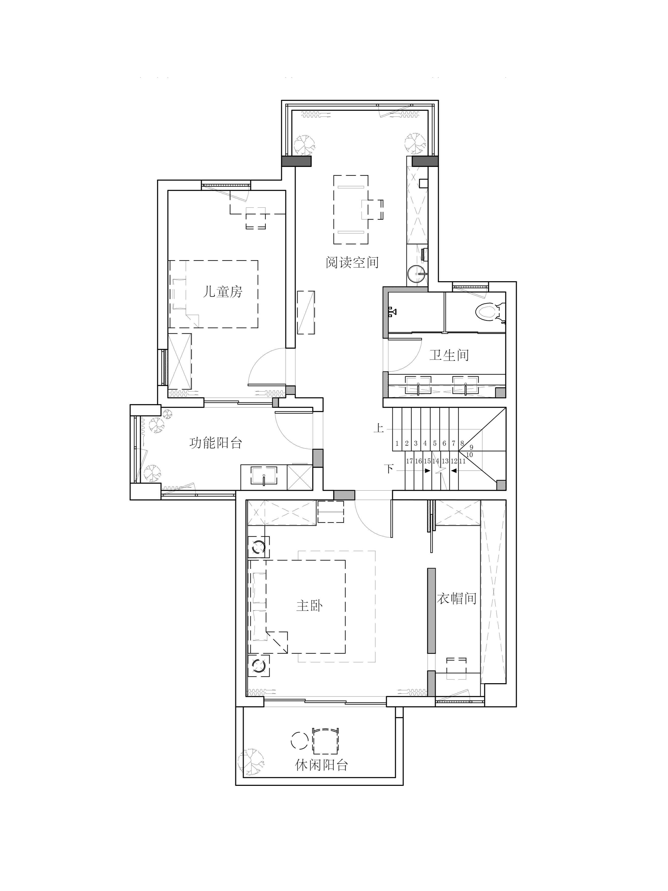
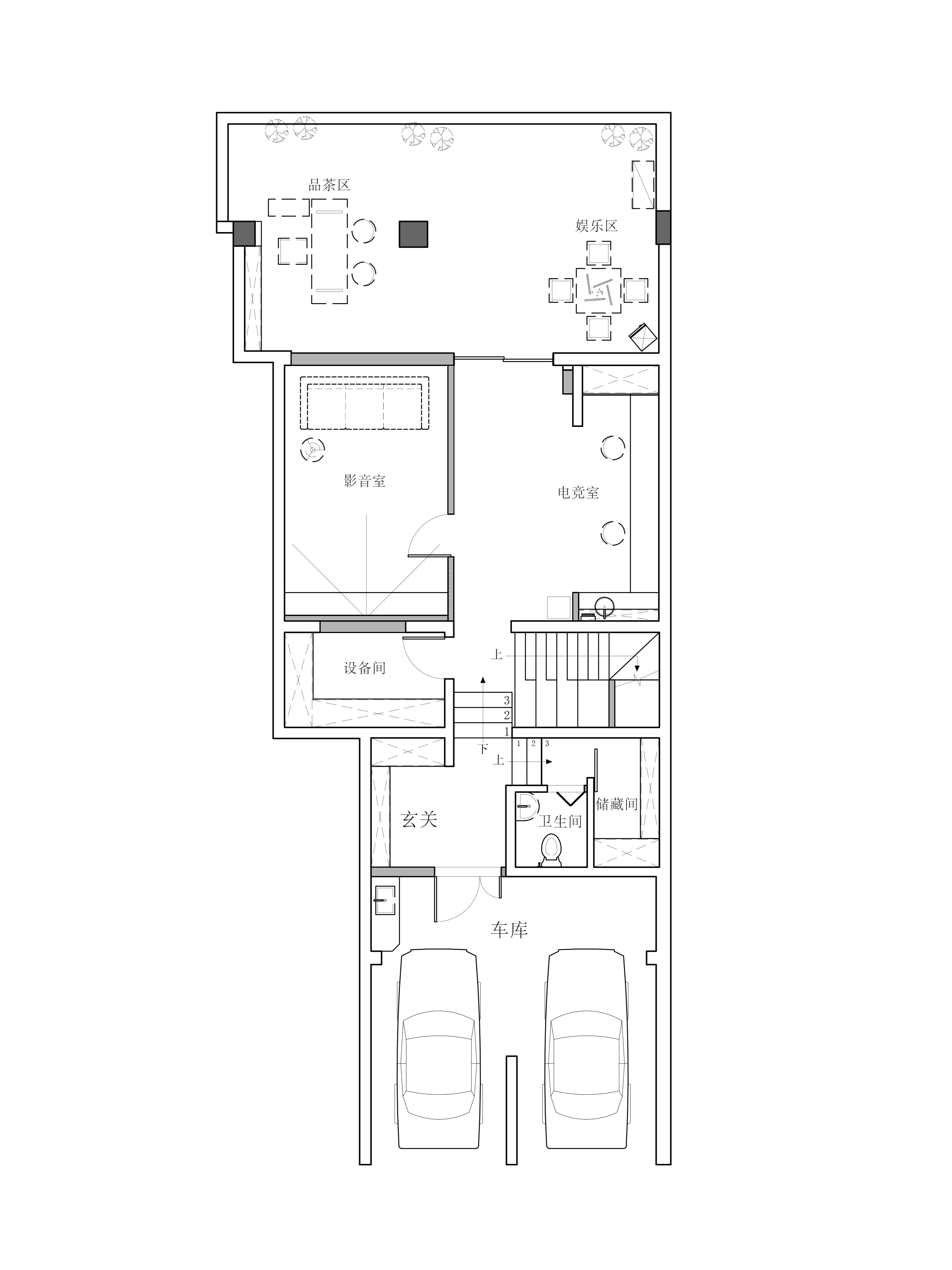
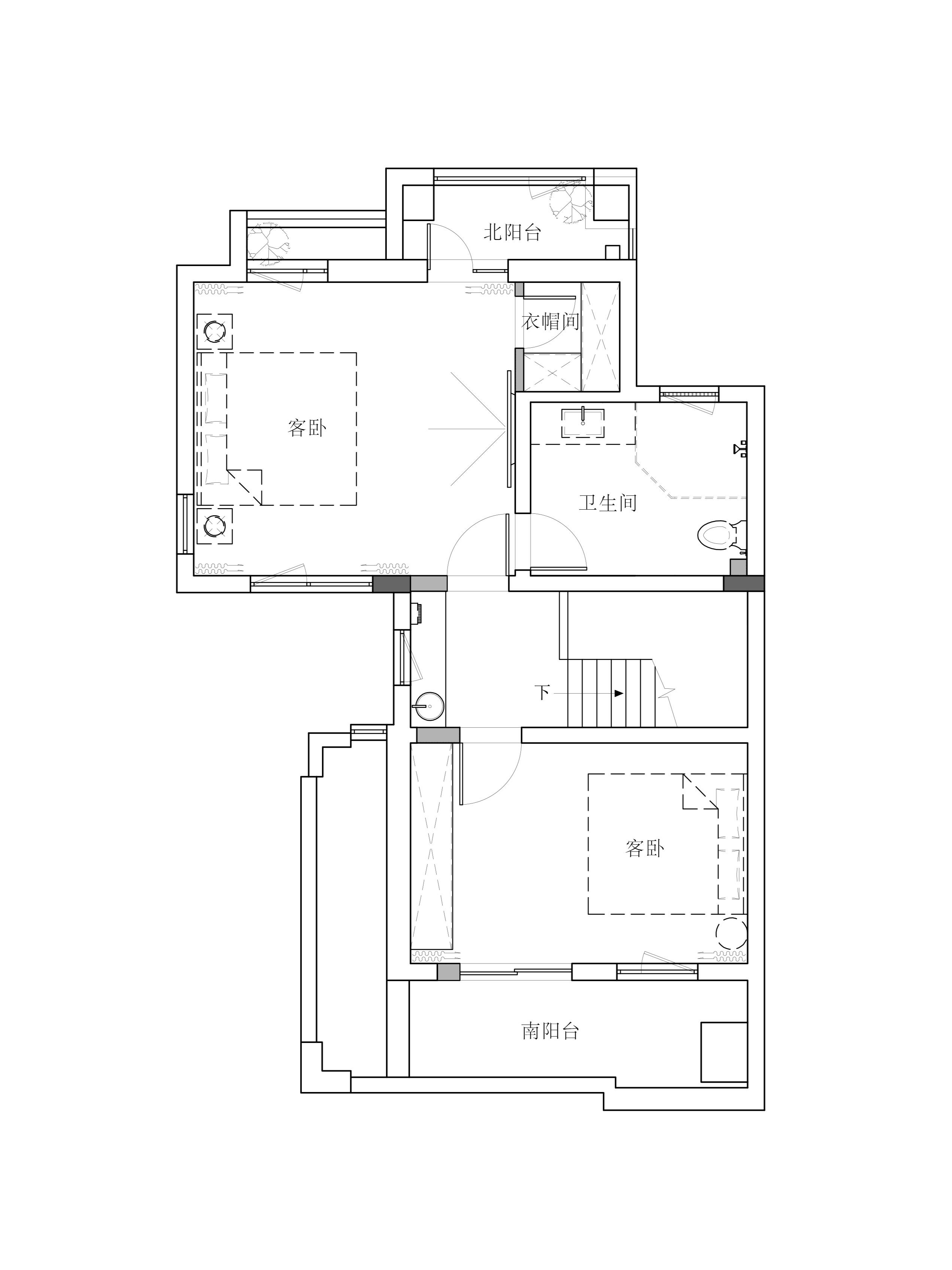
空间布局:采用“垂直动线与视觉联动”系统,在四层别墅中实现分区独立与整体连贯。地下室拓展为家庭社交延伸区;一楼公共区域融合餐厨客功能,形成开放交互场景;二楼主卧与儿童房通过书房过渡,兼顾私密与亲子互动;顶楼预留灵活客房与储藏,为未来十年生活变化留白。
-
设计选材:选材强调纯粹性与低碳经济兼顾:一楼及地下室选用瓷砖,卧室铺贴地板,兼顾耐用与舒适。通过隐形踢脚线、一体化收纳柜强化视觉整洁。艺术家具作为点睛之笔,在控制整体造价的同时提升空间表现力。
-
用户体验:业主入住后,空间与生活习惯自然融合。男业主偏爱坐在餐厅,享受自然光影变幻与窗外四季景致,这个角落成为他静思放松的精神栖息地。女业主则钟爱地下室,经常与闺蜜在此聚会谈笑。
天井将阳光裁剪成阔绰的切片,斜斜地落进室内,绿色的艺术涂料像一层柔和的滤镜,将光线轻轻晕染。
顶上灯膜亮起来的时候,车库入口便褪去了冷硬,柔和的灯光从上面漫下来,落在每个角落。墙上挂钩悬着未说完的日常。
音影室是全家人的沉浸式欢聚主场,孩子为动画片的冒险情节欢呼,大人沉浸在大片的震撼视效中。
黑与白在这里形成一种安静的对话。墙面与家具的线条干净利落,没有一丝多余的笔触,仿佛空间本身在践行着某种禁欲主义。
但极简并非冷漠——Gufram的仙人掌衣帽架以一抹叛逆的绿色姿态伫在沙发旁,为这片克制的领地注入一丝玩味。
夕阳斜斜地透过落地窗,梦幻帘将余晖滤成慵懒的橙金色,缓缓地倾泻在餐桌上。
修长的日影从餐桌脚边流淌而过,横贯整个餐厅地面,最终爬上厨房的哑光地柜——仿佛在为空间丈量最后的温度。
卧室延续极简风格,黑色墙面吸收着光线,营造出私密的休憩氛围。白色衣柜衬托着自然光,让空间不至沉闷。
当夜幕降临,灯光渐次亮起,属于业主的故事继续在这里生长。而我们,依然会是那个安静的记录者与共建者——用设计,为下一个十年的美好生活预留伏笔。
1、拆除局部非承重墙,优化空间结构,大幅提升整体采光效果。 2、围绕业主生活习惯重新规划功能分区,使动线更流畅,布局更合理。 3、巧妙运用吊顶造型,在保证空间舒适性的基础上,打造富有层次的光影立面。
0
0

认证 · 让您身份增值