-
项目定位:强化生活化为根基,以客户使用习惯做切入点
-
空间意境:以白色木饰面做主色,原木木饰面做点缀,空间不大视觉会有延伸感
-
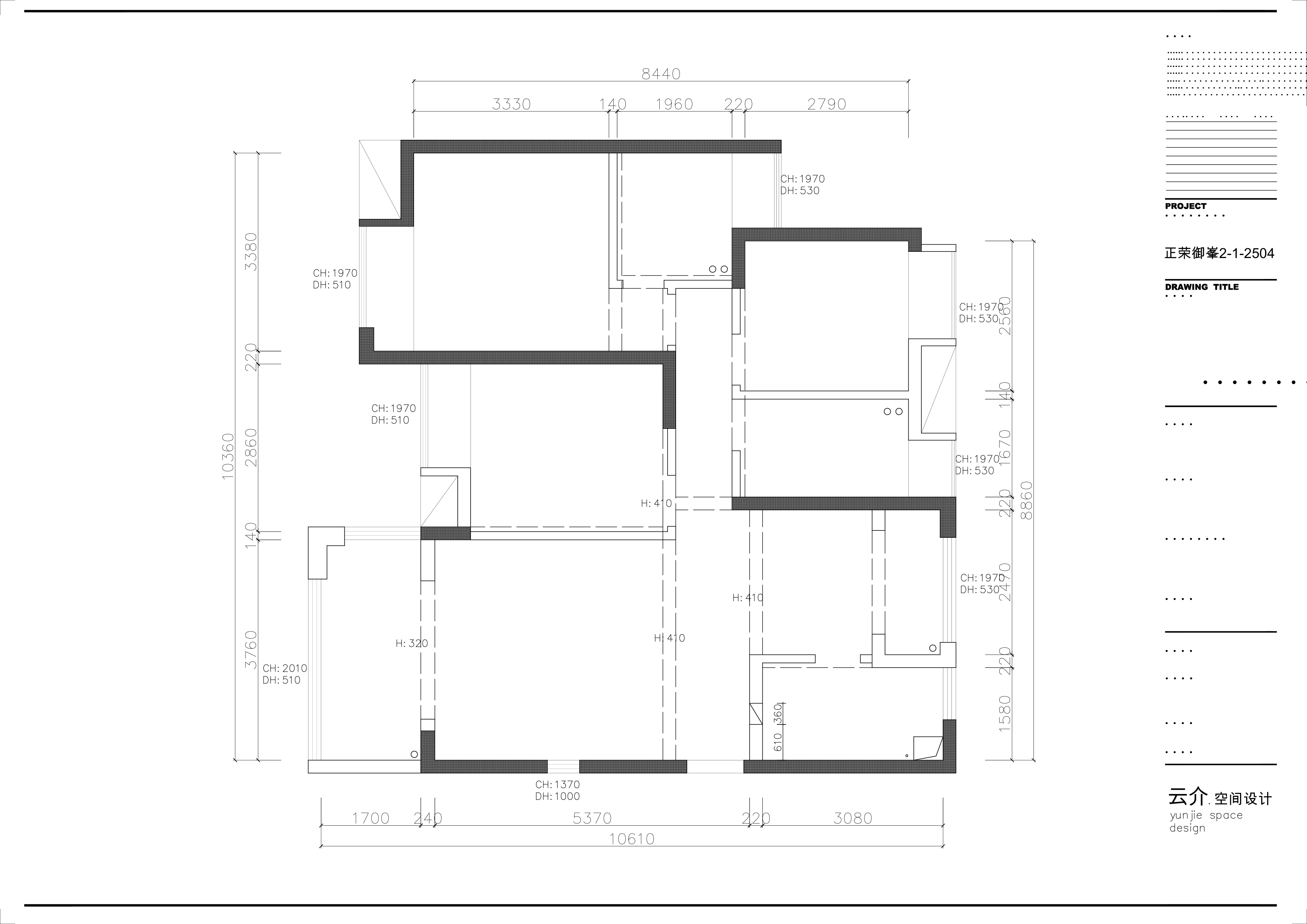
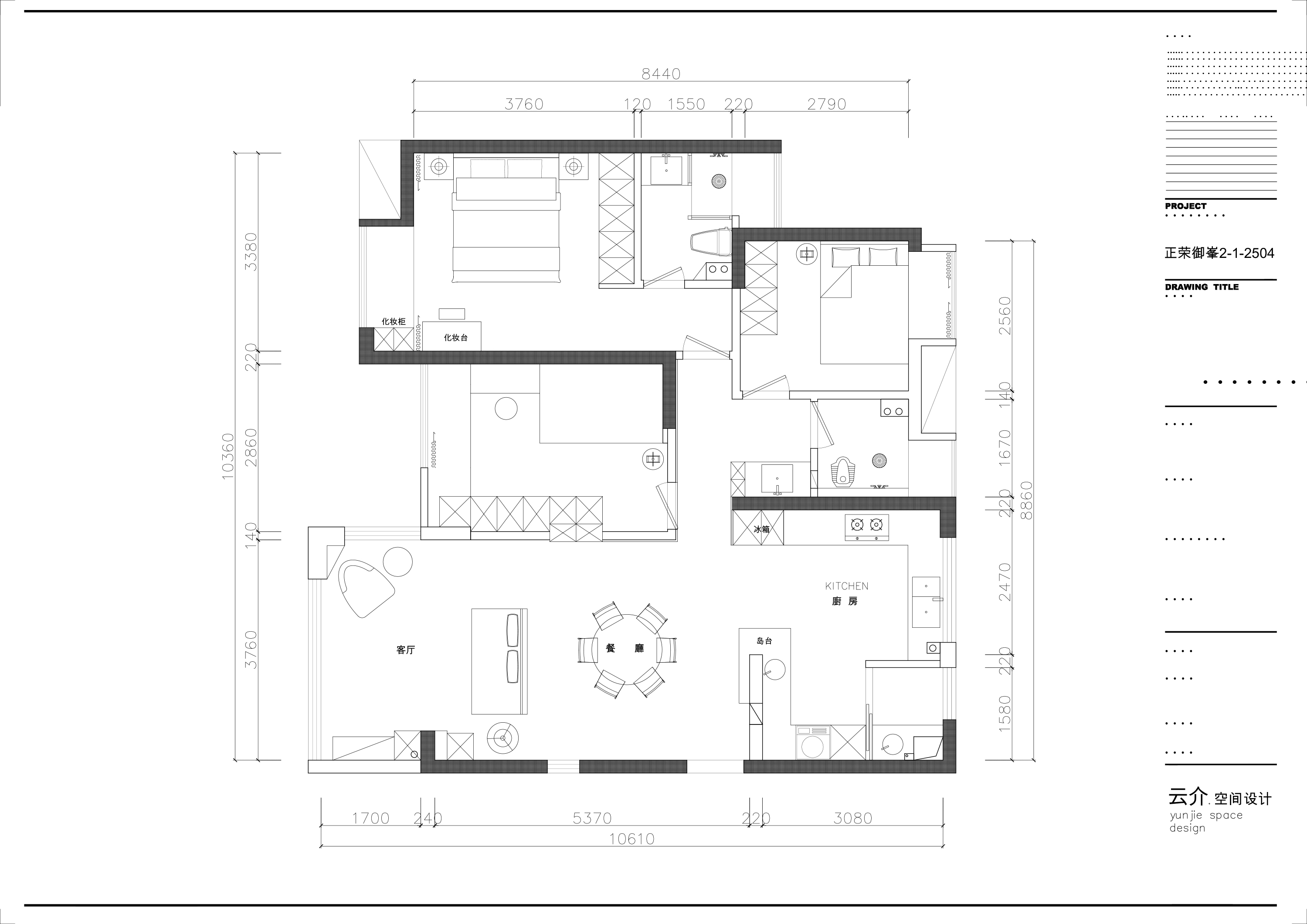
空间布局:此案最大的亮点就是在于原有厨房和餐厅比较小,我们通过功能打乱把原有餐厅厨房做入一体化,通过原有厨房隔出2个平米做凉晒区,在划分一个水吧区及洗烘,把做饭吃饭洗衣做成纳入一个板块,不需要通过客厅走向阳台洗晒,房子不大阳台面积反占据最好的位置,给他让出来增加客厅实用,去所谓传统会客级别客厅,
-
设计选材:以自然木色和白色,没有过度材质污染
-
用户体验:以强化业主对家的生活化理解,
0
0

认证 · 让您身份增值
126