中美古学-浦发银行
12 - 项目类型:公共
- 项目地点:成都市
- 建筑面积:850.0000㎡
- 项目造价:93.6300万元
- 参与设计师:韦洋
- 竣工时间:2025.3.25
- 设计机构:四川欣闻装饰工程有限公司
-
项目定位:设计师接触到项目之初,就决定将这份灵魂延续;上海是海派文化的缩影,情怀传承在历史记忆中绵延。矩阵将独特的文化符号运用于空间之中,从建筑风格到生活习俗,传统融入现代艺术,述说着這座城市的灵魂与魅力。
-
空间意境:此空间的设计灵感汲取上海的优雅姿态。精心规划的矩形吊顶结构和古铜色的应用,加之艺术玻璃隔断,逐步揭开了戏剧的故事演绎。木饰面与木制线条的相互叠加,层层阵列,是海派风格不可或缺的设计语言,既能体现东方文化的内敛雅致,又能展现西方古典的奢华与浪漫,设计师很好的运用秩序性带来空间的仪式感,充分展现银行的开放和包容。
-
空间布局:在这个空间布局上有精心雕琢的空间里传递出简洁与丰富的对比,整体与细节之间的和谐,以及跳动与沉静的交织。这些设计元素的协同作用,赋予了空间一种富有节奏感的生命力,仿佛空间本身也在呼吸,为来访者带来一种既动感又宁静的沉浸式体验。
-
设计选材:在设计选材上多采用装配式与模块化内装:
创新点:大量采用装配式隔墙、集成吊顶、模块化地毯、预制水电管线。现场干法作业,减少80%以上的建筑垃圾和粉尘污染。
经济性关联:缩短工期=节省人工和管理成本;减少现场浪费;未来空间改造时,材料可拆卸重组,重复使用。 -
用户体验:该项目投入使用后,多次接待金融行业与建筑行业的考察团,行业专家评价其 “打破了‘低碳设计 = 高成本’‘地域文化 = 复古陈旧’的误区,用创新选样实现了‘低碳经济性’与‘海派情怀’的深度融合,为银行网点设计提供了可复制的范本”;综上,浦发银行项目的设计选样不仅实现了 “创新低碳” 与 “经济性” 的平衡,更通过海派风情的落地,让用户在功能体验与情感共鸣上获得双重满足,真正做到了 “用设计提升体验,用低碳赋能价值”。
设计师结合了上海留声机、成都芙蓉花,演变出此艺术造型,从古典到现代,从写实到抽象,艺术品的情感千变万化,而设计师保留了人情感部分中的那一份怀旧。
在这个精心雕琢的空间里传递出简洁与丰富的对比,整体与细节之间的和谐,以及跳动与沉静的交织。这些设计元素的协同作用,赋予了空间一种富有节奏感的生命力,仿佛空间本身也在呼吸,为来访者带来一种既动感又宁静的沉浸式体验。
上海是海派文化的缩影,情怀传承在历史记忆中绵延。矩阵将独特的文化符号运用于空间之中,从建筑风格到生活习俗,传统融入现代艺术,述说着這座城市的灵魂与魅力。设计师接触到项目之初,就决定将这份灵魂延续;
别具一格的休闲区,告别传统接待台的拘束,传承海派文化中的精致生活方式,前厅以咖啡馆的创新融合形式呈现。为来访者提供一个轻松愉悦的交流空间。
上海是海派文化的缩影,情怀传承在历史记忆中绵延。矩阵将独特的文化符号运用于空间之中,从建筑风格到生活习俗,传统融入现代艺术,述说着這座城市的灵魂与魅力。设计师接触到项目之初,就决定将这份灵魂延续;
上海是海派文化的缩影,情怀传承在历史记忆中绵延。矩阵将独特的文化符号运用于空间之中,从建筑风格到生活习俗,传统融入现代艺术,述说着這座城市的灵魂与魅力。设计师接触到项目之初,就决定将这份灵魂延续;
上海是海派文化的缩影,情怀传承在历史记忆中绵延。矩阵将独特的文化符号运用于空间之中,从建筑风格到生活习俗,传统融入现代艺术,述说着這座城市的灵魂与魅力。设计师接触到项目之初,就决定将这份灵魂延续;
别具一格的休闲区,告别传统接待台的拘束,传承海派文化中的精致生活方式,前厅以咖啡馆的创新融合形式呈现。为来访者提供一个轻松愉悦的交流空间。
别具一格的休闲区,告别传统接待台的拘束,传承海派文化中的精致生活方式,前厅以咖啡馆的创新融合形式呈现。为来访者提供一个轻松愉悦的交流空间。
在这个精心雕琢的空间里传递出简洁与丰富的对比,整体与细节之间的和谐,以及跳动与沉静的交织。这些设计元素的协同作用,赋予了空间一种富有节奏感的生命力,仿佛空间本身也在呼吸,为来访者带来一种既动感又宁静的沉浸式体验。
在这个精心雕琢的空间里传递出简洁与丰富的对比,整体与细节之间的和谐,以及跳动与沉静的交织。这些设计元素的协同作用,赋予了空间一种富有节奏感的生命力,仿佛空间本身也在呼吸,为来访者带来一种既动感又宁静的沉浸式体验。
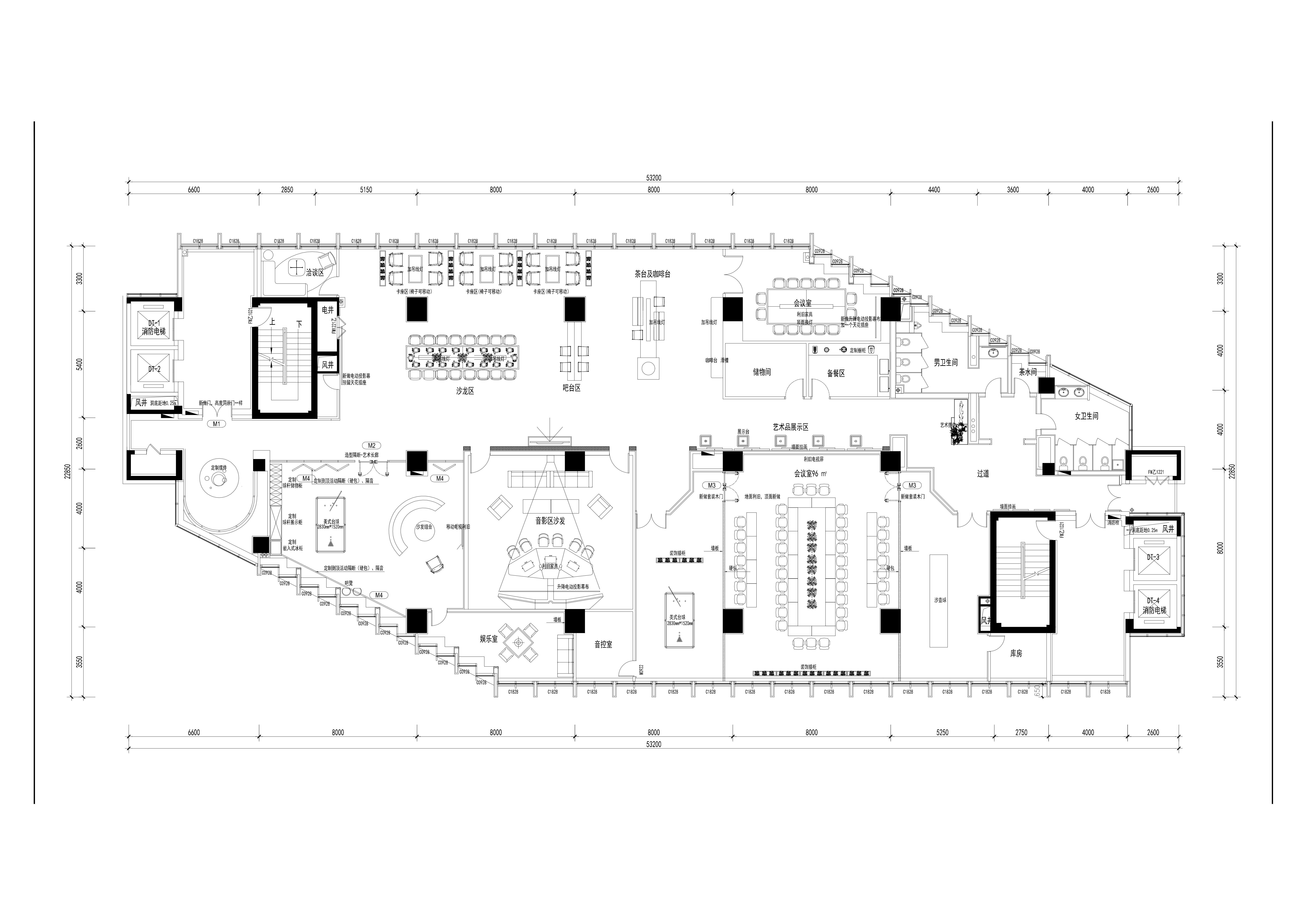
本平面布局以 “智慧金融,人文港湾” 为核心设计理念,旨在打破传统银行冰冷、刻板的印象,打造一个高效、透明、亲切、安全的现代化金融服务空间。
0
0

认证 · 让您身份增值