意趣物语,自然之息
25
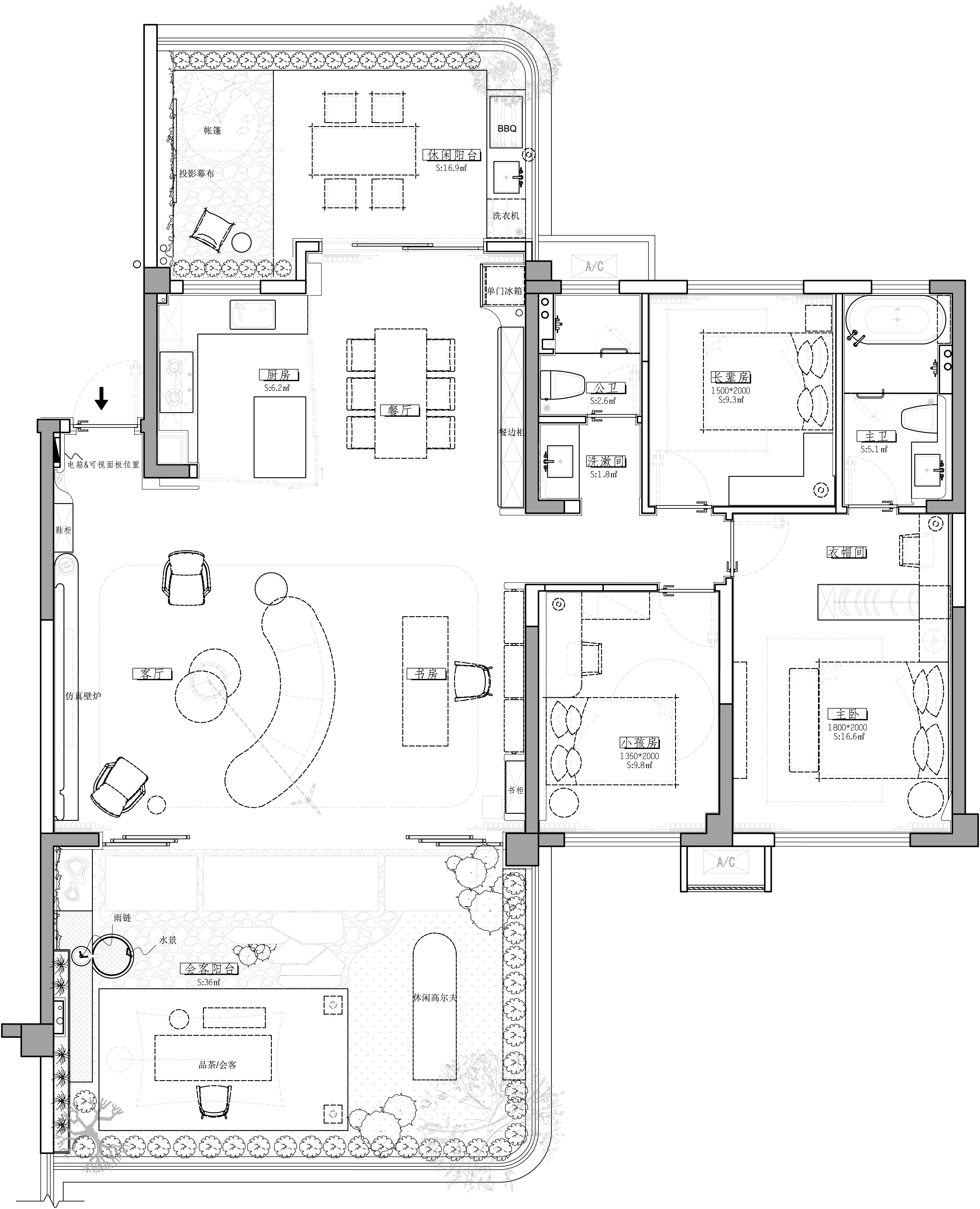
作品说明
- 项目类型:样板间/售楼处
- 项目地点:孝感市
- 建筑面积:140.0000㎡
- 项目造价:70.0000万元
- 参与设计师:王光辉 刘小羿 艾益忠 朱贵敏 朱华丽
- 竣工时间:2025年1月
- 设计机构:深圳市太谷空间设计有限公司
-
项目定位:一眼初见,整个空间的神情风姿映入眼眸刻进脑海,唤起独特的感官体验。140户型以“家庭互动”为核心考量,结合不同的人群需求进行质感设计,打破层层界限,重新构筑生活场景,描绘“新幸福指数”的生活蓝图。
-
空间意境:露天阳台以自然为生活底色,构建一个向往的生活样本。茂密植被、蓝天碧霞、喝茶闲坐、日出日落……从无数个生动的生活细节中,窥见生活的本真,在舒缓与安静的氛围中享受生活的美妙。这里不仅是休憩的角落,更是一处与自我对话的精神栖息地。
-
空间布局:温暖、明亮是客厅的代名词,一如最初对家的向往,描绘一幅美好的生活绘卷。黑色与木色的纯净配合展现空间的自然简单且大方时尚的质感,利用黑色框架作为墙体柜,柜子上看似冲突的文化元素软饰,利用色调、材质、工艺等细节交流融汇,调节整体氛围,超越时间与地域的美学装点,相得益彰,品味独到。
-
设计选材:浅木色系的温柔,有着如同阳光下会呼吸的颜色,舒适的触感,彰显自然最本质的力量。巨大的落地窗呈现出自然景色,凸显窗外风轻拂的温柔。墙体与大地色调的地板互为调和,都为衬托淳朴明亮的质感,为空间营造出通透舒适的氛围。每一处细节都在低语关于优雅关于生活本真的浪漫。
白色大理石挽留木质肌理的韵脚,同时尚的茶台与墙面肌理交映,将艺术和人文融纳进日常,共谱一曲空间型格。
交融最具像的体现莫过于人与人,文化与生活的觥筹交错。布局和陈设氛围的舒适源于归家那一刻的松弛感,酒红色餐椅提供绝佳的氛围感体验,可隐藏的收纳细节让整个餐厅空间更显有序且有趣。酒柜延续客厅墙体柜的设计,生活仪式感深藏不露。
朝阳落日的光穿过纱帘的影在卧室间流连,浸透时光变得清淡,连呼吸,都染上了残留在温柔的自然芬芳。床品的颜色跳脱将这个原本静谧的空间打破,留下的,只有那份最纯粹、最真挚的感觉。所见之处,皆是低调和舒适的质感,简约、理性、优雅、延续。
梦想如时间的羽翼铺陈在儿童房,在黑底蓝调的基础上,飞机的机翼带着童真一路滑翔,填上一整个墙面的海螺标本,满足孩童时期探索的渴望。 -
用户体验:空间与空间之间是交融贯通的,隔而不离的关系,让空间有了流动性。清晰的流线兼顾了效率,恰到好处的分隔区域也使得不同空间互不干扰。
0
0

认证 · 让您身份增值