常德-奢悦木作展厅
25
作品说明
- 项目类型:公共
- 项目地点:宁波市
- 建筑面积:600.0000㎡
- 项目造价:400.0000万元
- 主案设计师: 姚硕文
- 参与设计师:姚硕文
- 竣工时间:2023
- 设计机构:李一设计事务所
-
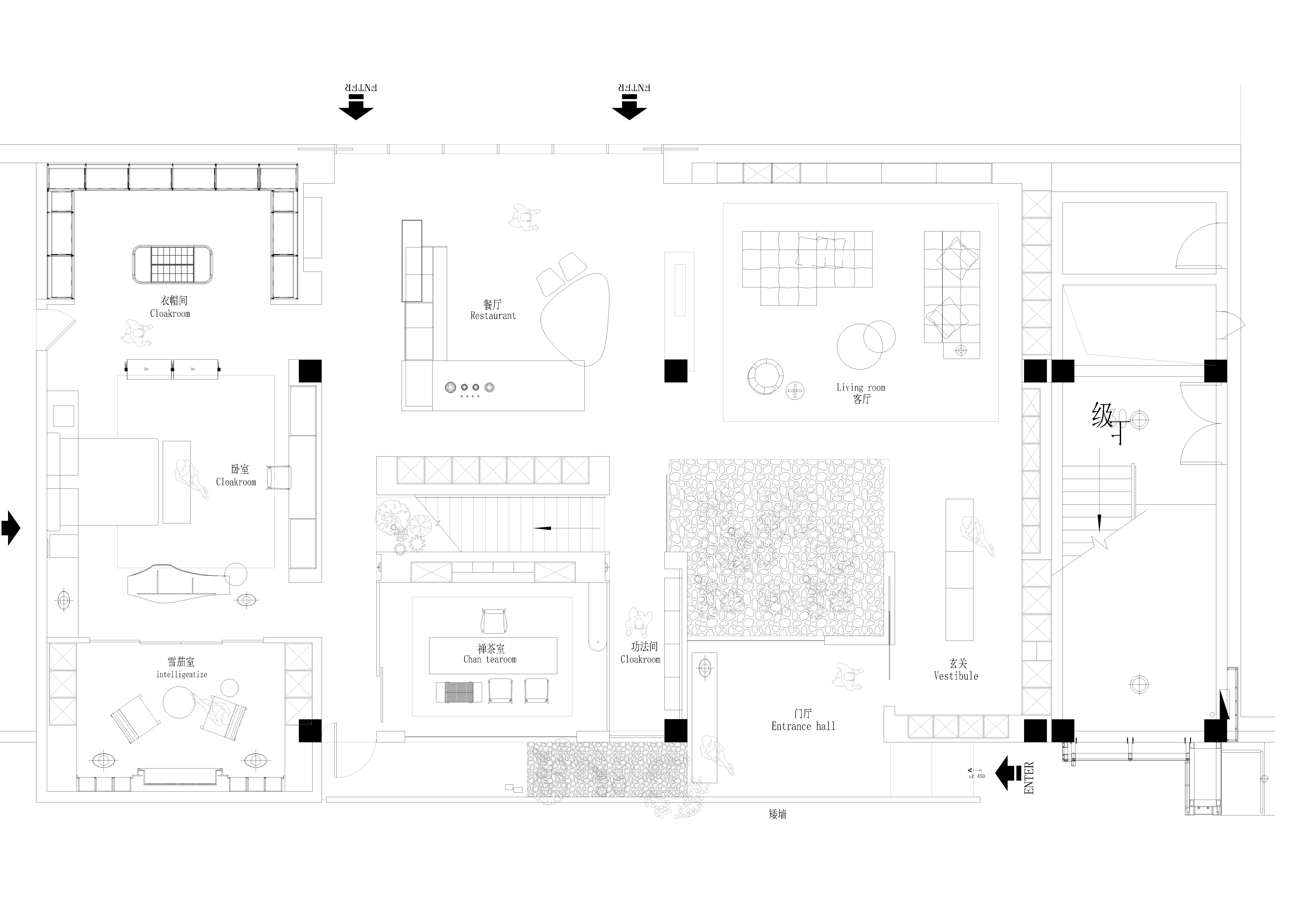
项目定位:内外有别,秩序井然,活动区与静谧区分隔明确。开始呈现出一个独立而有机的内部世界。
-
空间意境:该设计的理念强调简朴、自然生长的原则,而非追求奇异,每一个设计决策都显得成熟、可持续。
-
空间布局:平面布局设计需要充分考虑展示内容与形式、功能组织、参观动线、空间美学、安全舒适、信息指示及相关法规等因素,才能创造出成功的展览体验
-
设计选材:木饰面 新材
-
用户体验:共生的状态 宾至如归
0
0

认证 · 让您身份增值