芸锦Nyota·高空酒店
43
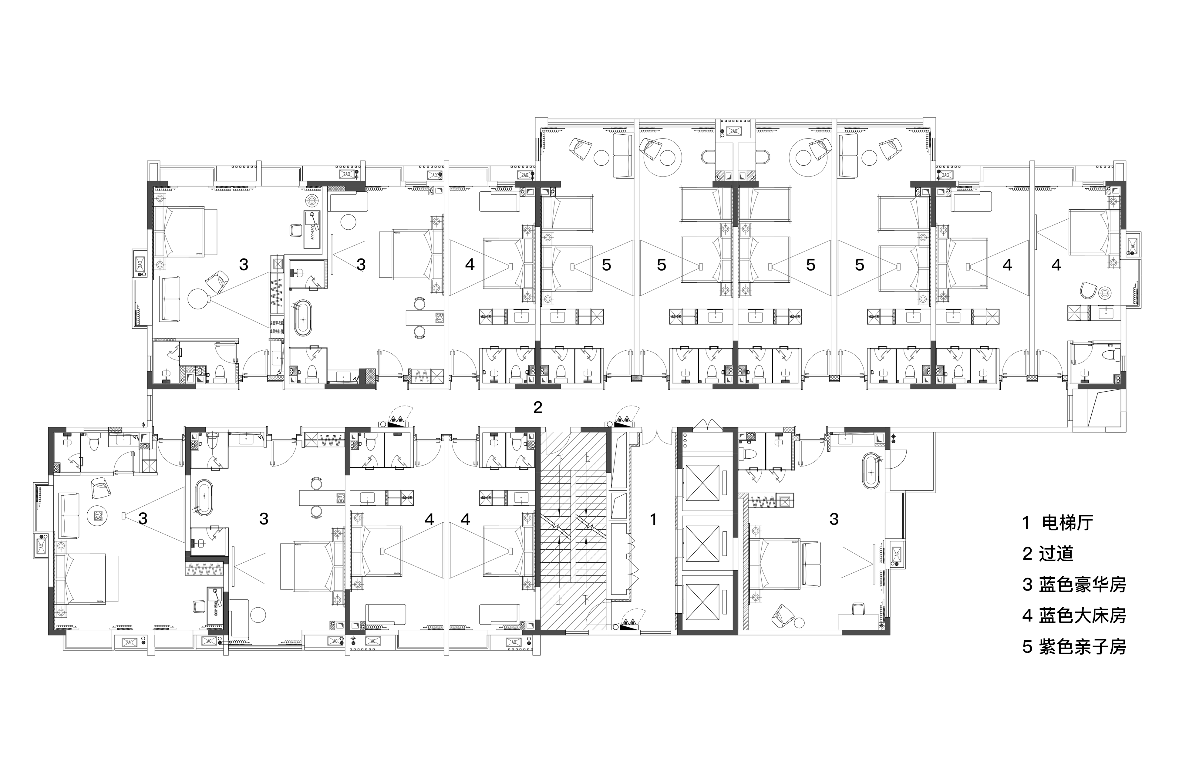
作品说明
- 项目类型:酒店
- 项目地点:成都市
- 建筑面积:3300.0000㎡
- 项目造价:1000.0000万元
- 主案设计师: 张凯锋
- 参与设计师:张镜天
- 竣工时间:2025.07
- 设计机构:张凯锋建筑设计事务所
-
项目定位:酒店扎根在成都市中心以西的核心居民区域,四周是斑驳的居民底色,立于市井烟火之中,设计以棕红色极简体块构筑视觉锚点。统一的色彩语言从街道杂色中跳脱,精巧结构穿插出视觉反差,俯仰之间,沸腾的生活气息与当代设计交织融合。
-
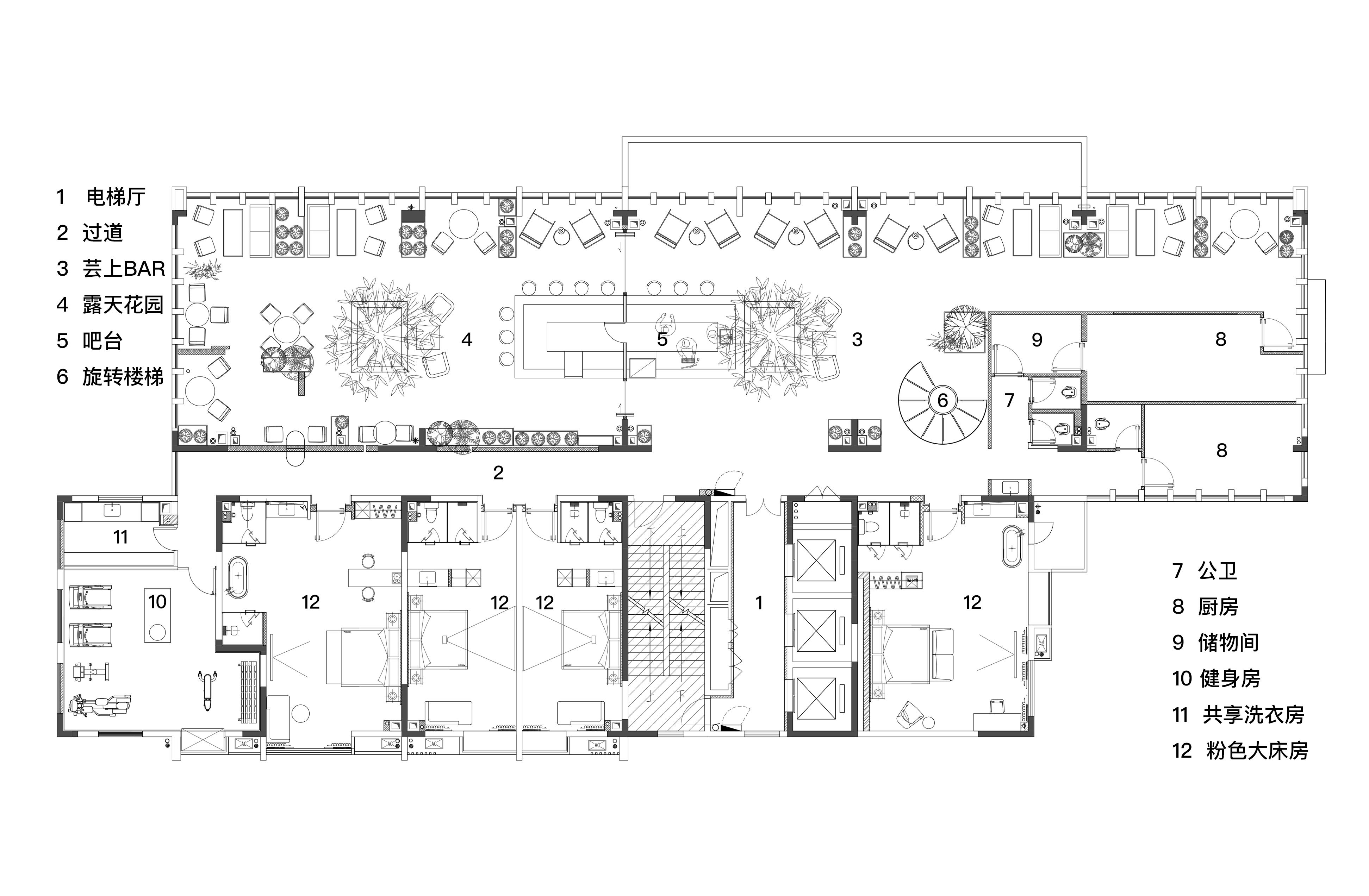
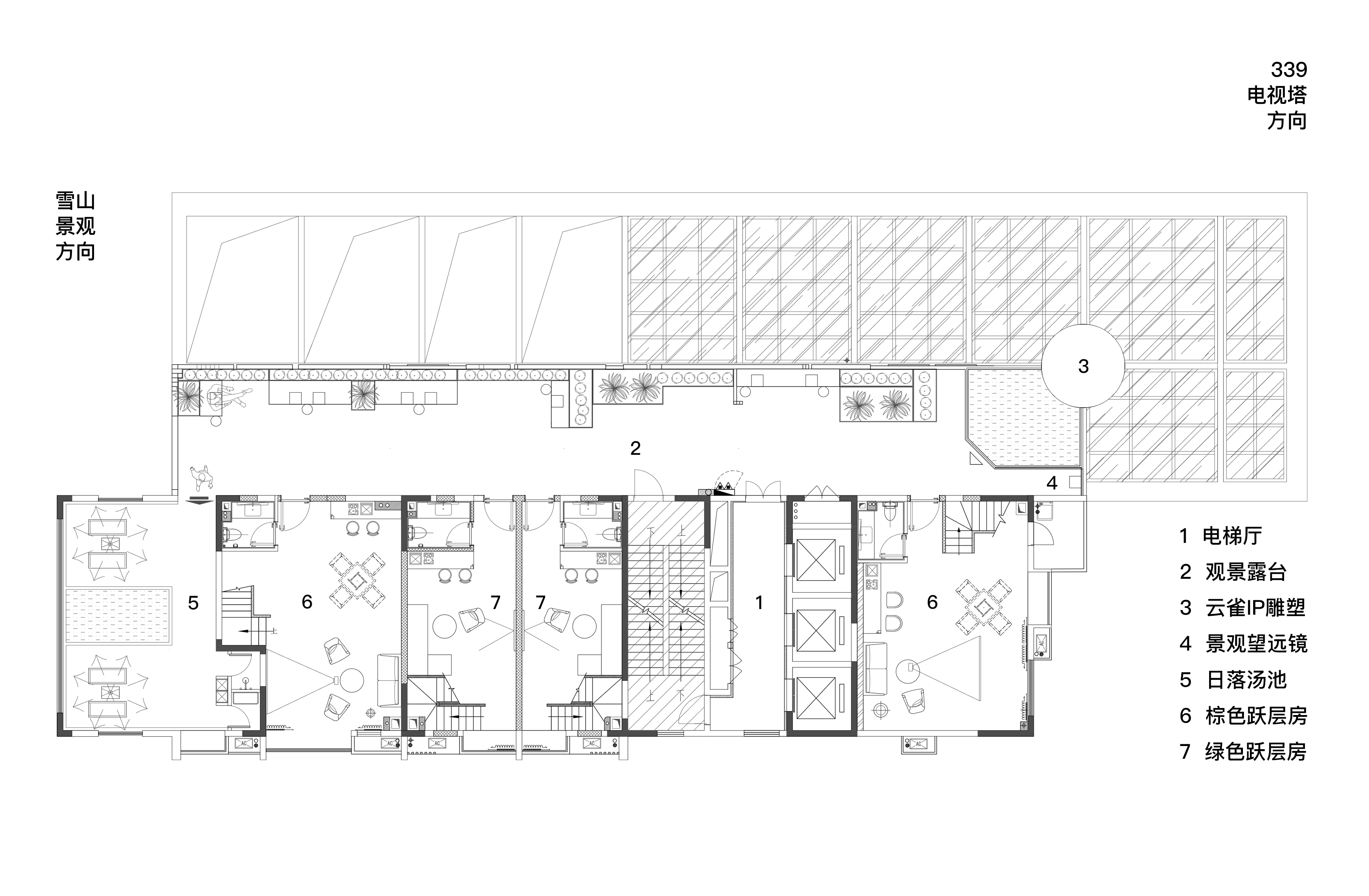
空间意境:酒店大厅在22F芸上空中露台,这里是一座森系秘密花园,棕红色砖片与野系绿植的色彩碰撞美学,白昼深呼吸,入夜微醺时,凝为杯沿盐粒与叶间月光。在酒店24F屋顶天台,我们设计了一个云雀IP,它是自由、希望与愉悦的化身,它疲惫又骄傲的姿态,恰如旅人挣脱束缚,追寻慰藉与焕新的旅程。我们以此为灵感,在云端为每一位宾客打造了一方远离喧嚣的自由天地。愿您在困惑中找到归宿,在宁静中重获力量,开启一段充满希望与美好的时光。
-
空间布局:烟火之上,砌起一座红色“桥梁”,与四周的绿草野花交织成美妙的滤网,阻隔街道喧嚣,成为酒店与市井的柔性边界。复刻了登临云端寻花而入的仪式感:弯腰穿过烟火,挺直遇见云端,凝结为可触碰的视觉寓言。
-
设计选材:选材上设计秉承着经济、环保为主旨,大面积采用棕红色的劈开砖和艺术漆,通过色彩的碰撞和搭配营造视觉锚点,打造出了一幅自然轻松且浪漫的酒店空间。
-
用户体验:目前在携程和美团平台上均获大众好评,同时在小红书上也获粉无数,相信芸锦绣酒店和屋顶的那只云雀IP将逐渐成为成都西门的又一必打卡之亮点。
0
0

认证 · 让您身份增值