龙湖天矩
182
作品说明
- 项目类型:住宅公寓
- 项目地点:西安市
- 建筑面积:185㎡
- 项目造价:75万元
- 主案设计师: 方荣国
- 参与设计师:彭贺贺
- 竣工时间:2025年8月
- 设计机构:造境物象空间设计
-
项目定位:定制化设计理念,在常规中突破平凡,既能满足居住的功能需求,又要经得起美学上时间的考验
-
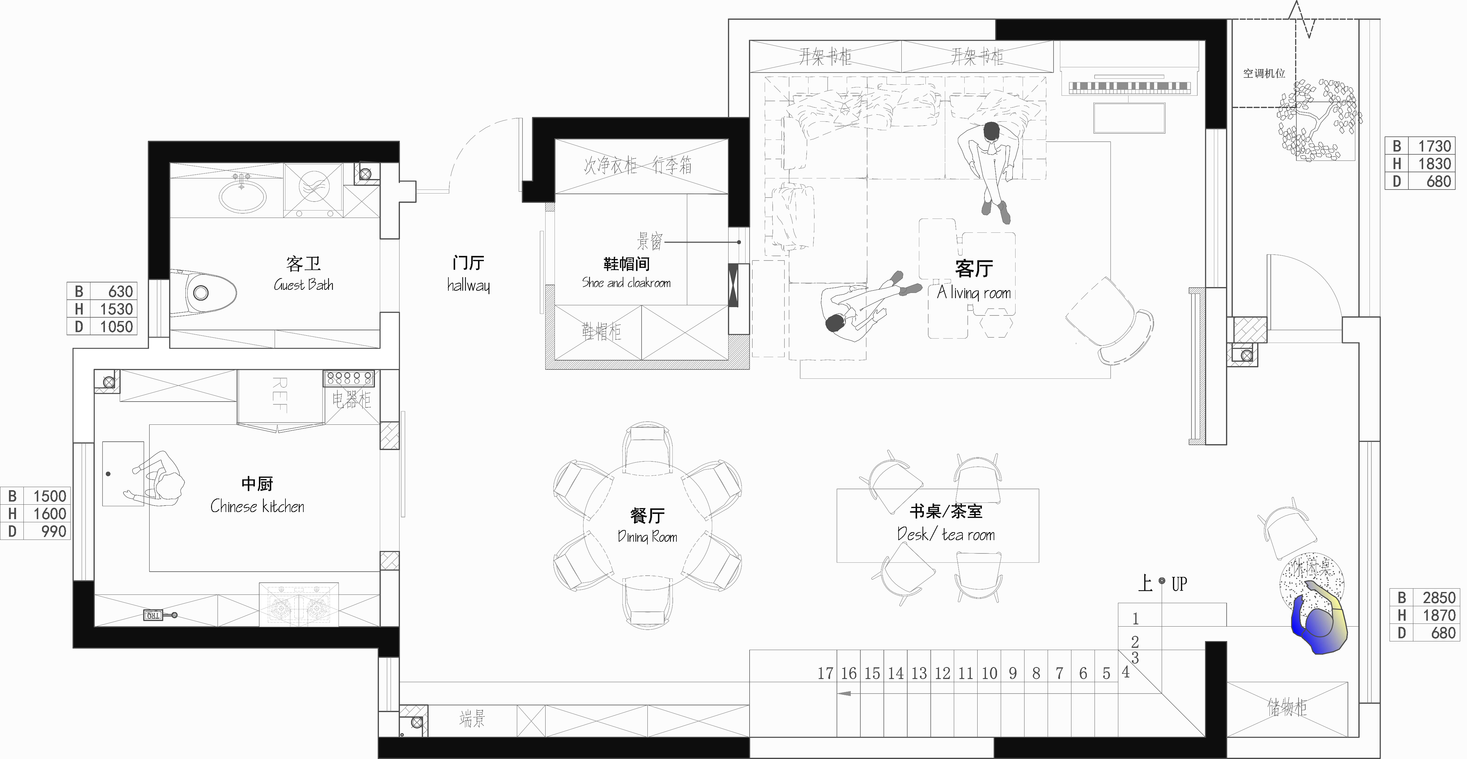
空间意境:将室内和室外的窗景设计也做了一些调整,让传统的电视背景墙融在我们窗景之间,既不显得电视背景墙突兀,又能形成空间的次序感。连通室内外空间的边界感,让窗外的自然的景观、光线能成为室内装饰的一部分。兼顾实用的功能和美学,提升空间的美感。同时也能将窗外的绿植、天空的风景引入室内,替代传统的形式,让空间更加有层次和生命力,同时也随着季节的变化,能够出现不同的视觉效果。大的窗户也能够得到一个好的自然采光,也能坐在沙发向窗外眺望,缓解了视觉的疲劳,打破室内外的这种封闭感
-
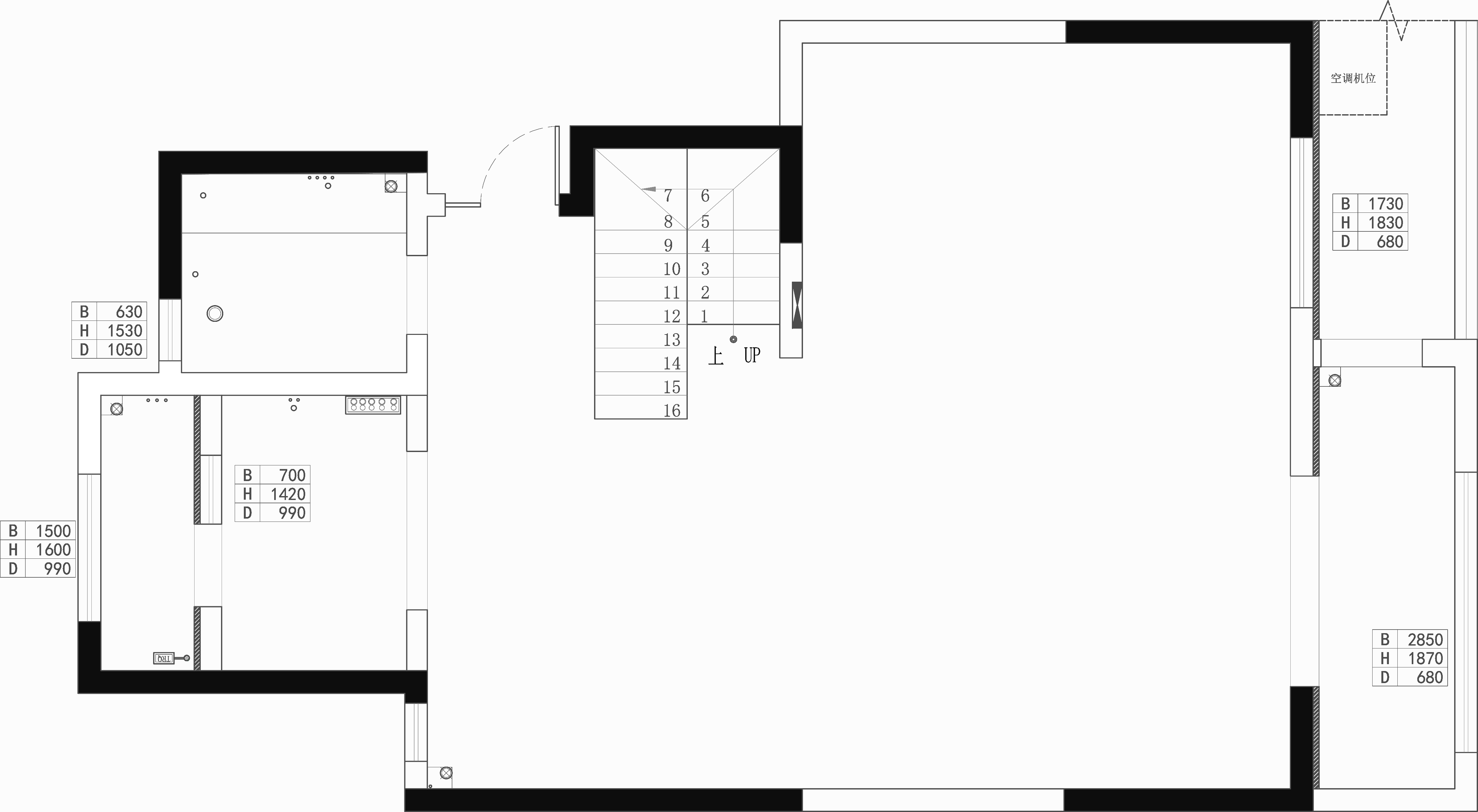
空间布局:原楼梯在入户门口,上二层的空间拥挤昏暗,二层的利用率也比较低。改造后不仅满足了功能的实用性和美观,同时楼梯靠近阳台区间也提高了楼梯间的采光,楼梯既成为一层和二层之间的连接,又满足了展示和艺术形式。将楼梯作为了空间的一个亮点去体现。楼梯是别墅和复式这种空间中的一个垂直的交通枢纽,它既可以作为空间里面功能的延伸,去做储物、展示、阅读区、空间的装饰作用。让楼梯成为空间中的设计感和格调。
-
设计选材:简单选材,不追求独特与定制,有简单的材料抒写空间内格调。
-
用户体验:一比一落地还原,符合客户居住的最初理想,在预算和效果上都达到了切合点。
0
0

认证 · 让您身份增值